Apartament 2 camere Dimitrie Cantemir-Unirii T725

85.000 €

Cantemir, București

Nr. cam.:
2
Sup. utilă:
50 mp
Etaj:
7
An constr.:
1964
  • • Exclusivitate
  • • Locație exactă

Descriere apartament

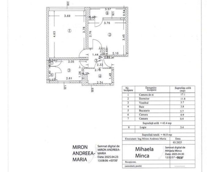
Apartament 2 camere – Cantemir / Unirii – Tineretului Vă propunem spre vânzare un apartament de 2 camere decomandat, situat excelent în zona Dimitrie Cantemir – Unirii – Tineretului, una dintre cele mai bine conectate și căutate zone din București. Locuința are o suprafață utilă de 46,8 mp și este poziționată la etajul 7 oferind liniște și o vedere pe spate, ferită de zgomotul bulevardului. Apartamentul necesită renovare, fiind ideal pentru cei care doresc să-l amenajeze după propriul gust sau pentru investiție. Poziționarea este un mare avantaj: imobilul se află între stațiile de metrou Tineretului și Unirii, la doar câteva minute de mers pe jos, asigurând acces rapid către orice zonă a orașului. De asemenea, în imediata apropiere se află Parcul Carol, perfect pentru relaxare, plimbări sau activități în aer liber. Zona oferă multiple facilități: magazine, restaurante, școli, acces rapid către centrul orașului și principalele puncte de interes. Ideal atât pentru locuit, cât și pentru investiție! Vecinatati Tineretului, Timpuri Noi, Unirii, Centrul Vechi, Universitate, Palatul Parlamentului, 13 Septembrie, Parcul Carol, Vitan, Biblioteca Nationala, Cartierul Evreiesc, Piata Alba Iulia, Eroii Revolutiei, Calea Serban Voda, Nerva Traian, Marasesti, Regina Maria, Spitalul Metropolitan , Sectorul 4, Bucuresti
Citește mai mult Citește mai puțin
Confort 1 Decomandat Mobilat Calorifere Termoficare

Detalii apartament

ID anunț: XE0M10247 Copiat! 275339229 Copiat!
Actualizat în: 23 Martie 2026
Nr. bucătării: 1
Nr. băi: 1
Tip imobil: Bloc de apartamente
Regim înălțime: P+7E

Utilități

Izolații termice
Exterior
Ferestre cu geam termopan
PVC
Contorizare
Apometre
Bucătărie
Mobilată Utilată
Facilități imobil
Interfon Lift
Utilități
Curent Apă Canalizare CATV Gaze Telefon
Internet
Cablu
Amenajare străzi
Iluminat stradal Mijloace de transport în comun Asfaltate
Comision
standard

Vecinătăți:

Tineretului, Timpuri Noi, Unirii, Centrul Vechi, Universitate, Palatul Parlamentului, 13 Septembrie, Parcul Carol, Vitan, Biblioteca Nationala, Cartierul Evreiesc, Piata Alba Iulia, Eroii Revolutiei, Calea Serban Voda, Nerva Traian, Marasesti, Regina Maria, Spitalul Metropolitan , Sectorul 4, Bucuresti

Disponibilitate proprietate:

Imediat

Puncte de interes

Mijloace transport
tram-station
Bd. Dimitrie Cantemir
Stații tramvai aprox. 213 m
bus-station
Bd. Dimitrie Cantemir / Bd. Marasesti, Liniile 312, 313, 381, N105, N106, N112, 116, 23, 27
Stații autobuz aprox. 215 m
tram-station
Bd. Dimitrie Cantemir
Stații tramvai aprox. 241 m
metro-station
Metrorex. Stația Piața Unirii 1 (M1),(M3)(1979)
Stații metrou aprox. 428 m
Școală
kindergarten
Cresa Micii Poznasi
Gradinițe aprox. 133 m
kindergarten
Gradinita Barba Cot
Gradinițe aprox. 141 m
university
Academia de Studii Economice
Universități aprox. 155 m
school
Liceul Teoretic "Ion Creanga" (en)
Școli aprox. 184 m
Recreere
park
Parc
Parcuri aprox. 68 m
supermarket
Mega Image (en)
Supermarket aprox. 323 m
public-square
Piata Bibescu
Piețe publice aprox. 347 m
mall
Bucharest, Calea Vitan nr. 8, Bl V51, near VITAN Mall
Mall aprox. 1555 m

Detalii despre preț și costuri

Prețul pe piață

Preț cerut: 85.000 €

Preț min. zonă 79.900 €
Preț max. zonă 190.681 €

90% dintre proprietățile similare ca zonă și nr. camere au prețul cerut mai mare. mai multe...

Bine de știut: prețul unei proprietăți este influențat și de alte caracteristici, cum ar fi: vechime, localizare, vecinătăți, suprafață, compartimentare, amenajări, dotări, etc. mai puțin...

Costuri cu achiziția

Fără credit
5.407 RON
Credit ipotecar
6.833 RON
Noua casă
573 RON+ taxe notariale

i

Costuri adiționale mai puțin știute la achiziție: taxe notariale, comisioane etc.

Proprietăți similare

Apartament cu 2 camere decomandat în Berceni
83.000 €
București, Berceni
2 camere
50 mp
Parter
Apartament cu 2 camere decomandat în Apărătorii Patriei
80.000 €
București, Apărătorii Patriei
2 camere
46 mp
Etaj 5 / 6
Apartament cu 2 camere decomandat în Berceni
80.000 €
București, Berceni
2 camere
48,84 mp
Parter

Detalii de contact

GMC Imobiliare

GMC Imobiliare Manager

5.00(5 review-uri)

GMC Imobiliare
PRO

Abonează-te la newsletter să fii primul care primește cele mai noi recomandări de proprietăți și sfaturi de la experți.

CONTACT

Creează alertă

Salvează căutarea ca să primești pe email ultimele anunțuri publicate

Apartamente cu 2 camere de vânzare în zona Cantemir, Sector 4