4

Apartament 3camere 2024 -zona de case Drumul Gazarului -Sos Giurgiului

121.940 €

Drumul Găzarului, București

Nr. cam.:
3
Sup. utilă:
78 mp
Etaj:
2
An constr.:
2024
  • • Locație aproximativă

Descriere apartament

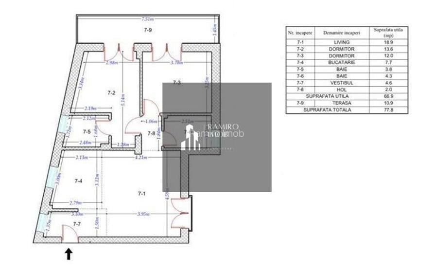
Va prezentam un apartament cu 3 camere, spatios 78mp, cu design modern si functional, balcon mare cat o terasa, 2 bai. Bloc mic P+3, cu 3 apartamente pe palier, in zona de case, in sectorul 4, intre Drumul Gazarului si Piata Progresul/ Soseaua Giurgiului. Apartamentul este finalizat, centrala proprie, incalzire in pardoseala. Apartamentul este luminos pe toata durata zilei. Lumina naturală modelează percepția spațiului, intensifică culorile și îți menține productivitatea. Blocul este construit solid cu materiale de calitate, caramida porotherm. Fiind bloc nou terminat in 2024, nu veti avea surprize pe viitor precum la apartamentele vechi, de o viitoare expertizare si incadrare intr-un grad de risc seismic inferior. Zona este liniștită și accesibilă, are iesire rapida la Soseaua Giurgiului si Bulevardul Constantin Brancoveanu , 5 minute de mers pe jos pana la Piata Progresul. Statii Stb - 323, N107, Tramvai - 7, 19, 25 - 2 statii de Statia de Metrou Eroii Revolutiei. Cu masina ajungeti in centrul orasului in 15-20 minute. In bloc au mai ramas disponibile pentru vanzare 2 apartamente cu 3 camere la etajul 2 si 3. Pretul pe metru patrat construit este foarte avantajos. Suprafață: - 78mp utili - 125000 euro, pretul este cu TVA inclus. Aceste apartamente prezinta un spatiu confortabil si bine poziționat in Bucuresti. Nu ratati ocazia de a locui într-o zona centrala, cu toate facilitatile la îndemana ! Pentru mai multe detalii : Agentia Imobiliara – Ramiro Imob – - Cornel Ion Comision Standard -
Citește mai mult Citește mai puțin
Confort 1 Decomandat Nemobilat 1 Balcon / Terasă / Logie Centrală proprie Încălzire prin pardoseală

Detalii apartament

ID anunț: XCRN104EO Copiat! 275377507 Copiat!
Actualizat în: 30 Martie 2026
Suprafață construită: 90 mp
Nr. bucătării: 1
Nr. băi: 2
Structură rezistență: Beton
Tip imobil: Bloc de apartamente
Regim înălțime: P+3E

Utilități

Destinație
Birouri Rezidențial Comercial
Pereți
Faianță Vopsea lavabilă
Podele
Gresie Parchet
Ușă intrare
Metal
Uși interior
Lemn
Izolații termice
Exterior
Ferestre cu geam termopan
Aluminiu
Contorizare
Apometre Contor gaz
Facilități imobil
Interfon
Utilități
Curent Apă Canalizare CATV Gaze Telefon
Internet
Cablu
Servicii imobil
Supraveghere video
Amenajare străzi
Iluminat stradal Mijloace de transport în comun Asfaltate
Comision
standard

Vecinătăți:

Sector 4 - Drumul Gazarului, Soseaua Giurgiului, Piata Progresul

Disponibilitate proprietate:

Imediat

Puncte de interes

Mijloace transport
bus-station
Statia Cimitirul Evreiesc, linia N107, 7, 25
Stații autobuz aprox. 353 m
bus-station
Statia Drumul Gazarului, linia N107,7, 25
Stații autobuz aprox. 375 m
tram-station
Drumul Gazarului
Stații tramvai aprox. 390 m
metro-station
Metrorex. Stația Constantin Brâncoveanu (M2)(1988)
Stații metrou aprox. 1812 m
Școală
kindergarten
Gradinita nr.228, "Piticot"
Gradinițe aprox. 220 m
kindergarten
Gradinita de copii nr. 62 Sanziana
Gradinițe aprox. 258 m
school
Scoala Generala nr.119 Vasile Voiculescu
Școli aprox. 305 m
university
Academie de Studii Postuniversitare - Politie
Universități aprox. 1789 m
Recreere
park
Parc
Parcuri aprox. 196 m
supermarket
Magazin alimentar
Supermarket aprox. 285 m
sports-ground
Teren sportiv
Terenuri sport aprox. 686 m
hypermarket
Selgros
Hipermarket aprox. 1948 m

Detalii despre preț și costuri

Prețul pe piață

Preț cerut: 121.940 €

Preț min. zonă 99.900 €
Preț max. zonă 450.000 €

86% dintre proprietățile similare ca zonă și nr. camere au prețul cerut mai mare. mai multe...

Bine de știut: prețul unei proprietăți este influențat și de alte caracteristici, cum ar fi: vechime, localizare, vecinătăți, suprafață, compartimentare, amenajări, dotări, etc. mai puțin...

Costuri cu achiziția

Fără credit
7.092 RON
Credit ipotecar
8.723 RON
Noua casă
762 RON+ taxe notariale

i

Costuri adiționale mai puțin știute la achiziție: taxe notariale, comisioane etc.

Proprietăți similare

Apartament cu 3 camere decomandat în Drumul Găzarului
121.900 €
București, Drumul Găzarului
3 camere
78 mp
Etaj 3 / 3
Apartament cu 3 camere decomandat, mobilat în Drumul Găzarului
120.000 €
București, Drumul Găzarului
3 camere
62 mp
Etaj 3
Apartament cu 2 camere decomandat în Apărătorii Patriei
120.000 €
București, Apărătorii Patriei
2 camere
60 mp
Etaj 4

Detalii de contact

Ramiro Imob

Cornel Ion Agent Imobiliar

4.00(3 review-uri)

Ramiro Imob
PRO

Abonează-te la newsletter să fii primul care primește cele mai noi recomandări de proprietăți și sfaturi de la experți.

CONTACT

Creează alertă

Salvează căutarea ca să primești pe email ultimele anunțuri publicate

Apartamente noi cu 3 camere de vânzare în zona Drumul Găzarului, Sector 4