Complet renovat - metrou - Institut Marius Nasta - posibilitate centrala proprie

89.000 €

Eroii Revoluției, București

Nr. cam.:
2
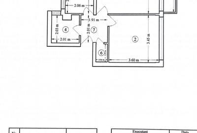
Sup. utilă:
45 mp
Etaj:
3 / 8
An constr.:
1965
  • • Locație exactă

Descriere apartament

- adresa exacta: Șos. Viilor nr.86, chiar la intrarea in Spital Marius Nasta - atentie, apartamentul nu este gata, este in curs de renovare, se schimba instalatii electrice si sanitare, la final va arata ca în poze - posibilitate alegeri finisaje - etajul 3/8 - bloc 1965 - neexpertizat, se poate lua prin credit ipotecar - țeava de gaze este in apartament, se poate monta centrală proprie - bloc anvelopat - balcon 3 mp - 700 metri metrou Eroii Revolutiei - estimare finalizare renovare - martie 2026
Citește mai mult Citește mai puțin
Decomandat 1 Balcon / Terasă / Logie Aer condiționat Calorifere

Detalii apartament

ID anunț: XDID0010R Copiat! 274236514 Copiat!
Actualizat în: 26 Februarie 2026
Nr. bucătării: 1
Nr. băi: 1
Structură rezistență: Beton
Tip imobil: Bloc de apartamente
Regim înălțime: P+8E

Utilități

Amenajare străzi
Asfaltate Betonate Mijloace de transport în comun Iluminat stradal
Comision
2%

Puncte de interes

Mijloace transport
bus-station
Autogara Perla Trans
Stații autobuz aprox. 363 m
tram-station
Dr. Constantin Istrati
Stații tramvai aprox. 365 m
bus-station
Dr. Constantin Istrati / Inclinata / Soseaua Viilor, Liniile 173, 232, N107, 1, 7, 11, 25, 47
Stații autobuz aprox. 429 m
metro-station
Metrorex. Stația Eroii Revoluției (M2)(1986)
Stații metrou aprox. 605 m
Școală
kindergarten
GRĂDINIȚA DE COPII NR. 168
Gradinițe aprox. 218 m
kindergarten
Gradinita cu orar prelungit nr. 168
Gradinițe aprox. 218 m
school
ȘCOALA CU CLASELE I-VIII NR. 114
Școli aprox. 358 m
university
Academia Tehnica Militara
Universități aprox. 1194 m
Recreere
park
parc copii
Parcuri aprox. 267 m
supermarket
Issa Supermarket Non-Stop
Supermarket aprox. 416 m
sports-ground
Teren sportiv
Terenuri sport aprox. 433 m
public-square
Piata Eroii Revolutiei (en)
Piețe publice aprox. 624 m

Detalii despre preț și costuri

Prețul pe piață

Preț cerut: 89.000 €

Preț min. zonă 59.000 €
Preț max. zonă 137.900 €

72% dintre proprietățile similare ca zonă și nr. camere au prețul cerut mai mic. mai multe...

Bine de știut: prețul unei proprietăți este influențat și de alte caracteristici, cum ar fi: vechime, localizare, vecinătăți, suprafață, compartimentare, amenajări, dotări, etc. mai puțin...

Costuri cu achiziția

Fără credit
14.663 RON
Credit ipotecar
16.120 RON
Noua casă
594 RON+ taxe notariale

i

Costuri adiționale mai puțin știute la achiziție: taxe notariale, comisioane etc.

Proprietăți recomandate

Detalii de contact

EXCLUSIVE HOMES ZVD SRL

Stefan Zavada-Radu Administrator

4.40(5 review-uri)

EXCLUSIVE HOMES ZVD SRL
PRO

Abonează-te la newsletter să fii primul care primește cele mai noi recomandări de proprietăți și sfaturi de la experți.

CONTACT

Creează alertă

Salvează căutarea ca să primești pe email ultimele anunțuri publicate

Apartamente cu 2 camere de vânzare în zona Eroii Revoluției, Sector 4