Comision 0! Apartament 2 camere, curte + terasa, Eroii Revolutiei

240.000 € + TVA

Eroii Revoluției, București

Nr. cam.:
2
Sup. utilă:
56,2 mp
Etaj:
Parter / 3
An constr.:
2025 (În construcție)
  • • Comision 0%
  • • Locație aproximativă

Descriere apartament

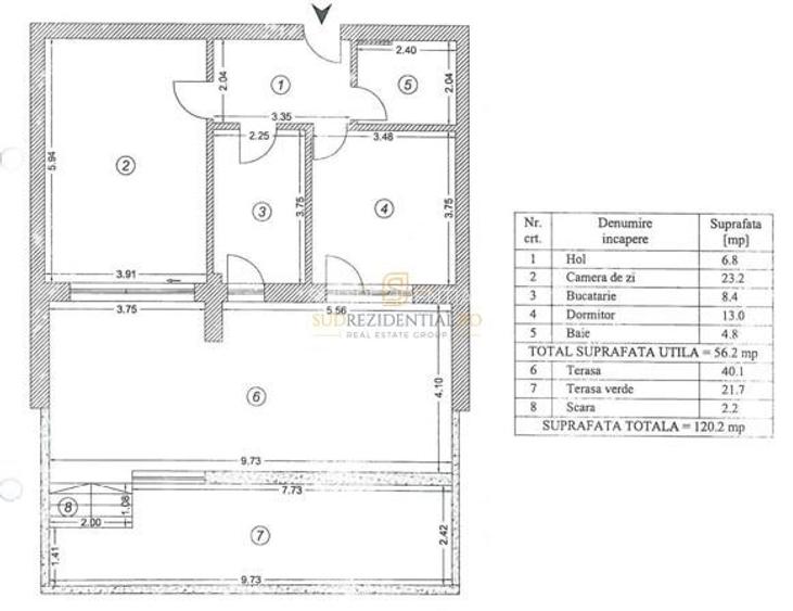
Acest apartament de 2 camere de la parter este o alegere ideala pentru cei care isi doresc confort si un spatiu generos in aer liber. Cu o suprafata utila de 56.2 mp, la care se adauga o terasa de 40.1 mp si o curte privata de 21.7 mp, locuinta ofera un echilibru perfect intre interior si exterior, permitand amenajarea unei zone de relaxare sau chiar a unui spatiu verde personalizat. Compartimentarea apartamentului este bine gandita pentru a oferi confort si functionalitate: - Living generos de 23.2 mp, un spatiu luminos si aerisit, ideal pentru relaxare si socializare - Bucatarie de 8.4 mp, separata, cu finisaje moderne si spatiu optim pentru depozitare - Dormitor confortabil de 13 mp, oferind intimitate si liniste - Baie eleganta de 4.8 mp, dotata cu obiecte sanitare de calitate - Hol de acces de 6.8 mp, care permite organizarea eficienta a spatiului - Curtea si terasa extind considerabil spatiul locuibil, oferind posibilitatea de a amenaja un loc de luat masa in aer liber, o zona de joaca sau un colt de relaxare cu verdeata. Apartamentul este situat intr-un complex rezidential modern, ce beneficiaza de infrastructura completa si acces rapid catre multiple facilitati: - Transport in comun: statii STB in apropiere, ce asigura conexiuni rapide catre centrul orasului. In plus, aproprierea fata de statia de metrou Eroii Revolutiei constituie un avantaj. - Centre comerciale: la cativa pasi se afla supermarketuri, magazine de proximitate si centre comerciale moderne - Spatii verzi: acces facil catre parcuri si zone de agrement (Parcul Carol I si Parcul Tineretului), ideale pentru plimbari sau activitati in aer liber - Unitati de invatamant: scoli si gradinite in apropiere, pentru familiile cu copii - Servicii si infrastructura: banci, farmacii, restaurante si alte facilitati esentiale la doar cateva minute distanta
Citește mai mult Citește mai puțin
Confort 1 Decomandat Nemobilat Grădină Curte Aer condiționat Centrală proprie Încălzire prin pardoseală

Detalii apartament

ID anunț: X53U105M0 Copiat! 275407336 Copiat!
Actualizat în: 06 Aprilie 2026
Suprafață construită: 138.23 mp
Nr. bucătării: 1
Nr. băi: 1
Structură rezistență: Beton
Tip imobil: Bloc de apartamente
Regim înălțime: S+P+3E
Nr. terase: 1

Utilități

Destinație
Birouri Rezidențial
Pereți
Faianță Vopsea lavabilă
Podele
Gresie Parchet
Ușă intrare
Metal
Uși interior
Lemn
Izolații termice
Exterior
Ferestre cu geam termopan
PVC
Contorizare
Apometre Contor căldură Contor gaz
Alte spații utile
Terasă
Facilități imobil
Lift Videointerfon
Utilități
Curent Apă Canalizare Gaze
Internet
Cablu
Amenajare străzi
Iluminat stradal Mijloace de transport în comun Asfaltate
Comision
0%

Disponibilitate proprietate:

03.2025

Puncte de interes

Mijloace transport
bus-station
Statia Piata Progresul, linia 323, N107,7,25
Stații autobuz aprox. 199 m
tram-station
Sos. Giurgiului
Stații tramvai aprox. 494 m
bus-station
Statia Toporasi, linia 323, N107,7,25
Stații autobuz aprox. 518 m
metro-station
Metrorex. Stația Constantin Brâncoveanu (M2)(1988)
Stații metrou aprox. 1140 m
Școală
school
gradinita
Școli aprox. 204 m
kindergarten
Gradinita Alba ca Zapada si Piticii
Gradinițe aprox. 263 m
school
cresa giurgiului
Școli aprox. 288 m
university
Academie de Studii Postuniversitare - Politie
Universități aprox. 1450 m
Recreere
park
Playground Livada
Parcuri aprox. 52 m
supermarket
Complex Agroalimentar Progresul
Supermarket aprox. 182 m
sports-ground
Sala de Sport
Terenuri sport aprox. 444 m
public-square
Piata Eroii Revolutiei (en)
Piețe publice aprox. 1217 m

Detalii despre preț și costuri

Prețul pe piață

Preț cerut: 240.000 €

Preț min. zonă 59.000 €
Preț max. zonă 137.900 €

i

Proprietate cu prețul cerut în afara intervalului mai multe...

Posibile explicații pentru faptul că prețul proprietății este peste cel maxim: imobil nou cu suprafață mare, are dotări și finisaje de lux.
Bine de știut: prețul unei proprietăți este influențat și de alte caracteristici, cum ar fi: vechime, localizare, vecinătăți, suprafață, compartimentare, amenajări, dotări, etc.

Costuri cu achiziția

Fără credit
12.876 RON
Credit ipotecar
15.222 RON
Noua casă
1.620 RON+ taxe notariale

i

Costuri adiționale mai puțin știute la achiziție: taxe notariale, comisioane etc.

Proprietăți similare

Apartament cu 2 camere decomandat în Eroii Revoluției
240.000 € + TVA
București, Eroii Revoluției
2 camere
120 mp
Parter / 3
Apartament cu 3 camere decomandat în Eroii Revoluției
250.500 € + TVA
București, Eroii Revoluției
3 camere
86,2 mp
Etaj 1 / 3
Apartament cu 2 camere decomandat în Eroii Revoluției
240.000 € + TVA
București, Eroii Revoluției
2 camere
56,2 mp
Parter / 3

Detalii de contact

SUD REZIDENTIAL

SudRezidential Excelenta in imobiliare

SUD REZIDENTIAL
PRO

Abonează-te la newsletter să fii primul care primește cele mai noi recomandări de proprietăți și sfaturi de la experți.

CONTACT

Creează alertă

Salvează căutarea ca să primești pe email ultimele anunțuri publicate

Apartamente cu 2 camere de vânzare în zona Eroii Revoluției, Sector 4