Apartament modern cu 3 camere, imobil nou, zona Eroii Revolutiei

265.000 € + TVA

Eroii Revoluției, București

Nr. cam.:
3
Sup. utilă:
83,8 mp
Etaj:
1 / 3
An constr.:
2025 (În construcție)
  • • Comision 0%
  • • Locație aproximativă

Descriere apartament

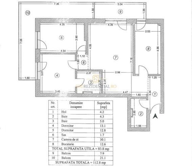
Va prezentam un apartament modern si spatios cu 3 camere, situat la etajul 1 al unui ansamblu exclusivist din Sector 4, Bucuresti. Acest apartament ofera un design contemporan si o compartimentare inteligenta, fiind ideal pentru familii sau pentru cei care isi doresc spatiu si confort. Suprafata si compartimentare: - Suprafata utila: 83.8 mp - Balcon: 29 mp Interiorul este eficient compartimentat si include: - Hol: 4.2 mp - Bucatarie: 12.6 mp - Camera de zi: 30.1 mp - Dormitor 1: 13.1 mp - Dormitor 2: 12.8 mp - Baie principala: 5 mp - Grup sanitar: 4.3 mp - Sas: 1.7 mp Finisajele sunt premium, incluzand tamplarie PVC cu geam tripan, parchet de calitate superioara si gresie moderna. Sistemul de incalzire prin pardoseala si centrala termica proprie asigura un confort optim pe tot parcursul anului. Ansamblul Boutique Bradetului Residence este amplasat strategic, avand acces facil la mijloace de transport in comun. Statia de metrou Eroii Revolutiei este la 10-12 minute de mers pe jos, iar statiile STB si tramvaiele 7, 19 si 25 sunt la doar 2 minute distanta. Zona ofera o infrastructura completa, cu unitati de invatamant, centre comerciale (Mall Sun Plaza, Piata Progresul) si parcuri renumite precum Tineretului, Oraselul Copiilor si Carol. Toate acestea contribuie la o calitate superioara a vietii pentru viitorii proprietari. In pretul afisat nu este inclusa cota de TVA.
Citește mai mult Citește mai puțin
Confort 1 Nemobilat 2 Balcoane / Terase / Logii Aer condiționat Centrală proprie Încălzire prin pardoseală

Detalii apartament

ID anunț: X53U10525 Copiat! 275356998 Copiat!
Actualizat în: 26 Martie 2026
Suprafață construită: 129 mp
Nr. bucătării: 1
Nr. băi: 2
Structură rezistență: Beton
Tip imobil: Bloc de apartamente
Regim înălțime: S+P+3E

Utilități

Destinație
Birouri Rezidențial
Pereți
Faianță Vopsea lavabilă
Podele
Gresie Parchet
Ușă intrare
Metal
Uși interior
Lemn
Izolații termice
Exterior
Ferestre cu geam termopan
PVC
Contorizare
Apometre Contor căldură Contor gaz
Facilități imobil
Lift Videointerfon
Utilități
Curent Apă Canalizare Gaze
Internet
Cablu
Amenajare străzi
Iluminat stradal Mijloace de transport în comun Asfaltate
Comision
0%

Disponibilitate proprietate:

data_properties.property_availability.03.2025

Puncte de interes

Mijloace transport
tram-station
Cimitirul Serban Voda
Stații tramvai aprox. 68 m
tram-station
Sura Mare (Coborare)
Stații tramvai aprox. 135 m
bus-station
Statia Sura Mare, linia 323, N107, 7, 25, 1
Stații autobuz aprox. 188 m
metro-station
Eroii Revolutiei (M2)
Stații metrou aprox. 421 m
Școală
school
Institutul Teologic Catolic "Sf. Iosif" (en)
Școli aprox. 131 m
school
Colegiul romano-catolic Sfantul Iosif
Școli aprox. 131 m
kindergarten
Ursuletul de Plus - Gradinita de vara&afterschool
Gradinițe aprox. 472 m
university
Academie de Studii Postuniversitare - Politie
Universități aprox. 1331 m
Recreere
supermarket
BILLA - Eroii Revolutiei
Supermarket aprox. 59 m
public-square
Piata Eroii Revolutiei (en)
Piețe publice aprox. 454 m
sports-ground
Teren sportiv
Terenuri sport aprox. 466 m
park
Parc
Parcuri aprox. 638 m

Detalii despre preț și costuri

Prețul pe piață

Preț cerut: 265.000 €

Preț min. zonă 84.000 €
Preț max. zonă 219.000 €

i

Proprietate cu prețul cerut în afara intervalului mai multe...

Posibile explicații pentru faptul că prețul proprietății este peste cel maxim: imobil nou cu suprafață mare, are dotări și finisaje de lux.
Bine de știut: prețul unei proprietăți este influențat și de alte caracteristici, cum ar fi: vechime, localizare, vecinătăți, suprafață, compartimentare, amenajări, dotări, etc.

Costuri cu achiziția

Fără credit
13.916 RON
Credit ipotecar
16.390 RON
Noua casă
1.775 RON+ taxe notariale

i

Costuri adiționale mai puțin știute la achiziție: taxe notariale, comisioane etc.

Proprietăți similare

Apartament cu 2 camere decomandat în Eroii Revoluției
240.000 € + TVA
București, Eroii Revoluției
2 camere
56,2 mp
Parter / 3
Apartament cu 3 camere în Eroii Revoluției
265.000 € + TVA
București, Eroii Revoluției
3 camere
77,7 mp
Parter / 3
Apartament cu 2 camere decomandat în Eroii Revoluției
240.000 € + TVA
București, Eroii Revoluției
2 camere
56,2 mp
Parter / 3

Detalii de contact

SUD REZIDENTIAL

SudRezidential Excelenta in imobiliare

SUD REZIDENTIAL
PRO

Abonează-te la newsletter să fii primul care primește cele mai noi recomandări de proprietăți și sfaturi de la experți.

CONTACT

Creează alertă

Salvează căutarea ca să primești pe email ultimele anunțuri publicate

Apartamente cu 3 camere de vânzare în zona Eroii Revoluției, Sector 4