2

Apartament cu 3 camere la nici 15 minute distanta de PIATA LUICA - PRINDE OFERTA

83.500 €

Giurgiului, București

Nr. cam.:
3
Sup. utilă:
65 mp
Etaj:
1 / 3
An constr.:
2025 (Finalizată)
  • • Comision 0%
  • • Locație exactă
  • • Vizionare prin apel video

Descriere apartament

Apartamente cu 3 CAMERE in suprafata utila 65 mp utili + 2 mp balcon. Pret vanzare 83.500 EUR (TVA 21% INCLUS DEJA IN PRET). Predarea apartamentelor se va face IMEDIAT! DOAR 1 UNITATE MAI AVEM DISPONIBILA CU 3 CAMERE! Adresa este: Str. Tineretului, nr. 24, Comuna 1 Decembrie, Judet Ilfov. X - Residence este un Complex Rezidential format din 4 proiecte MARI: PROIECT 1 - format din 96 aparatmente - SOLD OUT! PROIECT 2 – format din 26 case individuale cu gradina proprie – SOLD OUT! PROIECT 3 - format din 56 apartamente cu 2 si 3 camere, VANDUT 95% -Mutarea se poate face IMEDIAT! PROIECT 4 - format din 32 apartamente cu 2 si 3 camere cu gradina sau terasa individuala- VANDUT 15% - Mutarea se poate face in IUNIE 2026! Alte informatii: - 15 Minute pana la M. Eroii Revolutieti cu masina personala/uber/taxi - 25 Minute pana la M. Eroii Revolutiei cu mijlocul de transport in comun, R418, R465 sau Maxi-Taxi. COMISION 0 % Acceptam orice varianta de CREDIT BANCAR Nu acceptam RATE LA DEZVOLTATOR COMPLEXUL REZIDENTIAL ESTE RACORDAT LA TOATE UTILITATILE Pentru mai multe informatii/detalii stabilirea unei vizionari va rugam sa ne contactati telefonic/whatsapp
Citește mai mult Citește mai puțin
Confort lux Semidecomandat Nemobilat 1 Balcon / Terasă / Logie Aer condiționat Calorifere Centrală proprie Renovat

Detalii apartament

ID anunț: XA270003Q Copiat! 271034147 Copiat!
Actualizat în: 06 Aprilie 2026
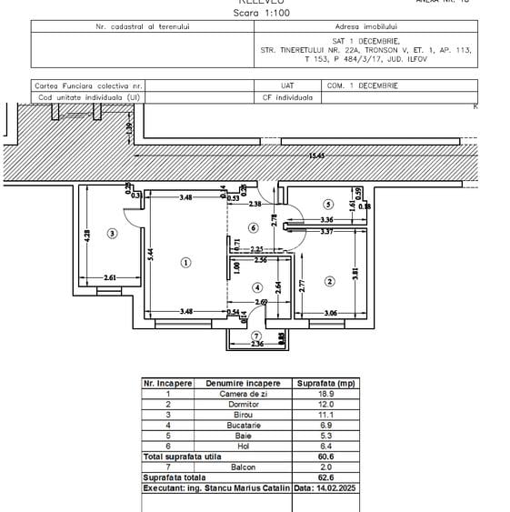
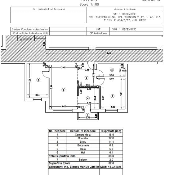
Suprafață utilă totală: 67 mp
Suprafață construită: 70 mp
Nr. bucătării: 1
Nr. băi: 1
Structură rezistență: Beton
Tip imobil: Bloc de apartamente
Regim înălțime: P+3E

Utilități

Destinație
Rezidențial
Pereți
Faianță
Podele
Gresie Parchet
Ușă intrare
Metal
Uși interior
Lemn
Izolații termice
Exterior
Ferestre cu geam termopan
PVC
Contorizare
Contor gaz Apometre
Utilități
Curent Apă Canalizare Gaze
Internet
Fibră optică
Servicii imobil
Administrare Supraveghere video
Amenajare străzi
Asfaltate Iluminat stradal Mijloace de transport în comun
Comision
0%

Certificat energetic:

Clasa energetică: B

Vicii:

FARA VICII si ALTE IPOTECI

Vecinătăți:

Bucuresti - 10 minute cu masina
Metrou Eroii Revolutiei - 17 minute cu masina
Piata Luica si Topras - 12-13 minute
Piata Unirii - 30 minute cu masina
Parcul Comana - 25 minute cu masina

Disponibilitate proprietate:

IMEDIAT

Puncte de interes

Școală
school
GreenCity kindergarden (en)
Școli aprox. 818 m
school
scoala 305 (noua)
Școli aprox. 974 m
school
scoala 305 (veche)
Școli aprox. 1314 m
Recreere
supermarket
Mega Image - Green City
Supermarket aprox. 507 m
park
Parc
Parcuri aprox. 809 m
restaurant
Renaissance Restaurant GreenCity (en)
Restaurant aprox. 846 m
park
Parc
Parcuri aprox. 879 m

Detalii despre preț și costuri

Prețul pe piață

Preț cerut: 83.500 €

Preț min. zonă
Preț max. zonă

80% dintre proprietățile similare ca zonă și nr. camere au prețul cerut mai mare. mai multe...

Bine de știut: prețul unei proprietăți este influențat și de alte caracteristici, cum ar fi: vechime, localizare, vecinătăți, suprafață, compartimentare, amenajări, dotări, etc. mai puțin...

Insight premium disponibil după login

Costuri cu achiziția

Fără credit
Credit ipotecar
Noua casă

i

Costuri adiționale mai puțin știute la achiziție: taxe notariale, comisioane etc.

Insight premium disponibil după login

Proprietăți recomandate

Detalii de contact

IAMI GROUP SRL

residence X imobiliare Agentie IMOBILIARA

IAMI GROUP SRL
PRO

Abonează-te la newsletter să fii primul care primește cele mai noi recomandări de proprietăți și sfaturi de la experți.

CONTACT

Creează alertă

Salvează căutarea ca să primești pe email ultimele anunțuri publicate

Apartamente noi cu 3 camere de vânzare în zona Giurgiului, Sector 4