apartament- casa 146mp 7camere Bulevadul Marasesti -locuinta comercial

209.970 €

Mărășești, București

Nr. cam.:
7
Sup. utilă:
146 mp
Etaj:
Parter / 1
An constr.:
1940 (Finalizată)
  • • Exclusivitate
  • • Locație aproximativă

Descriere apartament

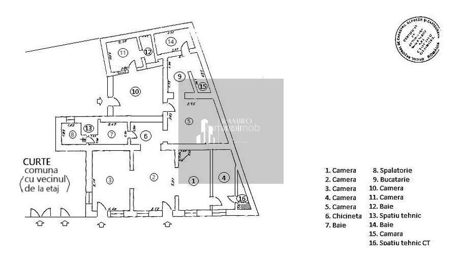
Va prezentam un spatiu deosebit, spatios si accesibil, pretabil pentru activitate comerciala datorita accesului direct din Bulevardul Marasesti Spatiul este potrivit si pentru utilizare mixta, o parte rezidential - o parte comercial (birouri/servicii), si reprezinta parterul unei case P+1, cu o curte comuna cu vecinul de la etaj. Zona este ultracentrala, la cateva minute de centrul orasului, langa Fantana Zodiac, in apropiere Tineretului, Parcul Carol, Bulevardul Cantemir, Piata Unirii, Centrul Vechi. 10 minute de mers pe jos pana la statia de metrou Unirii. Casa este solid construita, renovata, acoperisul in stare perfecta, curtea foarte bine intretinuta, proprietatea poate fi cumparata si cu credit bancar. Centrala proprie, interior renovat, partial mobilat. Nu ratati ocazia de a cumpara acest apartament spatios la parterul unei case solide, perfect pentru utilizare comerciala, situata într-o zona ultracentrala, cu toate facilitatile la îndemana ! Pentru mai multe detalii, vizionări sau oferte similare, contactați-mă! Marius Comision standard Oferim suport complet în relația cu banca, cu acces la cele mai bune oferte de finanțare, precum și asistență notarială la cele mai bune prețuri.
Citește mai mult Citește mai puțin
Confort 1 Semidecomandat Curte comună Aer condiționat Centrală proprie

Detalii apartament

ID anunț: XCRN103VU Copiat! 275135729 Copiat!
Actualizat în: 27 Februarie 2026
Suprafață construită: 170 mp
Nr. bucătării: 1
Nr. băi: 3
Structură rezistență: Beton
Tip imobil: Casă/Vilă
Regim înălțime: P+1E

Utilități

Destinație
Birouri Rezidențial Comercial
Pereți
Faianță Vopsea lavabilă
Podele
Gresie Parchet
Ușă intrare
Metal
Uși interior
Lemn
Izolații termice
Exterior
Ferestre cu geam termopan
Aluminiu
Contorizare
Apometre Contor căldură Contor gaz
Bucătărie
Mobilată
Facilități imobil
Interfon
Utilități
Curent Apă Canalizare CATV Gaze Telefon
Internet
Cablu
Amenajare străzi
Iluminat stradal Mijloace de transport în comun Asfaltate
Comision
standard

Vecinătăți:

Marasesti, Cantemir, Unirii, Tineretului, Parcul Carol, Principatele Unite, Filaret

Disponibilitate proprietate:

Imediat

Puncte de interes

Mijloace transport
tram-station
Parcul Carol I
Stații tramvai aprox. 279 m
bus-station
Statia Parcul Carol I, linia 232, 7, 23, 27, 47
Stații autobuz aprox. 308 m
tram-station
Parcul Carol I
Stații tramvai aprox. 384 m
metro-station
Metrorex. Stația Tineretului (M2)(1986)
Stații metrou aprox. 542 m
Școală
kindergarten
Gradinita cu program prelungit Copiii Soarelui
Gradinițe aprox. 259 m
school
Gradinita Aniela
Școli aprox. 513 m
kindergarten
Gradinita de Copii nr.30 "Copiii soarelui
Gradinițe aprox. 571 m
university
Academia Tehnica Militara
Universități aprox. 917 m
Recreere
park
Parc
Parcuri aprox. 110 m
supermarket
Shop & Go
Supermarket aprox. 266 m
sports-ground
Teren sportiv
Terenuri sport aprox. 349 m
public-square
Piața Regina Maria
Piețe publice aprox. 813 m

Detalii despre preț și costuri

Costuri cu achiziția

Fără credit
10.111 RON
Credit ipotecar
12.115 RON
Noua casă
1.210 RON+ taxe notariale

i

Costuri adiționale mai puțin știute la achiziție: taxe notariale, comisioane etc.

Proprietăți similare

Apartament cu 3 camere decomandat, mobilat în Mărășești
190.000 €
București, Mărășești
3 camere
75,74 mp
Parter
Apartament cu 7 camere semidecomandat în Mărășești
209.970 €
București, Mărășești
7 camere
146 mp
Parter / 1
Apartament cu 6 camere nedecomandat în Mărășești
214.999 €
București, Mărășești
6 camere
130 mp
Parter / 1

Detalii de contact

Ramiro Imob

Marius Adi Agent Imobiliar

Ramiro Imob
PRO

Abonează-te la newsletter să fii primul care primește cele mai noi recomandări de proprietăți și sfaturi de la experți.

CONTACT

Creează alertă

Salvează căutarea ca să primești pe email ultimele anunțuri publicate

Apartamente cu 4+ camere de vânzare în zona Mărășești, Sector 4