Oltenitei -Tulnici -3 camere

118.000 €

Olteniței, București

Nr. cam.:
3
Sup. utilă:
67 mp
Etaj:
1 / 4
An constr.:
1981 (Finalizată)
  • • Locație exactă

Descriere apartament

Apartament decomandat ,fara modificari interioare si de structura ,aer conditionat ,termopan ,2 balcoane inchise termopan ,necesita renovare. Bloc reabilitat termic 2025 si pozitionat adiacent fata de sosea ,acces usor catre metrou ,Mall ,piata , magazine, scoli.
Citește mai mult Citește mai puțin
Confort 1 Decomandat Parțial mobilat 2 Balcoane / Terase / Logii Aer condiționat Calorifere Necesită renovare

Detalii apartament

ID anunț: X669002T7 Copiat! 275407844 Copiat!
Actualizat în: 06 Aprilie 2026
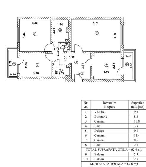
Suprafață utilă totală: 68 mp
Suprafață construită: 70 mp
Nr. bucătării: 1
Nr. băi: 2
Structură rezistență: Beton
Tip imobil: Bloc de apartamente
Regim înălțime: P+4E

Utilități

Destinație
Rezidențial De vacanță
Podele
Parchet Gresie
Ușă intrare
Metal
Uși interior
Lemn
Izolații termice
Interior Exterior
Ferestre cu geam termopan
PVC
Electrocasnice
Aragaz Frigider Mașină de spălat
Facilități imobil
Interfon
Utilități
Apă Canalizare Curent Gaze
Amenajare străzi
Asfaltate Betonate Mijloace de transport în comun Iluminat stradal
Comision
Negociabil

Certificat energetic:

Clasa energetică: A

Vicii:

Nu are.

Vecinătăți:

Piata Sudului ,Mall Sun Plaza ,metrou

Alte detalii:

Zona curata cu acces usor catre metrou.

Puncte de interes

Mijloace transport
tram-station
Stadion
Stații tramvai aprox. 147 m
bus-station
Statia Stadion linia 634
Stații autobuz aprox. 164 m
tram-station
Statia Stadion linia 11
Stații tramvai aprox. 174 m
metro-station
Piata Sudului (M2)
Stații metrou aprox. 939 m
Școală
school
Scoala nr. 133
Școli aprox. 213 m
school
Scoala generala Nr. 133 (en)
Școli aprox. 223 m
kindergarten
Gradinita Happy Junior
Gradinițe aprox. 541 m
university
Universitatea "Spiru Haret" (Fosta Casă de Cultură IMGB).
Universități aprox. 830 m
Recreere
supermarket
Mega Image Oltenitei
Supermarket aprox. 135 m
park
Parc
Parcuri aprox. 197 m
mall
Cora Sun Plaza
Mall aprox. 1104 m
hypermarket
Hornbach
Hipermarket aprox. 1984 m

Detalii despre preț și costuri

Prețul pe piață

Preț cerut: 118.000 €

Preț min. zonă 84.000 €
Preț max. zonă 219.000 €

52% dintre proprietățile similare ca zonă și nr. camere au prețul cerut mai mic. mai multe...

Bine de știut: prețul unei proprietăți este influențat și de alte caracteristici, cum ar fi: vechime, localizare, vecinătăți, suprafață, compartimentare, amenajări, dotări, etc. mai puțin...

Costuri cu achiziția

Fără credit
6.955 RON
Credit ipotecar
8.569 RON
Noua casă
742 RON+ taxe notariale

i

Costuri adiționale mai puțin știute la achiziție: taxe notariale, comisioane etc.

Proprietăți similare

Apartament cu 2 camere semidecomandat, mobilat în Olteniței
119.999 €
București, Olteniței
2 camere
54 mp
Etaj 10 / 10
Apartament cu 3 camere decomandat, mobilat în Olteniței
115.900 €
București, Olteniței
3 camere
69 mp
Etaj 4
Apartament cu 3 camere semidecomandat, mobilat în Olteniței
110.000 €
București, Olteniței
3 camere
85 mp
Etaj 5

Detalii de contact

CORIS HOUSE

Cosmescu Rodica Administrator

4.71(6 review-uri)

CORIS HOUSE
PRO

Abonează-te la newsletter să fii primul care primește cele mai noi recomandări de proprietăți și sfaturi de la experți.

CONTACT

Creează alertă

Salvează căutarea ca să primești pe email ultimele anunțuri publicate

Apartamente cu 3 camere de vânzare în zona Olteniței, Sector 4