11

2 camere Unirii - Mitropolie stradal, centrală proprie, liniste

249.000 €

Parcul Carol, București

Nr. cam.:
3
Sup. utilă:
80 mp
Etaj:
Parter / 3
Tip prop.:
Bloc de apartamente
  • • Locație exactă

Descriere apartament

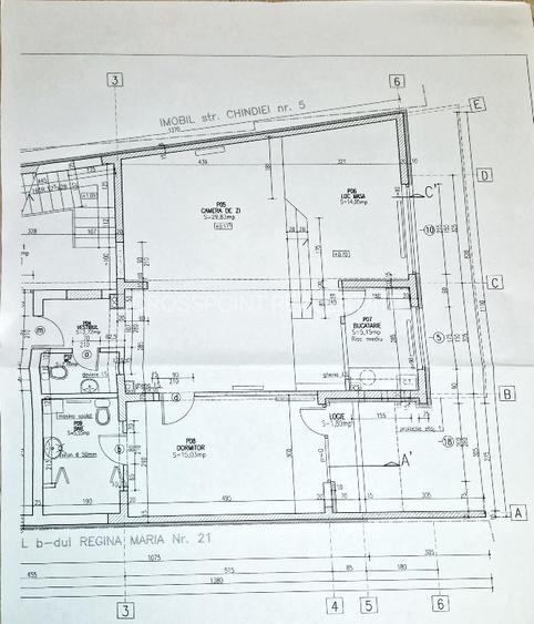
Apartament 2-3 camere | Mitropolie – Unirii | 80 mp utili | bloc cu 7 apartamente din 2006 | curte, liniște, centrală proprie Este un apartament deosebit, situat în zona Mitropolie – Bulevardul Regina Maria, la doar 10 minute de mers pe jos de Piața Unirii . Apartamentul se află într-un bloc boutique construit în 2006, solid, din cărămidă, cu doar 7 apartamente în total – un imobil elegant, liniștit și bine întreținut, cu intretinere mica (nu exista lift, iar terasa apartine celor 2 locatari de la etajul 2). Este singurul apartament situat la parterul înalt al clădirii (echivalent etaj 1 dinspre spatele imobilului), ceea ce îi oferă intimitate, liniște și acces facil, fără vecini direcți pe același nivel, fara vecini direnti n stanga sau dreapta, care sa deranjeze. Detalii apartament: • Suprafață utilă: ~80 mp (81.5 mp cu balcon) • Compartimentare actuală: 2 camere foarte spațioase, 2 băi (una foarte spatioasa, una de se serviciu) • Configurație ideală atât pentru birou / sediu de firmă, cât și pentru locuință • Living generos, tip open-space, cu 3 trepte ce duc spre o zonă luminoasă, ideală pentru dining, birou, bibliotecă sau chiar un jacuzzi decorativ • Dormitor / birou secundar cu baie proprie si un mic balcon • Centrală termică proprie, costuri mici de întreținere • Finisaje de calitate, renovare în 2020 • Orientare spre spate – foarte liniștit, deși imobilul este stradal, cu un mic balcon • Mică curte în față, acces facil • Subsol tehnic (fără boxă proprie) • Documentație completă a construcției (suntem primul cumparator) • Fără lift si terasa comuna, costuri minime pe întreținere Avantaje si utilizări posibile • Pretabil pentru cabinete de avocatură, notariat, executori judecătorești, firme de turism, consultanță, imobiliare, IT sau servicii corporate – spațiu cu vizibilitate stradală și acces ușor pentru public • Ideal pentru cupluri sau persoane care caută o locuință ultracentrală, spațioasă și liniștită, într-un bloc mic, cu vecini de calitate și trafic redus, dar cu spatiu frumos impartit (living-ul are o forma deosebita, cu o zona delimitata cu trepte, langa fereastra) • Posibilitate revenire la 3 camere, desi apartamentul arata mult mai bine asa (noi l-am solicitat asa, din perioada constructiei, desi el apare in acte ca 3 camere). Alte detalii utile • Locuri de parcare gratuite disponibile în zonă • Vecini civilizați – o parte din apartamente sunt locuințe de serviciu ale unei bănci, utilizate rar • În total, doar 4 apartamente locuite permanent → liniște și confort ridicat • Acces facil către Unirii, Mitropolie, Piața Constituției, Calea Șerban Vodă sau orice zona de centru • Se pot da indicatii de acces cu usurinta, fiind stradal. In apropiere: Mega Image, Coffee shop, restaurante, farmacii. În concluzie Un apartament unic în zona Mitropolie – Unirii, într-un imobil boutique, ideal pentru locuire, birou sau investiție. Spațios, luminos, cu compartimentare flexibilă și randament dovedit. Liniștea unui mic imobil privat, dar la 10 minute de mers pe jos de centrul Bucureștiului sau 2 minute cu masina.
Citește mai mult Citește mai puțin
Confort lux Decomandat

Detalii apartament

ID anunț: X14D1023F Copiat! 271158548 Copiat!
Actualizat în: 26 Ianuarie 2026
Nr. băi: 2
Regim înălțime: P+3E

Utilități

Utilități
Curent Apă Canalizare
Comision
standard

Disponibilitate proprietate:

Imediat

Puncte de interes

Mijloace transport
tram-station
Patriarhia Romana
Stații tramvai aprox. 131 m
bus-station
statia Gramont, linia 7, 23, 27, 47
Stații autobuz aprox. 278 m
metro-station
Metrorex. Stația Piața Unirii 1 (M1) (en)
Stații metrou aprox. 777 m
trolleybus-station
Statia Facultatea de Drept, linia 61,69,90,91
Stații troleibuz aprox. 1555 m
Școală
kindergarten
Gradinita nr.224, "Vestitorii Primaverii"
Gradinițe aprox. 203 m
kindergarten
Gradinita nr. 224
Gradinițe aprox. 214 m
school
Liceul de Arte "Dinu Lipatti"
Școli aprox. 268 m
university
Casa Academiei
Universități aprox. 570 m
Recreere
park
Parc
Parcuri aprox. 184 m
public-square
Piața Regina Maria
Piețe publice aprox. 350 m
supermarket
Mega Image
Supermarket aprox. 363 m
sports-ground
Teren sportiv
Terenuri sport aprox. 1060 m

Detalii despre preț și costuri

Prețul pe piață

Preț cerut: 249.000 €

Preț min. zonă
Preț max. zonă

71% dintre proprietățile similare ca zonă și nr. camere au prețul cerut mai mic. mai multe...

Bine de știut: prețul unei proprietăți este influențat și de alte caracteristici, cum ar fi: vechime, localizare, vecinătăți, suprafață, compartimentare, amenajări, dotări, etc. mai puțin...

Insight premium disponibil după login

Costuri cu achiziția

Fără credit
Credit ipotecar
Noua casă

i

Costuri adiționale mai puțin știute la achiziție: taxe notariale, comisioane etc.

Insight premium disponibil după login

Proprietăți recomandate

Detalii de contact

CROSSPOINT REAL ESTATE

Camelia Malancus Junior Sales Manager

CROSSPOINT REAL ESTATE
PRO

Abonează-te la newsletter să fii primul care primește cele mai noi recomandări de proprietăți și sfaturi de la experți.

CONTACT

Creează alertă

Salvează căutarea ca să primești pe email ultimele anunțuri publicate

Apartamente cu 3 camere de vânzare în zona Parcul Carol, Sector 4