Vă prezentăm un apartament cu 3 camere, bine proporționat și funcțional, situat într-o zonă rezidențială liniștită din inima Bucureștiului — Timpuri Noi – Vitan. Imobilul, construit în 2007 și reabilitat termic, oferă confort urban real: acces rapid la metrou, izolare fonică și termică superioară, plus toate utilitățile modernizate.
Apartamentul se vinde mobilat și utilat complet sau liber — la alegerea cumpărătorului.
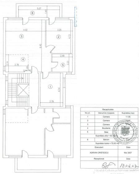
Compartimentare
Suprafață totală: 71 mp
Balcon deschis: 7 mp
Semidecomandat
Etaj: 3 din 4 — bloc cu lift
Baie: 1
Camere: 3 (separare clară zonă zi / zonă noapte)
Dotări și finisaje
Interior:
- Instalații electrice și sanitare noi — fără investiții imediate
- Centrală termică proprie — control total al costurilor
- Aer condiționat
- Izolație termică + termopane — eficiență energetică ridicată
- Contor gaze și apometre individuale
- Ușă metalică de securitate
- Balcon deschis de 7 mp
Exterior / Bloc:
- Bloc reabilitat termic
- Structură beton, construit 2007
- Lift funcțional
- Interfon
Localizare și puncte de interes
Zona Timpuri Noi, București
- 7 minute până la stația de metrou Timpuri Noi (M11)
- Acces facil spre Centrul Civic, Piața Unirii, Vitan
- Aproape de centre comerciale, școli, parcuri și servicii medicale
- Stradă rezidențială — trafic redus, liniște garantată
- Zonă consolidată cu infrastructură matură
Cui i se potrivește această proprietate?
Familii care doresc un spațiu funcțional, gata de locuit, în apropierea transportului în comun
Profesioniști care lucrează în zona centrală și apreciază accesul rapid la metrou
Investitori interesați de randament locativ solid într-o zonă cu cerere constantă
63%dintre proprietățile similare ca zonă și nr. camere au prețul cerutmai mare.
mai multe...
Bine de știut: prețul unei proprietăți este influențat și de alte caracteristici, cum ar fi: vechime, localizare, vecinătăți, suprafață, compartimentare, amenajări, dotări, etc.
mai puțin...
Costuri cu achiziția
Fără credit
8.979 RON
Credit ipotecar
10.843 RON
Noua casă
1.042 RON+ taxe notariale
i
Costuri adiționale mai puțin știute la achiziție: taxe notariale, comisioane etc.
Sediul central - Timișoara
Bulevardul Victor Babeș nr. 2, 300230, Timișoara, România
Tel: +40.374.40.44.98 / Fax: +40.256.401.179
Email: suport@imobiliare.ro
Luni - Vineri 08:00 - 20:00
Punct de lucru - București: Iride Business Park, Bld. Dimitrie
Pompeiu 9-9A, Clădirea B2B,
020335, Sector 2, București, România
CONTACT
Sediul central - Timișoara
Bulevardul Victor Babeș nr. 2, 300230, Timișoara, România
Tel: +40.374.40.44.98 / Fax: +40.256.401.179
Email: suport@imobiliare.ro
Luni - Vineri 08:00 - 20:00
Punct de lucru - București: Iride Business Park, Bld. Dimitrie
Pompeiu 9-9A, Clădirea B2B,
020335, Sector 2, București, România
Capat Universitatea Crestina Dimitrie Cantemir linii : 323.
aprox.
458 m
Statia Universitatea Crestina Dimitrie Cantemir linii:133.
aprox.
492 m
Mihai Bravu
aprox.
798 m
RATB: Penes Curcanul: Autobuz 124
aprox.
881 m
Statia Pod Mihai Bravu, linia 223, 124
aprox.
892 m
Soseaua Mihai Bravu
aprox.
988 m
Statia Palatul Copiilor linii : 76,313,381.
aprox.
1009 m
Statia Bd. Tineretului / Soseaua Mihai Bravu, linia 133, 223, 312, 313, 381, 634, N105
aprox.
1036 m
Statia Lucian Blaga linia 124, N111, N103, N104, 104, 123
aprox.
1060 m
Statia Calea Vitan, linia 123,124,135,181
aprox.
1096 m
Statia Calea Vitan, linia 135,181
aprox.
1096 m
Statia Depoul Dudesti, Liniile N103, 23, 27
aprox.
1124 m
Statia Laborator 135,181
aprox.
1253 m
Statia Bulevardul Marasesti linii : 76,312,313,381.
aprox.
1280 m
Metrorex. StațiaTimpuri Noi (M1),(M3)(1979)
aprox.
480 m
Timpuri Noi
aprox.
496 m
Metrorex. Stația Mihai Bravu (M1) , (M3)(1981)
aprox.
801 m
Metrorex. Stația Mihai Bravu (M1) , (M3).
aprox.
803 m
Metrorex. Stația Mihai Bravu (M1) , (M3).
aprox.
815 m
Statia Metrou Tineretului(M2)Metrorex
aprox.
1202 m
Metrorex. Stația Tineretului (M2)(1986)
aprox.
1211 m
Tineretului (M2)
aprox.
1216 m
Metrorex. Stația Dristor 2 (M1)(1989).
aprox.
1627 m
Piata Unirii 2
aprox.
1721 m
Metrorex.Stația Dristor 1 (M1) , (M3)(1981)
aprox.
1725 m
Metrorex. Stația Piața Unirii 1 (M1),(M3)(1979)
aprox.
1755 m
Metrorex. Stația Piața Unirii 2 (M2)(1986)
aprox.
1762 m
Piata Unirii 1
aprox.
1853 m
Metrorex. Stația Piața Unirii 2 (M2) (en)
aprox.
1885 m
Scoala Nr. 95
aprox.
318 m
Scoala nr 95
aprox.
318 m
Scoala Generala nr. 95
aprox.
318 m
B.C.A. (en)
aprox.
334 m
Liceul Petru Rares
aprox.
521 m
Scoala generala nr. 81
aprox.
545 m
Scoala Generala nr.81
aprox.
545 m
Școala 81
aprox.
550 m
Scoala 100 Andrei Saguna
aprox.
1009 m
Grupul Școlar Industrial Timpuri Noi
aprox.
1035 m
Scoala Generala nr. 84
aprox.
1037 m
Scoala Generala nr.84 "Nicolae Balcescu"
aprox.
1045 m
Scoala nr.79 "Academician Nicolae Teodorescu"
aprox.
1056 m
Colegiul National "Ion Creanga"
aprox.
1078 m
Palatul National al Copiilor
aprox.
1082 m
Gradinita de copii nr.161
aprox.
333 m
Gradinita
aprox.
434 m
Gradinita Plusica
aprox.
597 m
Gradinita (progr. prelungit) Aleea Borcea - Str. Ruginoasa
aprox.
860 m
Gradinita "Scufita Rosie"
aprox.
1031 m
Gradinita Barba Cot
aprox.
1294 m
Gradinita de Copii nr.30 "Copiii soarelui
aprox.
1336 m
Gradinita cu program prelungit Copiii Soarelui
aprox.
1514 m
Gradinita nr. 239
aprox.
1551 m
Cresa Micii Poznasi
aprox.
1561 m
Gradinita Kogaion
aprox.
1628 m
Gradinita Era
aprox.
1664 m
Gradinita de copii nr.24
aprox.
1973 m
Gradinita Prikindel
aprox.
1975 m
Universitatea Crestina "Dimitrie Cantemir"
aprox.
435 m
Universitatea Titu Maiorescu - Rectorat
aprox.
469 m
Universitatea Titu Maiorescu - Corp M
aprox.
475 m
Universitatea Nicolae Titulescu
aprox.
494 m
Universitatea "Nicolae Titulescu" - Bucuresti
aprox.
512 m
Universitatea "Titu Maiorescu"
aprox.
540 m
Universitatea Titu Maiorescu
aprox.
540 m
Institutul Bancar Român
aprox.
1490 m
Academia de Studii Economice
aprox.
1579 m
Academia de Studii Economice: Facultatea de Management - Administratie Publica
aprox.
1586 m
Facultatea de Teologie Ortodoxa
aprox.
1674 m
Universitatea Hyperion (en)
aprox.
1820 m
Universitatea Hyperion
aprox.
1822 m
Nerva Center
aprox.
405 m
Supermarket Fonzi
aprox.
470 m
MGV Green Expres
aprox.
489 m
Vio-Flor Prodservicom
aprox.
503 m
Profi
aprox.
509 m
Profi Non-Stop Vacaresti
aprox.
521 m
Supermarket Sinbad
aprox.
529 m
Shop & Go
aprox.
552 m
Penny Market
aprox.
573 m
Mega Image - Apahida
aprox.
586 m
Mega Image
aprox.
663 m
Bucuresti Mall
aprox.
697 m
Mega Image Bucuresti Mall
aprox.
698 m
Mega Image
aprox.
763 m
Lidl
aprox.
779 m
Bucharest, Calea Vitan nr. 8, Bl V51, near VITAN Mall
aprox.
647 m
Parcare
aprox.
203 m
Parcare
aprox.
403 m
Parcare
aprox.
483 m
Parcare
aprox.
563 m
Parcare
aprox.
573 m
Parcare
aprox.
577 m
Parcare
aprox.
584 m
Parcare
aprox.
584 m
Parcare
aprox.
677 m
Parcare
aprox.
680 m
Parcare
aprox.
707 m
Parcare
aprox.
728 m
Parcare
aprox.
738 m
Parcare
aprox.
752 m
Parcare
aprox.
765 m
Parculet (en)
aprox.
105 m
Parculet nou
aprox.
149 m
parculet
aprox.
281 m
Parculet si teren de joaca
aprox.
422 m
Parc
aprox.
479 m
Park (en)
aprox.
481 m
Parculet pentru copii
aprox.
512 m
Parc
aprox.
581 m
Parc
aprox.
636 m
Parc
aprox.
638 m
Parcul Emil Garleanu
aprox.
642 m
Parcul Emil Garleanu
aprox.
653 m
Parc
aprox.
656 m
Parc
aprox.
678 m
parc
aprox.
683 m
Teren sportiv
aprox.
535 m
Teren sportiv
aprox.
568 m
Teren sportiv
aprox.
590 m
Teren sportiv
aprox.
1100 m
Teren sportiv
aprox.
1180 m
Teren sportiv
aprox.
1184 m
Teren sportiv
aprox.
1184 m
Teren sportiv
aprox.
1202 m
Teren sportiv
aprox.
1221 m
Teren sportiv
aprox.
1290 m
Teren sportiv
aprox.
1311 m
Teren sportiv
aprox.
1312 m
Teren sportiv
aprox.
1335 m
Teren sportiv
aprox.
1347 m
Teren sportiv
aprox.
1415 m
Piata Bucur
aprox.
1067 m
Piata Bibescu
aprox.
1764 m
Piata Timpului
aprox.
1967 m
Piața Sfântul Anton
aprox.
1977 m
Plastic Surgery Clinic (en)
aprox.
246 m
SYNEVO
aprox.
626 m
Life Med
aprox.
639 m
Eurodent
aprox.
789 m
Policlinica vitan
aprox.
835 m
Medline
aprox.
867 m
Maternitatea Bucur
aprox.
1049 m
Spital Veterinar
aprox.
1130 m
Biostom Bucuresti
aprox.
1132 m
Ponderas
aprox.
1177 m
Clinica Polisano
aprox.
1207 m
Medicover (en)
aprox.
1216 m
Doctor Anghel Medical Center
aprox.
1231 m
ROMAR
aprox.
1236 m
Spitalul Caritas (en)
aprox.
1241 m
Farmacia Bucuresti Tehnoplus Farm
aprox.
508 m
Help Net
aprox.
525 m
Farmacie
aprox.
617 m
Farmacia Belladonna 63
aprox.
633 m
Centrofarm
aprox.
652 m
Vitan Farm Impex
aprox.
671 m
Sensiblu
aprox.
674 m
Leni Farm
aprox.
705 m
Orbit 93
aprox.
760 m
Catena
aprox.
767 m
Farmacia Denis
aprox.
802 m
Farmacia 50
aprox.
828 m
micaplant
aprox.
840 m
Farmacia Farmadex
aprox.
873 m
2na
aprox.
874 m
Cofetaria Opera
aprox.
59 m
Chinese Restaurant (en)
aprox.
150 m
Terasa Brandusa
aprox.
352 m
Manasra
aprox.
409 m
Restaurant Premium Events
aprox.
412 m
Adress
aprox.
412 m
Foisorului Restaurant (en)
aprox.
416 m
Bistro
aprox.
417 m
La Machidoni
aprox.
421 m
Pane e Vino
aprox.
441 m
Efes
aprox.
460 m
Amicii Restaurant (en)
aprox.
492 m
Pizza Zoom
aprox.
554 m
DESCHIS Gastrobar
aprox.
570 m
Creative Food
aprox.
570 m
Kaffa Pub
aprox.
78 m
The 1st Pub
aprox.
256 m
Roof
aprox.
716 m
Jukebox
aprox.
1208 m
Forno d'oro
aprox.
1237 m
Beraria Berestoika
aprox.
1268 m
The Temple
aprox.
1434 m
Pizzeria Classic
aprox.
1579 m
The Harp
aprox.
1621 m
Dristor Pub
aprox.
1629 m
Zvon
aprox.
1661 m
La Scena
aprox.
1864 m
Carol Cafe
aprox.
1869 m
Manasia Hub
aprox.
1938 m
Long Fong
aprox.
1973 m
Quartier
aprox.
526 m
Maroon Caffe
aprox.
597 m
Sfera caffe
aprox.
647 m
Kahve Dunyasi
aprox.
648 m
Starbucks
aprox.
768 m
gloria jeans coffee
aprox.
826 m
Cafe Boulevard
aprox.
829 m
Zebra Caffe
aprox.
868 m
Gio Cafe
aprox.
1129 m
High Class
aprox.
1130 m
La Trenulete
aprox.
1143 m
Puerto Cafe
aprox.
1173 m
Miau
aprox.
1174 m
Stretto Cofee
aprox.
1279 m
Habana Coffe
aprox.
1287 m
Pe baricade
aprox.
1314 m
Bar
aprox.
1422 m
BarFly
aprox.
1560 m
Nargila Grill&Bar
aprox.
1653 m
Club Guesthouse
aprox.
1949 m
Network Lounge
aprox.
1999 m
Piraeus Bank
aprox.
417 m
Pireus Bank
aprox.
436 m
Banca Carpatica
aprox.
456 m
BRD Nerva Traian
aprox.
493 m
BCR Nerva Traian
aprox.
514 m
Raiffeisen Bank Nerva Traian
aprox.
532 m
Sucursala CEC Bank Timpuri Noi (en)
aprox.
562 m
Raiffeisen Bank
aprox.
587 m
BCR
aprox.
629 m
Raiffeisen Bank - Agentia Bucuresti Mall
aprox.
651 m
Raiffeisen Bank
aprox.
660 m
ING Nerva Traian
aprox.
697 m
ING Self Bank
aprox.
715 m
Vitan Center (en)
aprox.
757 m
Banca Transilvania - Ag. Octavian Goga
aprox.
770 m
Dacă te vei muta în acest cartier, vei avea la dispoziție două stații de metrou care îți vor face călătoriile prin oraș mult mai ușoare și mai rapide. Este vorba despre Tineretului, stație situată pe magistrala 2 Berceni - Pipera, și despre Timpuri Noi, de unde poți lua metroul atât pentru a te deplasa pe ruta magistralei 1 Dristor - Pantelimon, cât și pe M2 Preciziei - Anghel Saligny. De la Tineretului ajungi, de exemplu, la Piața Universității în 5 minute și în Pipera în circa 15 minute. Alte mijloace de transport în comun care traversează zona de care ești interesat sunt tramvaiul 19, cu care poți să mergi către sud-estul orașului (Titan - Pallady), autobuzul 133 care îți oferă o legătură directă cu Piața Romană și troleibuzul 74 care ajunge la Piața Unirii.
Trei universități private își au sediul în această zonă, în imediata vecinătate a stației de metrou Timpuri Noi. Este vorba despre Universitatea "Titu Maiorescu", Universitatea "Nicolae Titulescu" și Universitatea Creștină "Dimitrie Cantemir". Alături de acestea este situat și Căminul Studențesc "Nicolae Titulescu". Unul dintre cele mai renumite licee din București poate fi găsit tot în această zonă. Colegiul Național "Gheorghe Șincai" se află lângă stația de metrou Tineretului. Caută pe hartă care vor fi cele mai apropiate instituții de învățământ de viitoarea ta locuință.
Multe dintre blocurile din această zonă dispun de spații comerciale la parter, deci chiar și atunci când vrei să faci doar câteva cumpărături rapide vei avea destul de multe opțiuni în apropiere. Poți cumpăra fructe și legume din Piața Norilor, aflată la doi pași de stația de metrou Tineretului, sau din Piața Timpuri Noi, situată lângă clădirea Universității "Titu Maiorescu". În vecinătatea acesteia vei găsi și un supermarket Profi. Chiar lângă Pasajul Mihai Bravu vei avea la dispoziție un magazin Lidl. Ajungi, totodată, rapid din zona Tineretului - Timpuri Noi la trei mall-uri: Sun Plaza, București Mall și ParkLake. La fel, în doar câteva minute ești cu mașina în centru. Consultă harta și vezi unde găsești cel mai apropiat magazin de viitoarea ta locuință.
O parcare publică cu câteva sute de locuri, dar și stații de încărcare pentru autovehiculele electrice este amplasată chiar lângă Palatul Național al Copiilor. Tot în apropiere, lângă Sala Polivalentă, ai câteva locuri de parcare la dispoziție, dacă ajungi la parc cu mașina. Îți recomandăm, totodată, să apelezi la Direcția Mobilitate Urbană Sector 4 dacă vei dori să închiriezi un loc de parcare în apropierea viitoarei tale locuințe. Un alt lucru pe care e bine să îl știi este că intersecția dintre Calea Șerban Vodă și bulevardele Tineretului, Gheorghe Șincai și Dimitrie Cantemir este una dintre cele mai aglomerate din zonă, în special la orele de vârf.
Zona Tineretului-Timpuri Noi îți oferă numeroase opțiuni de petrecere a timpului liber și poate fi ideală dacă ai copii. Vei avea la doi pași de casă Parcul Tineretului unde aceștia se pot plimba cu rolele sau cu bicicleta. Îi poți duce, totodată, la joacă în spațiile special amenajate pentru ei din Orășelul Copiilor. În zonă vei găsi un club cu terenuri de tenis, restaurant și piscină aflat vis-a-vis de Sala Polivalentă unde sunt organizate periodic târguri și diferite evenimente culturale și sportive. Palatul Național al Copiilor trebuie menționat fiind reprezentativ pentru acest cartier. Aici îți poți înscrie micuțul la diferite cluburi. În incinta sa funcționează și Teatrul Stela Popescu, iar lângă el, spre Pasajul Mihai Bravu vei găsi Parcul Lumea Copiilor. Acesta din urmă cuprinde mai multe terenuri sportive și chiar și o pistă de karting. Parcul Carol se află și el în apropiere. Aici vei găsi Arenele Romane, unde se organizează periodic concerte. Ajungi foarte rapid și în Parcul Natural Văcărești, dacă vrei să evadezi în natură câteva ore sau să te plimbi cu bicicleta. În zona Tineretului ai la dispoziție câteva restaurante și cafenele, iar pentru mai multă diversitate poți oricând să dai o fugă în Centrul Vechi al orașului. Dacă te vei muta aici, vei ajunge rapid la trei mall-uri - Sun Plaza, București Mall, ParkLake - și la centrul comercial Unirea Shopping Center. Află unde sunt localizate toate acestea de pe hartă.
La doi pași de Bulevardului Mărășești este localizată Maternitatea Bucur, iar unul dintre cele mai apropiate spitale private la care vei avea acces dacă te muți în zona Tineretului - Timpuri Noi este Monza Metropolitan Hospital de pe Calea Șerban Vodă. Institutul de Pneumologie Marius Nasta IV și Policlinica cu Plată nr. 3 pot fi găsite și ele în vecinătatea Parcului Tineretului. Consultă harta pentru a vedea ce alte unități sanitare sunt disponibile în zonă și în apropiere.
Ai la dispoziție câteva restaurante și terase pe principalele artere de circulație din zonă. Pe Bulevardul Dimitrie Cantemir găsești o cofetărie și una dintre cele mai apreciate shaormerii din oraș, pe Bulevardul Gheorghe Șincai o serie de cafenele, iar pe Calea Văcărești câteva restaurante. Poți lua o gustare și în cadrul proiectului dezvoltat de Vastit vis-a-vis de stația de metrou Timpuri Noi. Alte câteva opțiuni găsești și pe Strada Nerva Traian din apropiere. Mici terase pot fi găsite și în zona parcurilor la care ai acces în apropierea casei tale, iar dacă ai poftă de fast food poți să mergi la drive through-ul McDonald"™s situat lângă intrarea în Orășelul Copiilor sau la food court-ul din Sun Plaza. Ajungi în doar câteva minute cu mașina și la mall-urile ParkLake sau București Mall pentru o sesiune de shopping urmată de o gustare, iar dacă vrei mai multă diversitate poți să mergi, chiar și cu mijloacele de transport în comun, până în centrul orașului. Durează foarte puțin și vei găsi cu siguranță ceva pe gustul tău. Consultă harta și află ce restaurante, terase și fast food-uri ai lângă viitoarea ta locuință din zona Tineretului - Timpuri Noi.
Ai la dispoziție mai multe ATM-uri și sucursale bancare în intersecția aflată lângă Colegiul Național "Gh. Șincai" - ING, BRD, Raiffeisen Bank. La doi pași găsești și o Banca Transilvania. Consultă pe hartă și află unde se află cel mai apropiat bancomat de locuința ta.
Înainte să pleci...
Ești sigur că ai văzut și aceste proprietăți?
185.000 €
București, Timpuri Noi
3 camere
73 mp
Etaj 7 / 8
177.000 €
București, Timpuri Noi
3 camere
64 mp
Etaj 3 / 4
190.000 € + TVA
București, Timpuri Noi
2 camere
52,1 mp
Etaj 2
Creează alertă
Salvează căutarea ca să primești pe email ultimele anunțuri publicate
Apartamente cu 3 camere de vânzare în zona Timpuri Noi, Sector 4
Cere detalii prin email
*
*
*
*
Detaliile tale de contact vor fi partajate cu Imondo Real Estate
Statistici proprietate
Apartamente 3 camere de vânzare
- București
- Zona Timpuri Noi
Asigurare de viață/lună Costul este variabil. În funcție de banca aleasă, procentul variază între 0.0259% și 0.035% din soldul creditului.
Costuri cu achiziția10.843 RON
Comision agenție Întreabă agenţia
Onorariu notarial7.626 RON
Taxă întabulare OCPI1.353 RON
Autentificare contract credit1.864 RON
Preț de achiziție901.850 RON
Preț locuință901.850 RON
TVA 0%Inclus în prețul cerut
Preț de achiziție901.850 RON
Preț locuință901.850 RON
TVA 0%
Inclus în prețul cerut
Avans minim295.522 RON
Credit pe 30 de ani606.329 RON
Cost achitat în prima lună
Taxa evaluare imobil(până la)
575 RON
Rata lunară (variabilă)4.260 RON
Depozit colateral12.780 RON
Comision de garantare FNGCIMM75 RON
Asigurare anuală imobil902 RON
Poliță PAD130 RON
Tarif arhivă electronică102 RON
Costuri adiționale1.042 RON + taxe notariale
Asigurare viață și complexă (opțională)Costul este variabil. În funcție de banca aleasă, procentul variază între 0.0259% și 0.035% din soldul creditului
Onorariu notarialconform tarif notarial
Taxă întabulare OCPI1.042 RON
i
Toate valorile de mai sus sunt estimative și nu reprezintă în mod obligatoriu costurile exacte pe care le veți primi de la companiile/instituțiile prin care veți încheia tranzacția.