COMISION 0
VIB IMOBILIARE va prezinta spre vanzare un apartament cu 3 camere, situat la etajul 11 al unui imobil cu 12 etaje dat in folosinta in anul 2024.
Imobilul face parte din Ansamblul Tineretului Park, ansamblu format din 3 imobile care beneficiaza de curte imprejmuita, de acces cu bariere, de camere de luat vederi si de o comunitate de locatari tanara, civilizata. Imobilul din care face parte apartamentul dat spre vanzare este construit in stil Art Deco, are spatii comune moderne, spatiu larg modern amenajat la intrarea in casa scarii, beneficiaza de 2 lifturi cu acces din subsol.
Imobilul este construit pe structura de rezistenta pe piloni, diafragme, stalpi, grinzi, si inchideri perimetrale cu caramida.
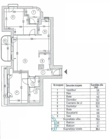
Apartamentul din prezentare este confort 1, semidecomandat, are o suprafata totala utila de 86,40 mp, din care 2 balcoane cu suprafete de 2,7 mp si 5,1 mp. Este finisat cu finisaje categoria premium, sunt dotate cu centrala proprie si incalzire in pardoseala. Se preda doar cu chitul de montaj aparat de aer conditionat. Suprafata utila totala este echilibrat impartita pe camere, permite creerea de spatii pentru depozitare, este foarte luminos, are un view spectaculos asupra parcului.
Zona este speciala luand in calcul amplasarea imobiluli in parc. Ai la dispozitie in imediata vecinatate infrastructura oferita de Parcul Tineretului, cu alei luminate, spatii verzi amenajate peisagistic, strand, locuri pentru sport, restaurante, cafenele, etc.
Citește mai mult
Citește mai puțin
Confort 1
Semidecomandat
Nemobilat
2 Balcoane
Curte comună
Centrală proprie
Încălzire prin pardoseală
85%dintre proprietățile similare ca zonă și nr. camere au prețul cerutmai mic.
mai multe...
Bine de știut: prețul unei proprietăți este influențat și de alte caracteristici, cum ar fi: vechime, localizare, vecinătăți, suprafață, compartimentare, amenajări, dotări, etc.
mai puțin...
Costuri cu achiziția
Fără credit
13.096 RON
Credit ipotecar
15.469 RON
Noua casă
1.653 RON+ taxe notariale
i
Costuri adiționale mai puțin știute la achiziție: taxe notariale, comisioane etc.
Calculul ipotecarului
Proprietăți recomandate
Pornind de la căutarea ta îți recomandăm următoarele anunțuri
Sediul central - Timișoara
Bulevardul Victor Babeș nr. 2, 300230, Timișoara, România
Tel: +40.374.40.44.98 / Fax: +40.256.401.179
Email: suport@imobiliare.ro
Luni - Vineri 08:00 - 20:00
Punct de lucru - București: Iride Business Park, Bld. Dimitrie
Pompeiu 9-9A, Clădirea B2B,
020335, Sector 2, București, România
CONTACT
Sediul central - Timișoara
Bulevardul Victor Babeș nr. 2, 300230, Timișoara, România
Tel: +40.374.40.44.98 / Fax: +40.256.401.179
Email: suport@imobiliare.ro
Luni - Vineri 08:00 - 20:00
Punct de lucru - București: Iride Business Park, Bld. Dimitrie
Pompeiu 9-9A, Clădirea B2B,
020335, Sector 2, București, România
Centrul de Recuperare pentru Copii dr. Nicolae Robanescu
aprox.
1314 m
Spitalul Maria Sklodowska Curie (de copii) - Budimex
aprox.
1318 m
Spitalul de copii BUDIMEX
aprox.
1330 m
Centrul medical Neomed
aprox.
1374 m
Policlinica Alfa
aprox.
1474 m
Zerlendi
aprox.
1493 m
Q Med (en)
aprox.
1509 m
Hanul Haiducilor
aprox.
239 m
Hanul Haiducilor
aprox.
255 m
Restaurant Le Medieval
aprox.
330 m
Terasa Castel
aprox.
339 m
Trattoria Angoli
aprox.
344 m
Restaurant Sevis
aprox.
348 m
Trattoria Borghese
aprox.
348 m
Restaurant HK
aprox.
390 m
McDonald's
aprox.
400 m
Pizza Expert
aprox.
417 m
Rotiseria Pomodoro
aprox.
417 m
McDonald's Brancoveanu
aprox.
420 m
Pizzeria Vatra cu bunatati
aprox.
431 m
Trattoria Rossini
aprox.
432 m
Fast food
aprox.
443 m
Terasa Ancor
aprox.
390 m
Terasa - Bar
aprox.
1086 m
Bar
aprox.
1088 m
La Gargarite
aprox.
1439 m
Terasa Prieteniei
aprox.
1558 m
The Godfather
aprox.
625 m
Reina Cafe
aprox.
937 m
Zvon Cafe
aprox.
962 m
Cafe Boulevard
aprox.
1691 m
Quartier
aprox.
1973 m
Starbucks Coffee
aprox.
996 m
Forno d'oro
aprox.
1492 m
Magic Pub
aprox.
1752 m
The 1st Pub
aprox.
1846 m
Kaffa Pub
aprox.
1886 m
ING Brancoveanu - Oltenitei
aprox.
414 m
Raiffeisen Bank - Agentia Brancoveanu
aprox.
536 m
Sucursala Raiffeisen bank (en)
aprox.
536 m
CEC Bank
aprox.
545 m
Bancpost
aprox.
568 m
ING Oltenitei
aprox.
569 m
BRD
aprox.
579 m
OTP Bank
aprox.
583 m
BRD
aprox.
594 m
Alpha Bank
aprox.
603 m
Banca Transilvania - Ag. Oraselul Copiilor
aprox.
622 m
Banca Carpatica
aprox.
696 m
Sucursala Banca Transilvania (en)
aprox.
837 m
Banca Transilvania - Ag. Vacaresti
aprox.
845 m
Bancpost
aprox.
847 m
Dacă te vei muta în acest cartier, vei avea la dispoziție două stații de metrou care îți vor face călătoriile prin oraș mult mai ușoare și mai rapide. Este vorba despre Tineretului, stație situată pe magistrala 2 Berceni - Pipera, și despre Timpuri Noi, de unde poți lua metroul atât pentru a te deplasa pe ruta magistralei 1 Dristor - Pantelimon, cât și pe M2 Preciziei - Anghel Saligny. De la Tineretului ajungi, de exemplu, la Piața Universității în 5 minute și în Pipera în circa 15 minute. Alte mijloace de transport în comun care traversează zona de care ești interesat sunt tramvaiul 19, cu care poți să mergi către sud-estul orașului (Titan - Pallady), autobuzul 133 care îți oferă o legătură directă cu Piața Romană și troleibuzul 74 care ajunge la Piața Unirii.
Trei universități private își au sediul în această zonă, în imediata vecinătate a stației de metrou Timpuri Noi. Este vorba despre Universitatea "Titu Maiorescu", Universitatea "Nicolae Titulescu" și Universitatea Creștină "Dimitrie Cantemir". Alături de acestea este situat și Căminul Studențesc "Nicolae Titulescu". Unul dintre cele mai renumite licee din București poate fi găsit tot în această zonă. Colegiul Național "Gheorghe Șincai" se află lângă stația de metrou Tineretului. Caută pe hartă care vor fi cele mai apropiate instituții de învățământ de viitoarea ta locuință.
Multe dintre blocurile din această zonă dispun de spații comerciale la parter, deci chiar și atunci când vrei să faci doar câteva cumpărături rapide vei avea destul de multe opțiuni în apropiere. Poți cumpăra fructe și legume din Piața Norilor, aflată la doi pași de stația de metrou Tineretului, sau din Piața Timpuri Noi, situată lângă clădirea Universității "Titu Maiorescu". În vecinătatea acesteia vei găsi și un supermarket Profi. Chiar lângă Pasajul Mihai Bravu vei avea la dispoziție un magazin Lidl. Ajungi, totodată, rapid din zona Tineretului - Timpuri Noi la trei mall-uri: Sun Plaza, București Mall și ParkLake. La fel, în doar câteva minute ești cu mașina în centru. Consultă harta și vezi unde găsești cel mai apropiat magazin de viitoarea ta locuință.
O parcare publică cu câteva sute de locuri, dar și stații de încărcare pentru autovehiculele electrice este amplasată chiar lângă Palatul Național al Copiilor. Tot în apropiere, lângă Sala Polivalentă, ai câteva locuri de parcare la dispoziție, dacă ajungi la parc cu mașina. Îți recomandăm, totodată, să apelezi la Direcția Mobilitate Urbană Sector 4 dacă vei dori să închiriezi un loc de parcare în apropierea viitoarei tale locuințe. Un alt lucru pe care e bine să îl știi este că intersecția dintre Calea Șerban Vodă și bulevardele Tineretului, Gheorghe Șincai și Dimitrie Cantemir este una dintre cele mai aglomerate din zonă, în special la orele de vârf.
Zona Tineretului-Timpuri Noi îți oferă numeroase opțiuni de petrecere a timpului liber și poate fi ideală dacă ai copii. Vei avea la doi pași de casă Parcul Tineretului unde aceștia se pot plimba cu rolele sau cu bicicleta. Îi poți duce, totodată, la joacă în spațiile special amenajate pentru ei din Orășelul Copiilor. În zonă vei găsi un club cu terenuri de tenis, restaurant și piscină aflat vis-a-vis de Sala Polivalentă unde sunt organizate periodic târguri și diferite evenimente culturale și sportive. Palatul Național al Copiilor trebuie menționat fiind reprezentativ pentru acest cartier. Aici îți poți înscrie micuțul la diferite cluburi. În incinta sa funcționează și Teatrul Stela Popescu, iar lângă el, spre Pasajul Mihai Bravu vei găsi Parcul Lumea Copiilor. Acesta din urmă cuprinde mai multe terenuri sportive și chiar și o pistă de karting. Parcul Carol se află și el în apropiere. Aici vei găsi Arenele Romane, unde se organizează periodic concerte. Ajungi foarte rapid și în Parcul Natural Văcărești, dacă vrei să evadezi în natură câteva ore sau să te plimbi cu bicicleta. În zona Tineretului ai la dispoziție câteva restaurante și cafenele, iar pentru mai multă diversitate poți oricând să dai o fugă în Centrul Vechi al orașului. Dacă te vei muta aici, vei ajunge rapid la trei mall-uri - Sun Plaza, București Mall, ParkLake - și la centrul comercial Unirea Shopping Center. Află unde sunt localizate toate acestea de pe hartă.
La doi pași de Bulevardului Mărășești este localizată Maternitatea Bucur, iar unul dintre cele mai apropiate spitale private la care vei avea acces dacă te muți în zona Tineretului - Timpuri Noi este Monza Metropolitan Hospital de pe Calea Șerban Vodă. Institutul de Pneumologie Marius Nasta IV și Policlinica cu Plată nr. 3 pot fi găsite și ele în vecinătatea Parcului Tineretului. Consultă harta pentru a vedea ce alte unități sanitare sunt disponibile în zonă și în apropiere.
Ai la dispoziție câteva restaurante și terase pe principalele artere de circulație din zonă. Pe Bulevardul Dimitrie Cantemir găsești o cofetărie și una dintre cele mai apreciate shaormerii din oraș, pe Bulevardul Gheorghe Șincai o serie de cafenele, iar pe Calea Văcărești câteva restaurante. Poți lua o gustare și în cadrul proiectului dezvoltat de Vastit vis-a-vis de stația de metrou Timpuri Noi. Alte câteva opțiuni găsești și pe Strada Nerva Traian din apropiere. Mici terase pot fi găsite și în zona parcurilor la care ai acces în apropierea casei tale, iar dacă ai poftă de fast food poți să mergi la drive through-ul McDonald"™s situat lângă intrarea în Orășelul Copiilor sau la food court-ul din Sun Plaza. Ajungi în doar câteva minute cu mașina și la mall-urile ParkLake sau București Mall pentru o sesiune de shopping urmată de o gustare, iar dacă vrei mai multă diversitate poți să mergi, chiar și cu mijloacele de transport în comun, până în centrul orașului. Durează foarte puțin și vei găsi cu siguranță ceva pe gustul tău. Consultă harta și află ce restaurante, terase și fast food-uri ai lângă viitoarea ta locuință din zona Tineretului - Timpuri Noi.
Ai la dispoziție mai multe ATM-uri și sucursale bancare în intersecția aflată lângă Colegiul Național "Gh. Șincai" - ING, BRD, Raiffeisen Bank. La doi pași găsești și o Banca Transilvania. Consultă pe hartă și află unde se află cel mai apropiat bancomat de locuința ta.
Înainte să pleci...
Ești sigur că ai văzut și aceste proprietăți?
319.900 € + TVA
București, Pipera
3 camere
97 mp
Etaj 4
322.000 € + TVA
București, Olteniței
3 camere
137 mp
Etaj 2 / 7
1.335.000 €
București, Herăstrău
4 camere
166 mp
Etaj 5
799.000 €
București, Floreasca
4 camere
149 mp
Etaj 2
350.000 € + TVA
București, Pipera
3 camere
127 mp
Etaj 5
145.575 €
București, Berceni
3 camere
136 mp
Parter / 6
Creează alertă
Salvează căutarea ca să primești pe email ultimele anunțuri publicate
Apartamente noi cu 3 camere de vânzare în zona Tineretului, Sector 4
Cere detalii prin email
*
*
*
*
Detaliile tale de contact vor fi partajate cu Vib & Partners
Statistici proprietate
Apartamente 3 camere de vânzare
- București
- Zona Tineretului
Asigurare de viață/lună Costul este variabil. În funcție de banca aleasă, procentul variază între 0.0259% și 0.035% din soldul creditului.
Costuri cu achiziția15.469 RON
Comision agenție Întreabă agenţia
Onorariu notarial10.826 RON
Taxă întabulare OCPI2.270 RON
Autentificare contract credit2.373 RON
Preț de achiziție1.513.007 RON
Preț locuință1.513.007 RON
TVA 0%Inclus în prețul cerut
Preț de achiziție1.513.007 RON
Preț locuință1.513.007 RON
TVA 0%
Inclus în prețul cerut
Avans minim906.785 RON
Credit pe 30 de ani606.222 RON
Cost achitat în prima lună
Taxa evaluare imobil(până la)
575 RON
Rata lunară (variabilă)4.260 RON
Depozit colateral12.780 RON
Comision de garantare FNGCIMM126 RON
Asigurare anuală imobil1.513 RON
Poliță PAD130 RON
Tarif arhivă electronică102 RON
Costuri adiționale1.653 RON + taxe notariale
Asigurare viață și complexă (opțională)Costul este variabil. În funcție de banca aleasă, procentul variază între 0.0259% și 0.035% din soldul creditului
Onorariu notarialconform tarif notarial
Taxă întabulare OCPI1.653 RON
i
Toate valorile de mai sus sunt estimative și nu reprezintă în mod obligatoriu costurile exacte pe care le veți primi de la companiile/instituțiile prin care veți încheia tranzacția.