Apartament 3 camere Tineretului | Renovat | 2 Locuri de Parcare | Ideal Locuinta

199.000 €

Tineretului, București

Nr. cam.:
3
Sup. utilă:
73,9 mp
Etaj:
4
An constr.:
1980
  • • Exclusivitate
  • • Locație exactă

Descriere apartament

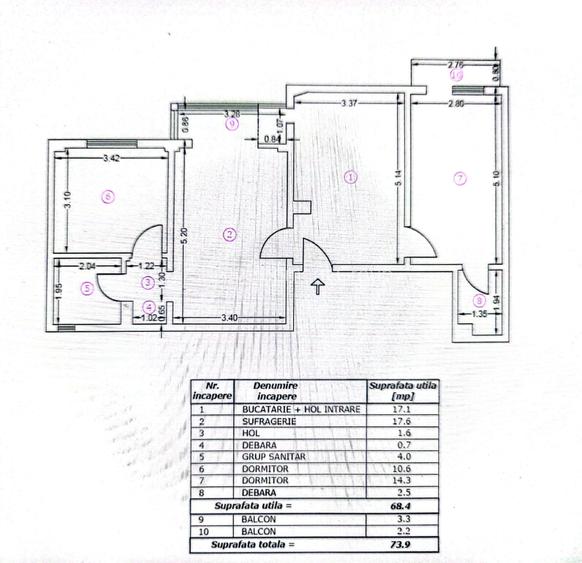
Si Group va prezinta in exclusivitate spre vanzare un apartament de 3 camere decomandat cu o suprafata utila de 68.4 m.p., la care se adauga 2 balcoane in suprafata de 5.5 m.p., rezultand o suprafata utila totala de 73.9 m.p. ,situat la etajul 4/8 intr-un imobil finalizat in anul 1980. Localizare : Aceasta este situata in Bucuresti, sector 4, zona Tineretului - Timpuri Noi, la o distanta de 2 minute fata de parcul Tineretului, 10 minute fata de statia de metrou Timpuri Noi si 15 minute de acces pietonal fata de statia de metrou Tineretului. Imobilul este in planul secundar fata de bulevard, ferit de agitatie. Cateva informatii legate de IMOBIL: - Bloc dat in folosinta in 1980; - scara foarte curata, vecini linistiti, supraveghere video. Avantajele principale ale proprietatii sunt urmatoarele: -Apartamentul a fost renovat , toate instalatiile ( electrice + sanitare) au fost schimbate. -Blocul are supraveghere video si lift -Acces imediat cu masina Ultracentral -Geamuri termopan la toate ferestrele -2 Aparate de Aer Conditionat Suprafete ( verificati ultima fotografie din anunt pentru releveu/schita ): * Suprafață: 68.4 mp utili, perfect compartimentat pentru a satisface nevoile unei familii sau ale unui cuplu. * Suprafata utila totala: 73.9 mp Concluzionand, aceasta proprietate se preteaza pentru resedinta, insa si pentru o investitie imediata. ** Actele pregatite pentru vanzare, predare imediata. Se accepta orice metoda de plata, fie ca este achitarea integrala ( transfer bancar ), fie prin credit. Pentru varianta creditarii, va stam la dispozitie gratuit cu echipa, cat si pentru toata procedura juridica de achizitie. Detalii financiare : Comision cumparator : Standard. Proprietar persoana fizica, nu se adauga TVA la pretul afisat.
Citește mai mult Citește mai puțin
Confort 1 Decomandat Acceptă animale de companie Mobilat 2 Balcoane / Terase / Logii Aer condiționat Calorifere Termoficare 2 Parcări Bine întreținut (Bună)

Detalii apartament

ID anunț: XACM0028H Copiat! 275420549 Copiat!
Actualizat în: 08 Aprilie 2026
Suprafață utilă totală: 73.9 mp
Nr. bucătării: 1
Nr. băi: 2
Structură rezistență: Beton
Tip imobil: Bloc de apartamente
Regim înălțime: P+8E
Vizionare cu programare: Da

Utilități

Destinație
Rezidențial Comercial Birouri De vacanță
Pereți
Faianță Vopsea lavabilă
Podele
Gresie Parchet
Ușă intrare
Metal
Uși interior
Lemn
Ferestre cu geam termopan
Aluminiu
Contorizare
Contor gaz Apometre
Bucătărie
Mobilată Utilată
Electrocasnice
Mașină de spălat Frigider Aragaz Hotă
Diverse
Scară interioară
Alte spații utile
WC Serviciu
Facilități imobil
Lift Interfon
Utilități
Gaze Curent Canalizare Apă
Internet
Cablu Fibră optică Wireless
Servicii imobil
Administrare Supraveghere video
Amenajare străzi
Asfaltate Betonate Iluminat stradal Mijloace de transport în comun
Comision
Standard

Vecinătăți:

Statia de Metrou Timpuri Noi 10 minute acces pietonal
Statia de Metrou Tineretului 15 minute acces pietonal
Parcul Tineretului
Parcul Lumea Copiilor
Calea Vacaresti
Bulevardul Tineretului
Splaiul Unirii
- Cumparaturi: MegaImage Tineretului (in imediata apropiere 300m), Lidl(750m), Peny(750m), Profi(500m).
- Invatamant: Licee, scoli gimnaziale, 3 gradinite in apropiere,
- Banci si ATM-uri - BCR,Raiffaisen, Banca Transilvania, etc.

Alte detalii despre preț:

Proprietar persona fizica, nu se adauga TVA.

Puncte de interes

Mijloace transport
bus-station
Statia Palatul Copiilor linii : 76,313,381.
Stații autobuz aprox. 179 m
bus-station
Statia Universitatea Crestina Dimitrie Cantemir linii:133.
Stații autobuz aprox. 626 m
tram-station
Universitatea Crestina Dimitrie Cantemir
Stații tramvai aprox. 645 m
metro-station
Metrorex. StațiaTimpuri Noi (M1),(M3)(1979)
Stații metrou aprox. 682 m
Școală
school
Liceul Petru Rares
Școli aprox. 357 m
university
Universitatea "Titu Maiorescu"
Universități aprox. 361 m
school
Palatul National al Copiilor
Școli aprox. 381 m
kindergarten
Gradinita (progr. prelungit) Aleea Borcea - Str. Ruginoasa
Gradinițe aprox. 514 m
Recreere
park
Park
Parcuri aprox. 146 m
supermarket
Mega Image
Supermarket aprox. 216 m
sports-ground
Teren sportiv
Terenuri sport aprox. 311 m
mall
Bucharest, Calea Vitan nr. 8, Bl V51, near VITAN Mall
Mall aprox. 1519 m

Detalii despre preț și costuri

Prețul pe piață

Preț cerut: 199.000 €

Preț min. zonă
Preț max. zonă

50% dintre proprietățile similare ca zonă și nr. camere au prețul cerut mai mare. mai multe...

Bine de știut: prețul unei proprietăți este influențat și de alte caracteristici, cum ar fi: vechime, localizare, vecinătăți, suprafață, compartimentare, amenajări, dotări, etc. mai puțin...

Insight premium disponibil după login

Costuri cu achiziția

Fără credit
Credit ipotecar
Noua casă

i

Costuri adiționale mai puțin știute la achiziție: taxe notariale, comisioane etc.

Insight premium disponibil după login

Proprietăți similare

Apartament cu 3 camere decomandat în Tineretului
200.000 €
București, Tineretului
3 camere
64,92 mp
Parter / 8
Apartament cu 3 camere decomandat în Tineretului
199.995 € + TVA
București, Tineretului
3 camere
76 mp
Etaj 4 / 5
Apartament cu 4 camere decomandat în Tineretului
189.000 €
București, Tineretului
4 camere
90 mp
Etaj 8 / 8

Detalii de contact

SI Development Group

Darius Real estate broker

5.00(4 review-uri)

SI Development Group
PRO

Abonează-te la newsletter să fii primul care primește cele mai noi recomandări de proprietăți și sfaturi de la experți.

CONTACT

Creează alertă

Salvează căutarea ca să primești pe email ultimele anunțuri publicate

Apartamente cu 3 camere de vânzare în zona Tineretului, Sector 4