Apartament 3 camere | Bloc nou |loc parcare | Metrou Icomision 0

256.128 € + TVA

13 Septembrie, București

Nr. cam.:
3
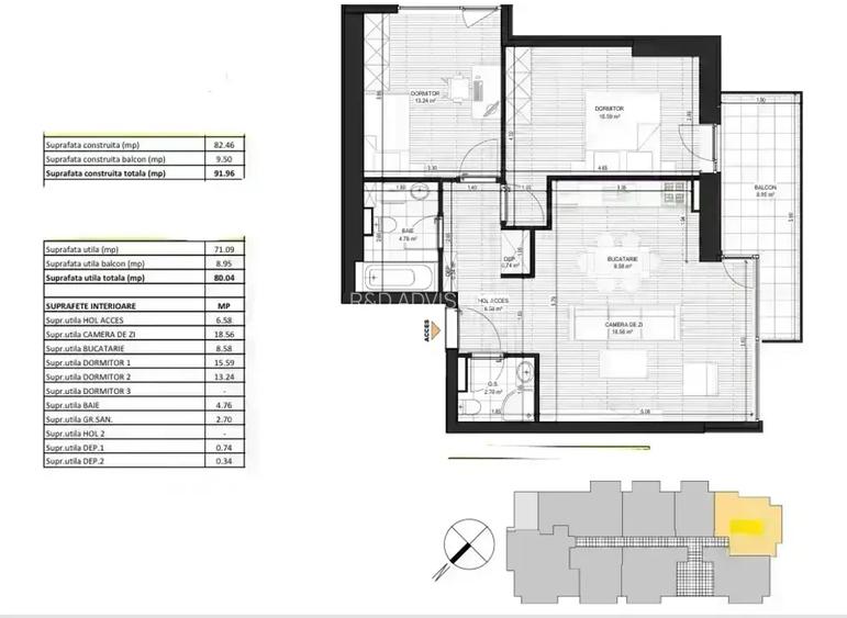
Sup. utilă:
80,04 mp
Etaj:
1 / 11
An constr.:
2024 (Finalizată)
  • • Comision 0%
  • • Locație exactă

Descriere apartament

Acest apartament de lux, cu 3 camere, situat în zona 13 Septembrie din București, face parte din proiectul Best Residence, un bloc modern cu 11 etaje, finalizat în anul 2024. Locuința se află la etajul 1 și are o suprafață utilă totala 80,04 mp, din care balcon 8,95 mp si respectiv suprafața construită 86 mp, oferind un spațiu generos și bine compartimentat, ce asigură intimitate și confort. Finisajele sunt de calitate superioară, incluzând parchet, gresie, marmură, vopsea lavabilă și faianță, iar tâmplăria este realizată din aluminiu. Blocul este izolat termic, contribuind la eficiența energetică a locuinței, care beneficiază de clasa energetică A. Sistemele de încălzire sunt moderne și eficiente, fiind asigurate prin centrală proprie a imobilului și încălzire prin pardoseală. Locuința este completată de facilități importante precum videointerfon, lift, WC serviciu, debarale pentru depozitare, senzori de fum, precum și telecomenzi pentru accesul auto și poarta garajului. Parcarea este inclusă, cu un loc de parcare alocat. În ceea ce privește serviciile oferite în cadrul complexului, acestea includ administrare, pază și supraveghere video, asigurând siguranță și un management eficient al proprietății. Zona beneficiază de iluminat stradal, acces facil la mijloacele de transport în comun, iar drumurile sunt asfaltate și betonate, facilitând accesul rapid și comod către diverse puncte de interes. Acest apartament este potrivit atât pentru locuire rezidențială, cât și pentru investitie, oferind un spațiu modern, confortabil și bine echipat, într-o zonă dinamică și bine conectată a Bucureștiului. Sipoteanu Oana VAUNT ID: 108147
Citește mai mult Citește mai puțin
Confort lux Decomandat Nemobilat 1 Balcon / Terasă / Logie Aer condiționat Centrală imobil Încălzire prin pardoseală Beci 1 Parcare Bine întreținut (Bună)

Detalii apartament

ID anunț: X7QH202D1 Copiat! 275456854 Copiat!
Actualizat în: 20 Aprilie 2026
Suprafață utilă totală: 80.04 mp
Suprafață construită: 91.96 mp
Nr. bucătării: 1
Nr. băi: 2
Structură rezistență: Beton
Tip imobil: Bloc de apartamente
Regim înălțime: S+P+11E

Utilități

Destinație
Rezidențial Comercial
Pereți
Vopsea lavabilă Faianță
Podele
Gresie Marmură
Ușă intrare
Parchet Metal
Ferestre cu geam termopan
Aluminiu Lemn
Contorizare
Apometre Contor căldură Contor gaz
Diverse
Senzor de fum Telecomandă poartă garaj Telecomandă poartă acces auto
Alte spații utile
WC Serviciu Debara
Facilități imobil
Videointerfon Interfon Lift
Utilități
Gaze CATV Curent Apă Canalizare
Internet
Fibră optică Cablu Wireless
Servicii imobil
Administrare Pază Supraveghere video
Amenajare străzi
Iluminat stradal Mijloace de transport în comun Asfaltate Betonate
Comision
0%

Certificat energetic:

Clasa energetică: A

Puncte de interes

Mijloace transport
bus-station
statia Soseaua Pandurilor, linia 385, 136, N121, N122, 226, 122
Stații autobuz aprox. 96 m
tram-station
Statie RATB
Stații tramvai aprox. 313 m
metro-station
Academia Militară (M5)
Stații metrou aprox. 1077 m
trolleybus-station
Statia Piata Operei, linia 61,69,90,91
Stații troleibuz aprox. 1158 m
Școală
school
Scoala Nr. 115
Școli aprox. 364 m
school
Scoala nr 115
Școli aprox. 377 m
kindergarten
Gradinita Adnan
Gradinițe aprox. 524 m
university
Universitatea Nationala de Aparare "Carol I"
Universități aprox. 803 m
Recreere
park
Parc
Parcuri aprox. 68 m
public-square
Jose Rizal Square (en)
Piețe publice aprox. 107 m
supermarket
Carrefour express
Supermarket aprox. 322 m
sports-ground
Teren sportiv
Terenuri sport aprox. 323 m

Detalii despre preț și costuri

Prețul pe piață

Preț cerut: 256.128 €

Preț min. zonă
Preț max. zonă

94% dintre proprietățile similare ca zonă și nr. camere au prețul cerut mai mic. mai multe...

Bine de știut: prețul unei proprietăți este influențat și de alte caracteristici, cum ar fi: vechime, localizare, vecinătăți, suprafață, compartimentare, amenajări, dotări, etc. mai puțin...

Insight premium disponibil după login

Costuri cu achiziția

Fără credit
Credit ipotecar
Noua casă

i

Costuri adiționale mai puțin știute la achiziție: taxe notariale, comisioane etc.

Insight premium disponibil după login

Proprietăți similare

Apartament cu 3 camere semidecomandat în 13 Septembrie
257.160 € + TVA
București, 13 Septembrie
3 camere
85,72 mp
Parter / 9
Apartament cu 3 camere semidecomandat în 13 Septembrie
245.000 € + TVA
București, 13 Septembrie
3 camere
79,7 mp
Etaj 10
Apartament cu 3 camere semidecomandat în 13 Septembrie
251.880 € + TVA
București, 13 Septembrie
3 camere
78,21 mp
Parter

Detalii de contact

R&D ADVISERS

Oana Sipoteanu Project Manager

4.33(9 review-uri)

R&D ADVISERS
PRO

Abonează-te la newsletter să fii primul care primește cele mai noi recomandări de proprietăți și sfaturi de la experți.

CONTACT

Creează alertă

Salvează căutarea ca să primești pe email ultimele anunțuri publicate

Apartamente noi cu 3 camere de vânzare în zona 13 Septembrie, Sector 5