Apartament 2 Camere | Cotroceni | Ideal Investitie |

154.617 € + TVA

Panduri, București

Nr. cam.:
2
Sup. utilă:
53,47 mp
Etaj:
7 / 11
An constr.:
2025 (Finalizată)
  • • Locație exactă

Descriere apartament

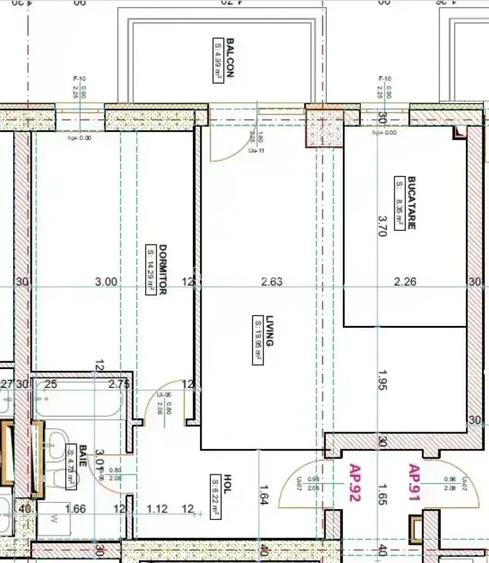
Vă propunem spre vânzare un apartament cu 2 camere, decomandat, spațios și luminos, situat la etajul 7 al unui imobil nou, cu regim de înălțime S+P+11 Triplex. Locuința are o suprafață generoasa de 53.47mp utili, plus un balcon de 4.99mp. Detalii constructie și finisaje: Imobilul este construit pe structură solidă din stâlpi și diafragme din beton armat de 40 cm, cu grinzi și planșee tot din beton armat. Fațada este parțial ventilată, realizată cu fibrociment Eqitone (gama Tectiva sau similar) și vopsea structurată, iar termoizolația se face cu vată minerală bazaltică, aplicată pe parter și parțial la etajele superioare. Dotări exterioare: - Tâmplărie PVC Salamander cu feronerie perimetrală și balamale ascunse; - Geamuri tripan pentru eficiență termică și fonică; - Ușă de acces în bloc din aluminiu, concepută pentru trafic intens; - Finisaje interioare de înaltă calitate: - Pereți de compartimentare din BCA Ytong de 12,5 cm, pereți exteriori și între apartamente din BCA Ytong de 30 cm - Tencuială mecanizată, două straturi de glet și vopsea lavabilă albă - Pardoseli pregătite cu încălzire în pardoseală, sape armate pe placă cu nuturi, pentru izolare termică și fonică superioară - Plafoane tencuite, gletuite complet și zugrăvite în alb Sistem de încălzire: Încălzirea se face prin sistem cu temperatură joasă – apă caldă distribuită prin țevi multistrat cu barieră de oxigen, montate în pardoseală. Agentul termic este furnizat de 4 centrale de bloc, asigurând un climat interior optim pe tot parcursul anului. Toate materialele folosite pentru construcție și finisaje sunt premium, asigurând durabilitate, confort și siguranță . Localizare și accesibilitate: Imobilul este situat într-o zonă liniștită, dar excelent conectată la rețeaua de transport public. În apropiere se regăsesc numeroase magazine, statii STB, Metrou, restaurante, școli, grădinițe și servicii, toate accesibile în câteva minute. Această proprietate este o alegere ideală pentru cei care doresc să trăiască într-un mediu confortabil și aerisit, fără a renunța la proximitatea față de centrul orașului și facilitățile acestuia. Pozele sunt cu titlu de prezentare. Apartamentul se preda la "ALB" (fara gresie, ceramica, sanitare, parchet si usi de interior), urmand ca finisajele (material + manopera) sa fie contractate separat, prin partenerii nostri Delta Studio la un pret preferential sau de la orice alta firma de finisaje interioare. Pretul este de 154.617 Euro + TVA. Loc suprateran tip Klaus (2 locuri): 22.000 euro + TVA Pitrop Dumitru VAUNT ID: 111793
Citește mai mult Citește mai puțin
Confort lux Decomandat Nemobilat 1 Balcon / Terasă / Logie Aer condiționat Centrală imobil Încălzire prin pardoseală Bine întreținut (Bună)

Detalii apartament

ID anunț: X7QH201PS Copiat! 275289444 Copiat!
Actualizat în: 16 Martie 2026
Suprafață utilă totală: 53.47 mp
Nr. bucătării: 1
Nr. băi: 1
Structură rezistență: Beton
Tip imobil: Bloc de apartamente
Regim înălțime: P+11E

Utilități

Destinație
Rezidențial
Pereți
Vopsea lavabilă
Izolații termice
Exterior
Ferestre cu geam termopan
PVC Lemn
Contorizare
Apometre Contor căldură
Diverse
Senzor de fum
Alte spații utile
Terasă
Facilități imobil
Videointerfon Interfon Lift
Utilități
Curent Apă Canalizare
Internet
Fibră optică Cablu
Servicii imobil
Administrare Menaj Supraveghere video
Amenajare străzi
Iluminat stradal Mijloace de transport în comun Asfaltate

Certificat energetic:

Clasa energetică: A

Puncte de interes

Mijloace transport
tram-station
Aprodex
Stații tramvai aprox. 259 m
bus-station
Statia Sebastian, linia 173, 385, N121, N122, 226, 122, 47
Stații autobuz aprox. 293 m
metro-station
Orizont (M5)
Stații metrou aprox. 686 m
train-station
Fosta Gara Regala Cotroceni (en)
Stații tren aprox. 1257 m
Școală
kindergarten
GRĂDINIȚA DE COPII NR. 75
Gradinițe aprox. 277 m
school
aa
Școli aprox. 317 m
kindergarten
Gradinita nr. 75
Gradinițe aprox. 341 m
university
Universitatea Nationala de Aparare "Carol I"
Universități aprox. 710 m
Recreere
park
Parc
Parcuri aprox. 146 m
supermarket
Lidl
Supermarket aprox. 192 m
sports-ground
Teren sportiv
Terenuri sport aprox. 532 m
public-square
Jose Rizal Square (en)
Piețe publice aprox. 664 m

Detalii despre preț și costuri

Prețul pe piață

Preț cerut: 154.617 €

Preț min. zonă 85.500 €
Preț max. zonă 245.000 €

80% dintre proprietățile similare ca zonă și nr. camere au prețul cerut mai mic. mai multe...

Bine de știut: prețul unei proprietăți este influențat și de alte caracteristici, cum ar fi: vechime, localizare, vecinătăți, suprafață, compartimentare, amenajări, dotări, etc. mai puțin...

Costuri cu achiziția

Fără credit
9.324 RON
Credit ipotecar
11.231 RON
Noua casă
1.093 RON+ taxe notariale

i

Costuri adiționale mai puțin știute la achiziție: taxe notariale, comisioane etc.

Proprietăți similare

Apartament cu 2 camere decomandat în Panduri
161.200 € + TVA
București, Panduri
2 camere
52,53 mp
Etaj 1 / 11
Apartament cu 2 camere decomandat în Panduri
154.617 € + TVA
București, Panduri
2 camere
58,47 mp
Etaj 7 / 11
Apartament cu 3 camere semidecomandat, mobilat în Panduri
165.000 €
București, Panduri
3 camere
62,51 mp
Etaj 8 / 8

Detalii de contact

Abonează-te la newsletter să fii primul care primește cele mai noi recomandări de proprietăți și sfaturi de la experți.

CONTACT

Creează alertă

Salvează căutarea ca să primești pe email ultimele anunțuri publicate

Apartamente noi cu 2 camere de vânzare în zona Panduri, Sector 5