12

Apartament 2 Camere,Rahova,bl.1986,reabilitat,et.2/4,DECOMANDAT,Liber

112.200 €

Rahova, București

Nr. cam.:
2
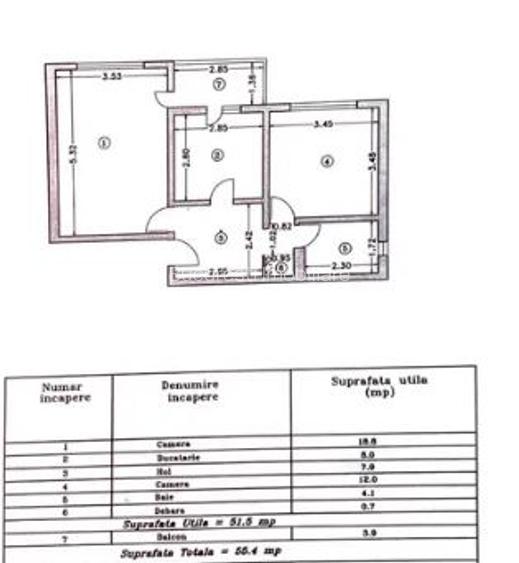
Sup. utilă:
50 mp
Etaj:
2 / 4
An constr.:
1986 (Finalizată)
  • • Locație exactă

Descriere apartament

Bucuresti Imobiliare va vofera spre vanzare un apartament de doua camere in zona Rahova,bl.1986,reabilitat,et.2/4,Amenajat,balcon inchis,DECOMANDAT,Liber
Citește mai mult Citește mai puțin
Confort 1 Decomandat 1 Balcon / Terasă / Logie Calorifere Renovat

Detalii apartament

ID anunț: XFOE001FR Copiat! 269033463 Copiat!
Actualizat în: 18 Februarie 2026
Suprafață utilă totală: 55 mp
Suprafață construită: 60 mp
Nr. bucătării: 1
Nr. băi: 1
Structură rezistență: Beton
Tip imobil: Bloc de apartamente
Tip tranzacție: De vânzare prin agent
Regim înălțime: P+4E
Modalitate de plată: Cash sau Credit

Utilități

Destinație
Rezidențial
Pereți
Faianță Vopsea lavabilă
Podele
Gresie Parchet
Ușă intrare
Metal
Uși interior
Lemn PVC
Izolații termice
Exterior Interior
Ferestre cu geam termopan
PVC
Contorizare
Apometre
Facilități imobil
Interfon
Utilități
Curent Apă Canalizare Gaze
Internet
Cablu
Amenajare străzi
Asfaltate Betonate Iluminat stradal Mijloace de transport în comun
Comision
STANDARD

Vecinătăți:

Calea Rahovei
Calea Ferentari
Soseaua Salaj

Puncte de interes

Mijloace transport
bus-station
Statia Calea Ferentari / Calea Rahovei / Ferentari / Sebastian, linia 173, 220, N114, 8, 23, 32
Stații autobuz aprox. 23 m
tram-station
Petre Ispirescu
Stații tramvai aprox. 75 m
bus-station
Statia Calea Ferentari / Calea Rahovei / Ferentari / Sebastian, linia 173, 220, N114,8, 23, 32
Stații autobuz aprox. 346 m
tram-station
Calea Ferentari
Stații tramvai aprox. 390 m
Școală
school
Liceul Dimitrie Bolintineanu
Școli aprox. 215 m
school
Liceul Teoretic Dimitrie Bolintineanu
Școli aprox. 217 m
kindergarten
GRĂDINIȚA DE COPII NR. 178
Gradinițe aprox. 265 m
university
Academia Tehnica Militara
Universități aprox. 1504 m
Recreere
supermarket
Profi
Supermarket aprox. 150 m
park
Parc
Parcuri aprox. 210 m
sports-ground
Teren sportiv
Terenuri sport aprox. 1161 m
public-square
P-ta Chirigiu
Piețe publice aprox. 1206 m

Istoricul prețurilor

Acces la informații premium după autentificare
Login Gratuit

Detalii despre preț și costuri

Prețul pe piață

Preț cerut: 112.200 €

Preț min. zonă
Preț max. zonă

96% dintre proprietățile similare ca zonă și nr. camere au prețul cerut mai mic. mai multe...

Bine de știut: prețul unei proprietăți este influențat și de alte caracteristici, cum ar fi: vechime, localizare, vecinătăți, suprafață, compartimentare, amenajări, dotări, etc. mai puțin...

Acces la informații premium după autentificare
Login Gratuit

Costuri cu achiziția

Fără credit
Credit ipotecar
Noua casă

i

Costuri adiționale mai puțin știute la achiziție: taxe notariale, comisioane etc.

Acces la informații premium după autentificare
Login Gratuit

Proprietăți similare

Apartament cu 3 camere decomandat, mobilat în Rahova
115.000 €
București, Rahova
3 camere
70 mp
Etaj 10
Apartament cu 3 camere decomandat, mobilat în Rahova
104.000 €
București, Rahova
3 camere
70 mp
Etaj 8
Apartament cu 2 camere decomandat în Rahova
106.964 €
București, Rahova
2 camere
52,03 mp
Etaj 2 / 10

Detalii de contact

Bucuresti Imobiliare

MONICA

3.88(24 review-uri)

Bucuresti Imobiliare
PRO

Abonează-te la newsletter să fii primul care primește cele mai noi recomandări de proprietăți și sfaturi de la experți.

CONTACT

Creează alertă

Salvează căutarea ca să primești pe email ultimele anunțuri publicate

Apartamente cu 2 camere de vânzare în zona Rahova, Sector 5