3 Camere-Bloc anvelopat -Petre Ispirescu/Salaj

109.000 €

Rahova, București

Nr. cam.:
3
Sup. utilă:
61 mp
Etaj:
3 / 10
An constr.:
1978 (Finalizată)
  • • Locație aproximativă

Descriere apartament

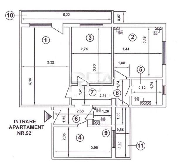
REA Imobiliare va propune spre vanzare un apartament cu 3 camere decomandat situat la etajul 3 din 10 intr-un bloc reabilitat construit in anul 1978 la doar cativa pasi de Liceul Teoretic Dimitrie Bolintineanu, Policlinica Rahova si Statia de trnavai Petre Ispirescu. Inclazirea se realizeaza prin termoficare si calorifere. Compartimentare eficienta-decomandat- suprafata utila: 61 mp fara balcoane. 2 balcoane, Cel mare de 5,41 mp si cel mic de 3,01 mp. Instalatia electrica este NOUA. Geam la baie. Apartament curat si bine intretinut. Posibilitate de montare centrala Localizare eficienta: Mijloace de transport in comun: Statia de tranvai Petre Ispirescu la 450m, Statia Ratb Sebastian la 700m Liceul Teoretic Bolintineanu la 550m, Kauflad la 650m. In zona sunt toate facilitatiile: Scoli, magazine, restaurante, zone verzi, mijloace de transport in comun Pentru mai multe detalii dar si pentru a programa o vizionare ne puteti contacta specificand codul de identificare P10058
Citește mai mult Citește mai puțin
Confort 1 Decomandat 2 Balcoane / Terase / Logii Calorifere Termoficare Bine întreținut (Bună)

Detalii apartament

ID anunț: XDKS108GQ Copiat! 274770418 Copiat!
Actualizat în: 17 Aprilie 2026
Nr. bucătării: 1
Nr. băi: 1
Structură rezistență: Beton
Tip imobil: Bloc de apartamente
Tip tranzacție: De vânzare prin agent
Regim înălțime: P+10E
Modalitate de plată: Cash sau Credit

Utilități

Destinație
Rezidențial
Pereți
Vopsea lavabilă Var
Podele
Parchet Gresie
Ușă intrare
Metal
Uși interior
Lemn
Ferestre cu geam termopan
PVC PVC
Bucătărie
Mobilată Utilată
Facilități imobil
Interfon Lift
Utilități
Curent Apă Canalizare Gaze CATV Telefon
Internet
Fibră optică
Servicii imobil
Supraveghere video
Amenajare străzi
Asfaltate Iluminat stradal
Comision
Standard

Puncte de interes

Mijloace transport
bus-station
Statia Calea Ferentarilor, linia 220, 117
Stații autobuz aprox. 309 m
bus-station
Statia Calea Ferentari / Calea Rahovei / Ferentari / Sebastian, linia 173, 220, N114, 8, 23, 32
Stații autobuz aprox. 363 m
tram-station
Petre Ispirescu
Stații tramvai aprox. 366 m
metro-station
Metrorex. Stația Eroii Revoluției (M2)(1986)
Stații metrou aprox. 1965 m
Școală
school
Liceul Teoretic Dimitrie Bolintineanu
Școli aprox. 263 m
school
Liceul Dimitrie Bolintineanu
Școli aprox. 283 m
kindergarten
GRĂDINIȚA DE COPII NR. 178
Gradinițe aprox. 567 m
university
Academia Tehnica Militara
Universități aprox. 1623 m
Recreere
park
Parc
Parcuri aprox. 100 m
supermarket
Complex comercial Malcoci
Supermarket aprox. 212 m
sports-ground
Teren sportiv
Terenuri sport aprox. 956 m
public-square
P-ta Chirigiu
Piețe publice aprox. 1372 m

Istoricul prețurilor

Acces la informații premium după autentificare
Login Gratuit

Detalii despre preț și costuri

Prețul pe piață

Preț cerut: 109.000 €

Preț min. zonă
Preț max. zonă

68% dintre proprietățile similare ca zonă și nr. camere au prețul cerut mai mic. mai multe...

Bine de știut: prețul unei proprietăți este influențat și de alte caracteristici, cum ar fi: vechime, localizare, vecinătăți, suprafață, compartimentare, amenajări, dotări, etc. mai puțin...

Acces la informații premium după autentificare
Login Gratuit

Costuri cu achiziția

Fără credit
Credit ipotecar
Noua casă

i

Costuri adiționale mai puțin știute la achiziție: taxe notariale, comisioane etc.

Acces la informații premium după autentificare
Login Gratuit

Proprietăți similare

Apartament cu 3 camere decomandat, mobilat în Rahova
104.000 €
București, Rahova
3 camere
70 mp
Etaj 8
Apartament cu 2 camere decomandat în Rahova
100.000 €
București, Rahova
2 camere
57,4 mp
Demisol / 4
Apartament cu 3 camere semidecomandat, mobilat în Rahova
107.000 €
București, Rahova
3 camere
68,61 mp
Etaj 8 / 10

Detalii de contact

R.E.A. Imobiliare

Cristian Nistor Broker

R.E.A. Imobiliare
PRO

Abonează-te la newsletter să fii primul care primește cele mai noi recomandări de proprietăți și sfaturi de la experți.

CONTACT

Creează alertă

Salvează căutarea ca să primești pe email ultimele anunțuri publicate

Apartamente cu 3 camere de vânzare în zona Rahova, Sector 5