2

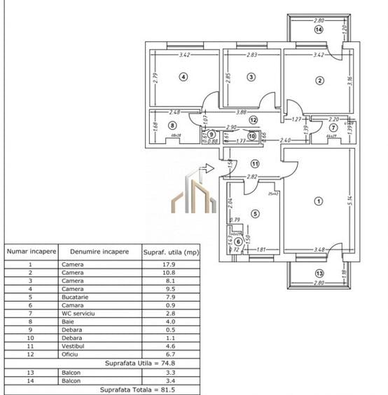
Apartament cu 4 camere | 81,5 mp | 2 bai | 2 Balcoane | Dunavat 14 | De Renovat

93.500 €

Rahova, București

Nr. cam.:
4
Sup. utilă:
74,8 mp
Etaj:
4 / 4
An constr.:
1983 (Finalizată)
  • • Comision 0%
  • • Exclusivitate
  • • Locație exactă

Descriere apartament

Va prezentam spre vanzare un apartament de 4 camere, decomandat, situat in zona Rahova, cu acces facil la magazine, restaurante, banci, scoli si mijloace de transport in comun. Proprietatea este amplasata la etajul 4 din 4 al unui imobil solid, construit in anul 1983. Apartamentul reprezinta o alegere potrivita pentru un cuplu sau pentru o familie aflata in cautarea unui nou camin, oferind un compartimentaj practic si generos. Locuinta dispune de doua bai, dintre care una este prevazuta cu cada. Bucataria este poziționată strategic, fix la intrarea in apartament. Apartamentul necesita renovare si finisaje interioare, oferind posibilitatea viitorilor proprietari de a-l amenaja dupa propriul gust. Ambele balcoane sunt închise cu tâmplărie PVC. Beneficiaza de vedere mixta si este situat pe o strada adiacenta, ferita de zgomotul bulevardului principal. Se poate obține loc de parcare ADP, iar in zona se gasesc constant locuri disponibile, aspect ce poate fi verificat la fata locului. Acestea sunt doar cateva dintre avantajele acestei proprietati. Va invitam la vizionare pentru a descoperi intregul sau potential! Pentru detalii suplimentare, nu ezitati sa ne contactati.
Citește mai mult Citește mai puțin
Confort 1 Decomandat Nemobilat 2 Balcoane / Terase / Logii Aer condiționat Termoficare Necesită renovare

Detalii apartament

ID anunț: XGCE0000O Copiat! 275436169 Copiat!
Actualizat în: 30 Mai 2026
Suprafață construită: 87 mp
Nr. bucătării: 1
Nr. băi: 2
Structură rezistență: data_properties.building_structure.BCA
Tip imobil: Bloc de apartamente
Tip tranzacție: De vânzare prin agent
Regim înălțime: P+4E
Modalitate de plată: Cash sau Credit

Utilități

Izolații termice
Exterior
Ferestre cu geam termopan
PVC
Utilități
Curent Apă Canalizare Gaze CATV
Internet
Fibră optică
Amenajare străzi
Asfaltate Betonate Iluminat stradal Mijloace de transport în comun
Comision
0%

Puncte de interes

Mijloace transport
bus-station
Statia Calea Ferentari / Calea Rahovei / Ferentari / Sebastian, linia 173, 220, N114, 8, 23, 32
Stații autobuz aprox. 249 m
tram-station
Petre Ispirescu
Stații tramvai aprox. 269 m
bus-station
Statia Calea Ferentarilor, linia 220, 117
Stații autobuz aprox. 325 m
metro-station
Metrorex. Stația Eroii Revoluției (M2)(1986)
Stații metrou aprox. 1984 m
Școală
school
Liceul Teoretic Dimitrie Bolintineanu
Școli aprox. 237 m
school
Liceul Dimitrie Bolintineanu
Școli aprox. 253 m
kindergarten
GRĂDINIȚA DE COPII NR. 178
Gradinițe aprox. 482 m
university
Academia Tehnica Militara
Universități aprox. 1512 m
Recreere
supermarket
Complex comercial Malcoci
Supermarket aprox. 173 m
park
Parc
Parcuri aprox. 217 m
sports-ground
Teren sportiv
Terenuri sport aprox. 965 m
public-square
P-ta Chirigiu
Piețe publice aprox. 1248 m

Istoricul prețurilor

Acces la informații premium după autentificare
Login Gratuit

Detalii despre preț și costuri

Prețul pe piață

Preț cerut: 93.500 €

Preț min. zonă
Preț max. zonă

71% dintre proprietățile similare ca zonă și nr. camere au prețul cerut mai mare. mai multe...

Bine de știut: prețul unei proprietăți este influențat și de alte caracteristici, cum ar fi: vechime, localizare, vecinătăți, suprafață, compartimentare, amenajări, dotări, etc. mai puțin...

Acces la informații premium după autentificare
Login Gratuit

Costuri cu achiziția

Fără credit
Credit ipotecar
Noua casă

i

Costuri adiționale mai puțin știute la achiziție: taxe notariale, comisioane etc.

Acces la informații premium după autentificare
Login Gratuit

Proprietăți similare

Apartament cu 2 camere semidecomandat în Rahova
93.654 €
București, Rahova
2 camere
46,39 mp
Etaj 8 / 10
Apartament cu 2 camere decomandat în Rahova
100.914 €
București, Rahova
2 camere
49,38 mp
Etaj 4 / 10
Apartament cu 2 camere semidecomandat în Rahova
93.654 €
București, Rahova
2 camere
46,39 mp
Etaj 10 / 10

Detalii de contact

Zeca Estates

Daniel Zeca BrokerOwner

Zeca Estates
PRO

Abonează-te la newsletter să fii primul care primește cele mai noi recomandări de proprietăți și sfaturi de la experți.

CONTACT

Creează alertă

Salvează căutarea ca să primești pe email ultimele anunțuri publicate

Apartamente cu 4+ camere de vânzare în zona Rahova, Sector 5