Apartament 2 camere renovat integral | Salaj - Rahova | Bloc nou

125.000 €

Sălaj, București

Nr. cam.:
2
Sup. utilă:
48 mp
Etaj:
2 / 4
An constr.:
2024
  • • Exclusivitate
  • • Locație aproximativă
  • • Vizionare prin apel video

Descriere apartament

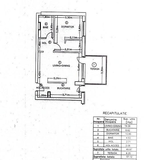
SI Development Group va prezinta spre vanzare un apartament de 2 camere, complet mobilat si utilat, situat la etajul 2 din 4 in imobil fara lift. Localizare: Soseaua Salaj, sector 5. Dotari apartament: → Mobilat si utilat complet, totul nou → Centrala termica proprie si incalzire prin pardoseala Suprafete: → Suprafata utila interioara: 48.87 mp → Terasa deschisa: 8.25 mp → Suprafata totala: 57.12 mp Compartimentare (conform releveu): → Hol acces – 2.08 mp → Hol – 2.71 mp → Living + dining – 19.08 mp → Bucatarie separata – 6.62 mp → Dormitor – 13.85 mp → Baie – 4.53 mp → Terasa – 8.25 mp Conditii financiare: → Comision agentie: 3% din pretul de vanzare. → Disponibilitate: Liber pentru vizionari, incepand cu 15 februarie 2026. Pentru detalii suplimentare, imagini sau programarea unei vizionari, va stam la dispozitie telefonic sau pe WhatsApp.
Citește mai mult Citește mai puțin
Confort 1 Semidecomandat Mobilat 1 Balcon / Terasă / Logie Aer condiționat Centrală proprie Bine întreținut (Bună)

Detalii apartament

ID anunț: XACM00234 Copiat! 272796902 Copiat!
Actualizat în: 02 Februarie 2026
Suprafață utilă totală: 57 mp
Nr. bucătării: 1
Nr. băi: 1
Structură rezistență: Beton
Tip imobil: Bloc de apartamente
Regim înălțime: P+4E

Utilități

Destinație
Rezidențial Birouri De vacanță
Pereți
Faianță Vopsea lavabilă
Podele
Gresie Parchet
Ușă intrare
Metal
Uși interior
Lemn
Izolații termice
Exterior
Contorizare
Contor gaz Apometre
Bucătărie
Mobilată Utilată
Electrocasnice
Mașină de spălat Frigider Aragaz Hotă TV
Diverse
Senzor de fum
Facilități imobil
Interfon
Utilități
Curent Apă Canalizare Gaze
Internet
Cablu Fibră optică Wireless
Servicii imobil
Administrare Supraveghere video
Amenajare străzi
Asfaltate Iluminat stradal Mijloace de transport în comun
Comision
3% din pretul de vanzare, achitat de cumparator.

Alte detalii despre preț:

Proprietar persoana juridica.

Puncte de interes

Mijloace transport
bus-station
Statia Amurgului / Soseaua Salaj, linia 139, 220, N121, 117, N124
Stații autobuz aprox. 205 m
bus-station
Statia Caporal Preda / Muntii Carpati, linia 139, 220, N121, 227, N124
Stații autobuz aprox. 351 m
tram-station
Piata Rahova
Stații tramvai aprox. 722 m
tram-station
Statie Piata Rahovei tramvai 32
Stații tramvai aprox. 727 m
Școală
school
Scoala nr. 141
Școli aprox. 383 m
school
Scoala Generala 141
Școli aprox. 400 m
kindergarten
Gradinita de copii nr. 270
Gradinițe aprox. 650 m
kindergarten
GRĂDINIȚA DE COPII NR. 244
Gradinițe aprox. 674 m
Recreere
supermarket
Complex Comercial Salaj
Supermarket aprox. 400 m
cafe
Concordia Paradise
Cafenea aprox. 401 m
park
Parcul Humulesti
Parcuri aprox. 571 m
sports-ground
Teren sportiv
Terenuri sport aprox. 741 m

Detalii despre preț și costuri

Prețul pe piață

Preț cerut: 125.000 €

Preț min. zonă 36.000 €
Preț max. zonă 125.000 €

100% dintre proprietățile similare ca zonă și nr. camere au prețul cerut mai mic. mai multe...

Bine de știut: prețul unei proprietăți este influențat și de alte caracteristici, cum ar fi: vechime, localizare, vecinătăți, suprafață, compartimentare, amenajări, dotări, etc. mai puțin...

Costuri cu achiziția

Fără credit
7.193 RON
Credit ipotecar
8.836 RON
Noua casă
777 RON+ taxe notariale

i

Costuri adiționale mai puțin știute la achiziție: taxe notariale, comisioane etc.

Proprietăți recomandate

Detalii de contact

SI Development Group

Claudiu B Consilier Vanzari

4.71(8 review-uri)

SI Development Group
PRO

Abonează-te la newsletter să fii primul care primește cele mai noi recomandări de proprietăți și sfaturi de la experți.

CONTACT

Creează alertă

Salvează căutarea ca să primești pe email ultimele anunțuri publicate

Apartamente noi cu 2 camere de vânzare în zona Sălaj, Sector 5