ID intern: 366649
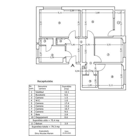
Va propunem spre vanzare un apartament cu 4 camere, decomandat, confort 1, situat in zona Rahova, reper Aleea Costinesti, disponibil la etajul 3 din 4, cu o suprafata totala de 80 mp, 2 bai, 1 balcon, 3 dormitoare, living, bucatarie, hol, 2 debarale si o boxa la subsol.
Este un bloc micuț cu 2 scari si vecini linistiti, unde se mentine curatenia si linisitea. Sunt doar 2 apartamente pe etaj ( cu 3 si 4 camere ).
Este teava de gaze separata in bloc pentru centrala proprie daca se doreste.
Necesita unele imbunatatiri. Imobilul este situat la 3 minute de statia tramvaiului 32, care duce direct la Piata Unirii, statie STB, scoli, gradinita.
COMISION 0% CUMPARATOR.
Colaboram si cu alti agenti imobiliari, oferim si comision de colaborare.
OFERTA IN REPREZENTARE EXCLUSIVA IN CADRUL AGENTIEI CR IMOBILIARE.
Acordam indrumare in vederea acordarii unui credit bancar (BRD, FIRST BANK, ALPHA BANK, PATRIA BANK, BANCA TRANSILVANIA)
Proprietate cu prețul cerut în afara intervalului mai multe...
Posibile explicații pentru faptul că prețul proprietății este sub cel minim: imobil cu risc seismic, imobil cu probleme structurale, imobil demolabil, poziționare în altă zonă
Bine de știut: prețul unei proprietăți este influențat și de alte caracteristici, cum ar fi: vechime, localizare, vecinătăți, suprafață, compartimentare, amenajări, dotări, etc.
Costuri cu achiziția
Fără credit
5.710 RON
Credit ipotecar
7.187 RON
Noua casă
606 RON+ taxe notariale
i
Costuri adiționale mai puțin știute la achiziție: taxe notariale, comisioane etc.
Sediul central - Timișoara
Bulevardul Victor Babeș nr. 2, 300230, Timișoara, România
Tel: +40.374.40.44.98 / Fax: +40.256.401.179
Email: suport@imobiliare.ro
Luni - Vineri 08:00 - 20:00
Punct de lucru - București: Iride Business Park, Bld. Dimitrie
Pompeiu 9-9A, Clădirea B2B,
020335, Sector 2, București, România
CONTACT
Sediul central - Timișoara
Bulevardul Victor Babeș nr. 2, 300230, Timișoara, România
Tel: +40.374.40.44.98 / Fax: +40.256.401.179
Email: suport@imobiliare.ro
Luni - Vineri 08:00 - 20:00
Punct de lucru - București: Iride Business Park, Bld. Dimitrie
Pompeiu 9-9A, Clădirea B2B,
020335, Sector 2, București, România
Cabinet stomatologic si laborator, bloc C2 , ap. 2
aprox.
1456 m
Synevo Sebastian
aprox.
1717 m
Clinica Medicala HIPOCRAT 2000
aprox.
1741 m
Chicken Deea shaorma
aprox.
260 m
Restaurant terasa
aprox.
294 m
Maverick
aprox.
420 m
Presto Pizza Rahova
aprox.
484 m
DelArte Pizza & Grill
aprox.
667 m
Restaurant Cuibul Randunelelor
aprox.
741 m
Cuibul randunelelor
aprox.
760 m
Restaurant Casa Edena
aprox.
1065 m
Tony Li
aprox.
1072 m
Wu Xing Livrare
aprox.
1185 m
Wu Xing Salaj
aprox.
1192 m
Panorama
aprox.
1215 m
Coferatia GEORGI
aprox.
1249 m
La Bruno
aprox.
1271 m
Restaurant Casa Ionescu
aprox.
1415 m
Mustaciosul Senatorbet
aprox.
463 m
The Roof
aprox.
1921 m
B V M Sala Ps @ xbox
aprox.
470 m
Concordia Paradise
aprox.
950 m
Victor Pub
aprox.
1855 m
BRD
aprox.
187 m
Credit Europe Bank
aprox.
193 m
CEC bank
aprox.
204 m
BRD
aprox.
204 m
otp bank
aprox.
204 m
Credit Europe bank
aprox.
204 m
Piraeus Bank
aprox.
216 m
Banca Transilvania - Ag. Rahova
aprox.
231 m
Piraeus bank
aprox.
239 m
Banca Transilvania
aprox.
239 m
Bancpost
aprox.
269 m
Raiffeisen Bank
aprox.
269 m
BCR
aprox.
293 m
Banca BCR
aprox.
302 m
Bancpost
aprox.
302 m
Zona Rahova este traversată de traseele mai multor mijloace de transport în comun. Printre acestea amintim tramvaiul 32 care are capătul la Autogara Internațională Rahova, parcurge Șoseaua Alexandriei și Calea Rahovei și oferă o legătură directă cu zona Piața Unirii din centrul orașului. Autobuzul 220 este o bună opțiune de transport pentru a ajunge în cartierul vecin, Ferentari, iar autobuzul 139 te va duce până în apropierea Campusului Studențesc Leu, în zona Politehnică. Un dezavantaj îl poate reprezenta faptul că în acest cartier nu există nicio stație de metrou care să-ți ofere o legătură rapidă cu alte părți ale orașului. Consultă harta și vezi unde sunt amplasate stațiile mijloacelor de transport în comun.
În zona Rahova există numeroase unități de învățământ, atât de stat, cât și private. Printre acestea amintim Liceul Teoretic "Dimitrie Bolintineanu", Liceul Teoretic "Ștefan Odobleja", inaugurat la sfârșitul anului 2002, și centrul educațional privat Montessori, care cuprinde atât o grădiniță, cât și un afterschool. Găsești pe hartă și alte instituții de învățământ aflate în zona Rahova și în vecinătatea acesteia.
Dacă te vei muta în zona Rahova, vei avea la dispoziție numeroase magazine, centre comerciale, piețe și chiar și un mall unde îți vei putea face cumpărăturile. Printre acestea amintim hipermarketul Cora Alexandria aflat lângă Autogara Internațională Rahova, centrul comercial Vulcan Value Centre și mall-ul Liberty Shopping Center, ambele aflate în zona Trafic Greu. Piața Pucheni, unul dintre cele mai mari angro-uri de legume și fructe din București, se află și ea tot în zona Rahova. Vei avea la dispoziție, totodată, Piața Rahova și complexul comercial Năsăud Shopping Center. Lângă Depoul Alexandria găsești o galerie comercială ce include un hipermarket Cora, iar pe Strada Teiuș un magazin Lidl. Consultă harta pentru a afla care va fi cel mai apropiat magazin de viitoarea ta locuință.
Dacă ai mașină, atunci trebuie să știi că în Rahova numărul locurilor de parcare este limitat, iar principalele artere de circulație sunt aglomerate în special la orele de vârf. Îți recomandăm să nu pierzi din vedere posibilitatea închirierii unui loc de parcare de la Serviciul Parcaje Scop Reședință din cadrul ADP Sector 5. Consultă harta pentru a afla unde sunt poziționate principalele parcări din cartier.
În zona Rahova spațiile verzi sunt puține și de mici dimensiuni. Parcul Sebastian este cel mai mare din cartier. Acesta este încadrat între străzile Mihail Sebastian, Făt Frumos, Moțoc și Dumbrava Nouă și cuprinde locuri de joacă pentru copii și terenuri de sport la care poți avea acces gratuit. Tot aici se organizează periodic diverse evenimente sau concerte. Dacă te vei muta în apropierea Șoselei Sălaj, care delimitează cartierele Rahova și Ferentari, vei avea la doi pași de casă Parcul Pecineaga. Mall-ul Liberty Shopping Center, aflat în zona Trafic Greu, oferă mai multe opțiuni de petrecere a timpului liber indoor. Aici vei găsi, printre altele, câteva săli de sport și un cinematograf. Ajungi foarte repede de aici și în centrul orașului unde ai numeroase alte opțiuni de petrecere a timpului liber. Află de pe hartă ce alte puncte de interes există în zona Rahova și în vecinătatea sa.
Dacă te vei muta în Rahova, vei avea la dispoziție mai multe clinici și cabinete private la care vei putea apela în caz de nevoie. Cu toate acestea, în cartier nu există niciun spital de stat de mari dimensiuni. Poți să ajungi, însă, destul de rapid la Institutul de Pneumoftiziologie "Matei Nasta" sau la Spitalul Clinic "Prof. Dr. Theodor Burghele". Printre unitățile medicale din zonă amintim clinica AIS, Policlinica Rahova și Clinica medicală Lil Med. Vezi pe hartă unde sunt localizate.
Ai la dispoziție mai multe localuri pe Șoseaua Alexandriei, iar pe Strada Progresului în cadrul centrului comercial Vulcan Value Centre găsești câteva fast food-uri. Alte câteva restaurante de tip fast food pot fi găsite și în incinta mall-ului Liberty Center. Cartierul Rahova se extinde până aproape de Unirii, motiv pentru care, în funcție de zona în care locuiești, poți să ajungi chiar și în câteva minute cu mașina până la restaurantele și cafenelele din Centrul Vechi. Destul de repede poți să ajungi și la AFI Cotroceni, dacă vrei la mall nu doar pentru o sesiune de shopping, ci și pentru a lua masa în oraș. Food court-ul de aici dispune de numeroase opțiuni pentru toate gusturile. Consultă harta și află ce restaurante și terase găsești în apropierea casei tale.
Găsești cele mai multe bancomate pe Șoseaua Alexandriei și pe Calea Rahovei. Consultă harta pentru a vedea poziționarea lor exactă.
Înainte să pleci...
Ești sigur că ai văzut și aceste proprietăți?
96.000 €
București, Sebastian
2 camere
49 mp
Etaj 9 / 9
96.000 €
București, Sebastian
2 camere
49 mp
Etaj 9
92.000 €
București, Sebastian
3 camere
74 mp
Etaj 8
Creează alertă
Salvează căutarea ca să primești pe email ultimele anunțuri publicate
Apartamente cu 4+ camere de vânzare în zona Sebastian, Sector 5
Cere detalii prin email
*
*
*
*
Detaliile tale de contact vor fi partajate cu Cr Imobiliare
Asigurare de viață/lună Costul este variabil. În funcție de banca aleasă, procentul variază între 0.0259% și 0.035% din soldul creditului.
Costuri cu achiziția7.187 RON
Comision agenție Întreabă agenţia
Onorariu notarial5.011 RON
Taxă întabulare OCPI699 RON
Autentificare contract credit1.477 RON
Preț de achiziție466.302 RON
Preț locuință466.302 RON
TVA 0%Inclus în prețul cerut
Preț de achiziție466.302 RON
Preț locuință466.302 RON
TVA 0%
Inclus în prețul cerut
Avans minim69.945 RON
Credit pe 30 de ani396.357 RON
Cost achitat în prima lună
Taxa evaluare imobil(până la)
575 RON
Rata lunară (variabilă)2.785 RON
Depozit colateral8.355 RON
Comision de garantare FNGCIMM39 RON
Asigurare anuală imobil466 RON
Poliță PAD130 RON
Tarif arhivă electronică102 RON
Costuri adiționale606 RON + taxe notariale
Asigurare viață și complexă (opțională)Costul este variabil. În funcție de banca aleasă, procentul variază între 0.0259% și 0.035% din soldul creditului
Onorariu notarialconform tarif notarial
Taxă întabulare OCPI606 RON
i
Toate valorile de mai sus sunt estimative și nu reprezintă în mod obligatoriu costurile exacte pe care le veți primi de la companiile/instituțiile prin care veți încheia tranzacția.