Tudor Vladimirescu-Strada Sergent Gheorghe Latea-Apartament 3 camere

101.000 €

Tudor Vladimirescu, București

Nr. cam.:
3
Sup. utilă:
68 mp
Etaj:
8 / 8
An constr.:
1984
  • • Locație exactă

Descriere apartament

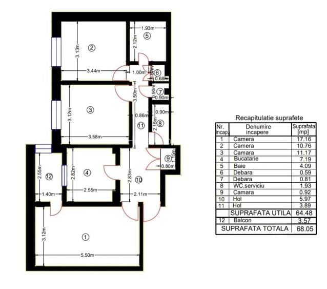
Agentia HOPE va propune spre vanzare un apartament de 3 camere decomandat situat la etajul 8 intr-un imobil de 8 nivele construit in anul 1984 ,reabilitat termic. Apartamentul dispune de termopan si necesita renovare. In apropiere avem scoala, gradinita, centre comerciale si statie Stb.Pentru serviciile de intermediere imobiliara agentia Hope percepe un comision de 2 % TVA inclus din pretul final al vanzarii. COD 2511
Citește mai mult Citește mai puțin
Confort 1 Semidecomandat 1 Balcon / Terasă / Logie Aer condiționat Calorifere Termoficare Necesită renovare

Detalii apartament

ID anunț: XBUK00DFC Copiat! 275345094 Copiat!
Actualizat în: 24 Martie 2026
Suprafață construită: 75 mp
Nr. bucătării: 1
Nr. băi: 2
Structură rezistență: Beton
Tip imobil: Bloc de apartamente
Regim înălțime: P+8E

Utilități

Destinație
Rezidențial
Pereți
Faianță Vopsea lavabilă
Podele
Gresie Parchet
Ușă intrare
Metal
Uși interior
Panel
Izolații termice
Exterior
Ferestre cu geam termopan
PVC
Contorizare
Contor gaz Apometre
Diverse
Scară interioară
Facilități imobil
Lift Interfon
Utilități
Gaze Curent Canalizare Apă
Internet
Cablu
Amenajare străzi
Betonate Asfaltate Iluminat stradal Mijloace de transport în comun
Comision
2%

Certificat energetic:

Clasa energetică: B

Vicii:

nu are vicii!

Puncte de interes

Mijloace transport
bus-station
RATB Ghencea, linia 126, 173, 185, 302, 385, 221, N122, 41, 47
Stații autobuz aprox. 219 m
tram-station
Ghencea
Stații tramvai aprox. 242 m
trolleybus-station
Statia RATB Favorit, linia troleibuz 69,71 si linia autobuz 126
Stații troleibuz aprox. 712 m
metro-station
Stația de metrou "Tudor Vladimirescu"
Stații metrou aprox. 794 m
Școală
school
Scoala Nr. 311
Școli aprox. 133 m
school
Scoala Nr. 59 Dimitrie Sturdza
Școli aprox. 141 m
kindergarten
Gradinita de copii nr. 111
Gradinițe aprox. 696 m
kindergarten
Grădiniță copii nr 87 Spiridusii
Gradinițe aprox. 1059 m
Recreere
park
Parc
Parcuri aprox. 122 m
supermarket
Profi
Supermarket aprox. 245 m
restaurant
Hanul Drumetului
Restaurant aprox. 312 m
sports-ground
Teren sportiv
Terenuri sport aprox. 474 m

Detalii despre preț și costuri

Prețul pe piață

Preț cerut: 101.000 €

Preț min. zonă 84.000 €
Preț max. zonă 277.000 €

82% dintre proprietățile similare ca zonă și nr. camere au prețul cerut mai mare. mai multe...

Bine de știut: prețul unei proprietăți este influențat și de alte caracteristici, cum ar fi: vechime, localizare, vecinătăți, suprafață, compartimentare, amenajări, dotări, etc. mai puțin...

Costuri cu achiziția

Fără credit
16.452 RON
Credit ipotecar
17.993 RON
Noua casă
655 RON+ taxe notariale

i

Costuri adiționale mai puțin știute la achiziție: taxe notariale, comisioane etc.

Proprietăți similare

Apartament cu 3 camere decomandat în Tudor Vladimirescu
101.000 €
București, Tudor Vladimirescu
3 camere
68 mp
Etaj 8
Apartament cu 3 camere decomandat, mobilat în Sebastian
109.900 €
București, Sebastian
3 camere
70 mp
Etaj 6
Apartament cu 2 camere semidecomandat, mobilat în Rahova
110.000 €
București, Rahova
2 camere
58 mp
Etaj 3

Detalii de contact

Hope Imobiliare

TAMAS SIMONA AGENT

3.83(4 review-uri)

Hope Imobiliare
PRO

Abonează-te la newsletter să fii primul care primește cele mai noi recomandări de proprietăți și sfaturi de la experți.

CONTACT

Creează alertă

Salvează căutarea ca să primești pe email ultimele anunțuri publicate

Apartamente cu 3 camere de vânzare în zona Tudor Vladimirescu, Sector 5