7

Apartament 2 camere-semidecomandat-zona Crangasi

109.900 €

Crângași, București

Nr. cam.:
2
Sup. utilă:
52 mp
Etaj:
Parter
An constr.:
1982
  • • Locație aproximativă

Descriere apartament

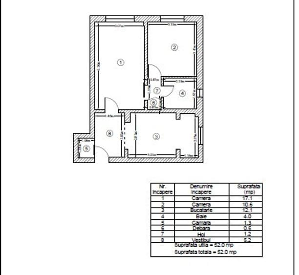
COD PROPRIETATE: P1739 Agentia imobiliara ERezidential va ofera spre vanzare, o proprietate tip apartament, cu 2 camere, semidecomandat, situata in Bucuresti, zona Crangasi, intr-un imobil tip bloc, construit in anul 1982, la etajul P/ 8. Dispune de o suprafata totala de 52 mp. Alcatuit din: camere -2, bucatarie- 1, bai- 1, balcon- 0 Caracteristici: -Pereti: vopsea lavabila, faianta -Podele: parchet, gresie -Ferestre: termopan -Contorizare: apometre, contor curent electric -Imobil: interfon, lift -Parcare: 0 -Utilitati generale: curent electric, apa, canalizare, gaz, fibra optica, utilitati in zona -Sistem incalzire: termoficare, calorifere Vecinatati (puncte de reper): Metrou & Parc Crangasi 300 m In imediata apropiere intalnim: spatii comerciale, financiare, educationale, medicale, de relaxare etc. Acces facil la mijloacele de transport in comun. Se percepe comision standard!
Citește mai mult Citește mai puțin
Confort 1 Semidecomandat Parțial mobilat Aer condiționat Calorifere Termoficare Bine întreținut (Bună)

Detalii apartament

ID anunț: XFKB101IG Copiat! 275255692 Copiat!
Actualizat în: 08 Aprilie 2026
Suprafață construită: 52 mp
Nr. bucătării: 1
Nr. băi: 1
Structură rezistență: Beton
Tip imobil: Bloc de apartamente
Regim înălțime: P+8E

Utilități

Destinație
Rezidențial
Pereți
Vopsea lavabilă Faianță
Podele
Parchet Gresie
Ușă intrare
Metal
Uși interior
Lemn
Izolații termice
Bloc izolat termic
Contorizare
Apometre
Bucătărie
Mobilată Utilată
Electrocasnice
Mașină de spălat Frigider Aragaz Hotă
Facilități imobil
Interfon Lift
Utilități
Curent Apă Canalizare Gaze
Amenajare străzi
Asfaltate Iluminat stradal Mijloace de transport în comun
Comision
standard

Vecinătăți:

Metrou & Parc Crangasi 300 m

Disponibilitate proprietate:

imediat

Puncte de interes

Mijloace transport
bus-station
Statia Semanatoarea Poarta 2 linia: 601, N110, N120
Stații autobuz aprox. 215 m
tram-station
statia Pod Ciurel linia 41
Stații tramvai aprox. 346 m
metro-station
Metrorex. Stația Petrache Poenaru(Semănătoarea) (M1)(1979)
Stații metrou aprox. 347 m
trolleybus-station
Statia RATB Lujerului, linia 61, 62
Stații troleibuz aprox. 1597 m
Școală
school
Scoala Nr. 167
Școli aprox. 465 m
school
Scoala Generala 167
Școli aprox. 465 m
university
FIMM si IMST, corpurile CB, CD, CF si CK (en)
Universități aprox. 915 m
kindergarten
Gradinita nr 40
Gradinițe aprox. 1199 m
Recreere
park
Strandul Crangasi
Parcuri aprox. 73 m
sports-ground
Teren fotbal
Terenuri sport aprox. 274 m
supermarket
Grant Shopping Center
Supermarket aprox. 401 m
hypermarket
Intrarea in caminele C si D din grozavesti
Hipermarket aprox. 1782 m

Detalii despre preț și costuri

Prețul pe piață

Preț cerut: 109.900 €

Preț min. zonă
Preț max. zonă

54% dintre proprietățile similare ca zonă și nr. camere au prețul cerut mai mare. mai multe...

Bine de știut: prețul unei proprietăți este influențat și de alte caracteristici, cum ar fi: vechime, localizare, vecinătăți, suprafață, compartimentare, amenajări, dotări, etc. mai puțin...

Insight premium disponibil după login

Costuri cu achiziția

Fără credit
Credit ipotecar
Noua casă

i

Costuri adiționale mai puțin știute la achiziție: taxe notariale, comisioane etc.

Insight premium disponibil după login

Proprietăți similare

Apartament cu 2 camere semidecomandat, mobilat în Crângași
110.000 €
București, Crângași
2 camere
56 mp
Parter
Apartament cu 2 camere semidecomandat, mobilat în Crângași
105.000 €
București, Crângași
2 camere
52 mp
Parter
Apartament cu 2 camere semidecomandat, mobilat în Crângași
109.900 €
București, Crângași
2 camere
56 mp
Parter / 8

Detalii de contact

EREZIDENTIAL

Alexandru Dan Manager

4.92(4 review-uri)

EREZIDENTIAL
PRO

Abonează-te la newsletter să fii primul care primește cele mai noi recomandări de proprietăți și sfaturi de la experți.

CONTACT

Creează alertă

Salvează căutarea ca să primești pe email ultimele anunțuri publicate

Apartamente cu 2 camere de vânzare în zona Crângași, Sector 6