2

Apartament 2 camere | Crangasi | Proximitate metrou | Bloc izolat

105.000 €

Crângași, București

Nr. cam.:
2
Sup. utilă:
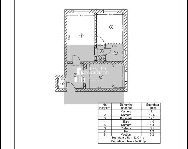
52 mp
Etaj:
Parter / 8
An constr.:
1980 (Finalizată)
  • • Locație aproximativă
  • • Vizionare prin apel video

Descriere apartament

CP3022064- Ramiroimob va propune spre vanzare un Apartament cu 2 camere, decomandat, având o suprafață utilă de 52 mp, situat la parter, în zona Crângași, ideal atât pentru locuință, cât și pentru investiție. Compartimentare practică: living luminos, dormitor confortabil, bucătărie separată, baie și hol generos. Bloc izolat termic pentru confort sporit și costuri reduse. Localizare excelentă: la doar 5 minute de metrou, aproape de magazine, Piața Crângași și alte puncte de interes. Pentru mai multe Pentru mai multe detalii sau programarea unei vizionări, vă stau la dispoziție – Daniel K., agent imobiliar, . Comision intermediere standard
Citește mai mult Citește mai puțin
Confort 1 Semidecomandat Mobilat Aer condiționat Calorifere Bine întreținut (Bună)

Detalii apartament

ID anunț: XCRN104IO Copiat! 275413090 Copiat!
Actualizat în: 09 Mai 2026
Nr. bucătării: 1
Nr. băi: 1
Structură rezistență: Beton
Tip imobil: Bloc de apartamente
Tip tranzacție: De vânzare prin agent
Regim înălțime: P+8E
Modalitate de plată: Cash sau Credit

Utilități

Pereți
Faianță
Ușă intrare
Metal
Uși interior
Celulare
Izolații termice
Exterior Interior
Contorizare
Apometre
Electrocasnice
Aragaz Frigider Mașină de spălat
Diverse
Sistem de alarmă
Facilități imobil
Videointerfon
Utilități
Curent Apă Canalizare CATV Gaze Telefon
Servicii imobil
Supraveghere video
Amenajare străzi
Iluminat stradal Mijloace de transport în comun Asfaltate Betonate
Comision
standard

Disponibilitate proprietate:

Imediat

Puncte de interes

Mijloace transport
tram-station
George Valsan
Stații tramvai aprox. 199 m
bus-station
Statia Mehadiei linia 162, 163, N110
Stații autobuz aprox. 385 m
train-station
Halta CFR Bucuresti Basarab h
Stații tren aprox. 511 m
metro-station
Metrorex. Stația Crângași (M1)(1987)
Stații metrou aprox. 743 m
Școală
kindergarten
Gradinita nr 40
Gradinițe aprox. 326 m
school
Gradinita Numarul 40
Școli aprox. 333 m
kindergarten
Gradinita Happy Tweety
Gradinițe aprox. 373 m
university
Institutul de Cercetări Metalurgice
Universități aprox. 538 m
Recreere
supermarket
Mega Image
Supermarket aprox. 169 m
sports-ground
Teren sportiv
Terenuri sport aprox. 350 m
park
Parc
Parcuri aprox. 383 m
restaurant
Pizza Real
Restaurant aprox. 554 m

Detalii despre preț și costuri

Prețul pe piață

Preț cerut: 105.000 €

Preț min. zonă
Preț max. zonă

62% dintre proprietățile similare ca zonă și nr. camere au prețul cerut mai mare. mai multe...

Bine de știut: prețul unei proprietăți este influențat și de alte caracteristici, cum ar fi: vechime, localizare, vecinătăți, suprafață, compartimentare, amenajări, dotări, etc. mai puțin...

Acces la informații premium după autentificare
Login Gratuit

Costuri cu achiziția

Fără credit
Credit ipotecar
Noua casă

i

Costuri adiționale mai puțin știute la achiziție: taxe notariale, comisioane etc.

Acces la informații premium după autentificare
Login Gratuit

Proprietăți similare

Apartament cu 3 camere semidecomandat în Crângași
112.000 €
București, Crângași
3 camere
67 mp
Etaj 3
Apartament cu 2 camere în Crângași
97.000 €
București, Crângași
2 camere
52 mp
Parter
Apartament cu 2 camere decomandat în Crângași
105.000 €
București, Crângași
2 camere
45 mp
Parter / 8

Detalii de contact

Ramiro Imob

Daniel Kara Agent Imobiliar

Ramiro Imob
PRO

Abonează-te la newsletter să fii primul care primește cele mai noi recomandări de proprietăți și sfaturi de la experți.

CONTACT

Creează alertă

Salvează căutarea ca să primești pe email ultimele anunțuri publicate

Apartamente cu 2 camere de vânzare în zona Crângași, Sector 6