4

Apartament 2 camere etaj 6/8 - bloc 1983 - Drumul Taberei

112.000 €

Drumul Taberei, București

Nr. cam.:
2
Sup. utilă:
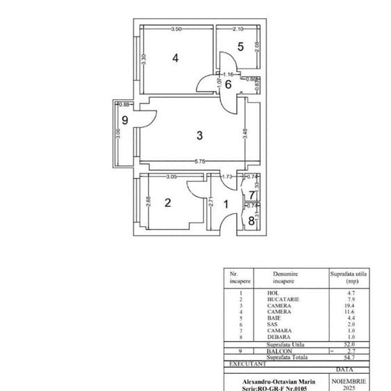
55 mp
Etaj:
6 / 10
An constr.:
1983
  • • Comision 0%
  • • Locație exactă

Descriere apartament

De vanzare apartament 2 camere renovat situat in zona Tudor Vladimirescu - Drumul Taberei. Blocul este construit in anul 1983 si dispune de o pozitie foarte buna, se afla pe Bl. Ghencea nr 42 cu acces rapid la mijloacele de transport in comun. Blocul este retras de la bulevard, iar vederea apartamentului este pe spate si astfel este ferit de zgomotul traficului. Apartamentul aflat in vanzare este renovat complet inclusiv instalatiile electrice , sanitare, toti peretii au fost raschetati pana la beton si refacuti, absolut totul este nou. Actele sunt la zi si se poate achizitiona si prin credit bancar.
Citește mai mult Citește mai puțin
Confort 1 Semidecomandat Nemobilat 1 Balcon / Terasă / Logie Aer condiționat Termoficare Renovat

Detalii apartament

ID anunț: XV1000HOM Copiat! 275480104 Copiat!
Actualizat în: 26 Aprilie 2026
Tip imobil: Bloc de apartamente
Regim înălțime: P+10E
Lift: Da

Utilități

Utilități
Apă Canalizare Gaze
Servicii imobil
Administrare
Comision
0%

Puncte de interes

Mijloace transport
bus-station
Statia Cartier Tudor Vladimirescu, linia 126, 173, 185, 385, 221, N122, 122
Stații autobuz aprox. 115 m
tram-station
Ghencea
Stații tramvai aprox. 203 m
metro-station
Stația de metrou "Tudor Vladimirescu"
Stații metrou aprox. 880 m
trolleybus-station
Statia RATB Favorit, linia troleibuz 69,71 si linia autobuz 126
Stații troleibuz aprox. 891 m
Școală
school
Scoala Nr. 59 Dimitrie Sturdza
Școli aprox. 226 m
school
Scoala Nr. 311
Școli aprox. 343 m
kindergarten
Gradinita de copii nr. 111
Gradinițe aprox. 867 m
kindergarten
Grădiniță copii nr 87 Spiridusii
Gradinițe aprox. 920 m
Recreere
supermarket
Profi
Supermarket aprox. 40 m
park
Parc
Parcuri aprox. 212 m
sports-ground
Teren sportiv
Terenuri sport aprox. 264 m
restaurant
Hanul Drumetului
Restaurant aprox. 377 m

Detalii despre preț și costuri

Prețul pe piață

Preț cerut: 112.000 €

Preț min. zonă
Preț max. zonă

59% dintre proprietățile similare ca zonă și nr. camere au prețul cerut mai mic. mai multe...

Bine de știut: prețul unei proprietăți este influențat și de alte caracteristici, cum ar fi: vechime, localizare, vecinătăți, suprafață, compartimentare, amenajări, dotări, etc. mai puțin...

Insight premium disponibil după login

Costuri cu achiziția

Fără credit
Credit ipotecar
Noua casă

i

Costuri adiționale mai puțin știute la achiziție: taxe notariale, comisioane etc.

Insight premium disponibil după login

Proprietăți similare

Apartament cu 4 camere semidecomandat, mobilat în Drumul Taberei
119.990 €
București, Drumul Taberei
4 camere
64 mp
Etaj 9 / 10
Apartament cu 2 camere circular în Drumul Taberei
108.000 €
București, Drumul Taberei
2 camere
50 mp
Etaj 7
Apartament cu 3 camere decomandat, mobilat în Drumul Taberei
113.700 €
București, Drumul Taberei
3 camere
65,81 mp
Etaj 1 / 4

Detalii de contact

Emil

Emil

Abonează-te la newsletter să fii primul care primește cele mai noi recomandări de proprietăți și sfaturi de la experți.

CONTACT

Creează alertă

Salvează căutarea ca să primești pe email ultimele anunțuri publicate

Apartamente cu 2 camere de vânzare în zona Drumul Taberei, Sector 6