13

3 camere P/5, parcare, centrala, gradina, Bdul Timisoara.

195.000 € + TVA

Drumul Taberei, București

Nr. cam.:
3
Sup. utilă:
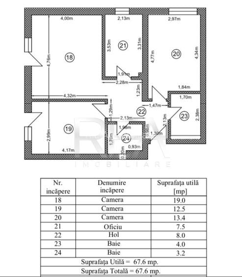
67,6 mp
Etaj:
Parter / 5
An constr.:
2023 (Finalizată)
  • • Locație aproximativă

Descriere apartament

R.E.A. Imobiliare va ofera spre vanzare un apartament cu 3 camere, decomandat situat in apropriere de Bdul Timisoara, pe Str. Leaota langa Scoala Finlandeza. Imobilul se afla intr-un bloc de apartamente construit in anul 2023, fara risc seismic, la etajul 1/5. Scara blocului este foarte curata si ingrijita monitorizata video. Este alcatuit din living, doua dormitoare, bucatarie, doua bai si o gradina de 110 mp. Suprafata totala este de 67,60. Apartamentul, se vinde nemobilat si neutilat, dispune si de parcare subterana la pretul de 30000e +tva, sau supraterana la pretul de 25-28000+tva cu statie electrica, iar accesul se face pe baza de telecomanda. Pretul apartamentului este 195000+tva. Confortul termic este realizat cu ajutorul centralei termice, dar si cu ajutorul aparatului de aer conditionat. In imediata apropiere se intalnesc puncte comerciale, bancare, farmaceutice, medicale, educationale si de divertisment ( Mall Plaza, Lidl, 600m, Carrefour Lujerului, Parcul Liniei 700m.) Acces facil la mijloacele de transport in comun, 3 minute pana la statia Stb, 13 minute pana la statia de metrou Romancierilor. Se accepta toate modalitatiile de plata. Informatiile tehnice au caracter orientativ, acestea fiind preluate de la proprietar. Pentru mai multe detalii si vizionari nu ezitati sa ne contactati specificand codul P7522.
Citește mai mult Citește mai puțin
Confort 1 Decomandat Nemobilat Grădină Aer condiționat Calorifere Centrală proprie Încălzire prin pardoseală 1 Parcare 1 Parcare / Garaj / Parcare subterană

Detalii apartament

ID anunț: XDKS106L8 Copiat! 261287722 Copiat!
Actualizat în: 20 Martie 2026
Suprafață construită: 81 mp
Nr. bucătării: 1
Nr. băi: 2
Tip imobil: Bloc de apartamente
Regim înălțime: P+5E

Utilități

Destinație
Rezidențial
Pereți
Vopsea lavabilă Faianță
Podele
Parchet Gresie
Ușă intrare
Metal
Uși interior
Lemn
Izolații termice
Exterior
Contorizare
Apometre Contor căldură Contor gaz
Diverse
Telecomandă poartă acces auto
Alte spații utile
Terasă WC Serviciu
Facilități imobil
Interfon Lift
Utilități
Curent Apă Canalizare Gaze
Amenajare străzi
Asfaltate Iluminat stradal Mijloace de transport în comun
Comision
standard

Disponibilitate proprietate:

imediat

Puncte de interes

Mijloace transport
metro-station
Valea Ialomiței (M5)
Stații metrou aprox. 127 m
bus-station
90
Stații autobuz aprox. 148 m
tram-station
Valea Oltului
Stații tramvai aprox. 368 m
trolleybus-station
Depoul de troleibuze Bujoreni
Stații troleibuz aprox. 568 m
Școală
kindergarten
Gradinita 210
Gradinițe aprox. 103 m
kindergarten
Gradinita Nr. 210
Gradinițe aprox. 103 m
school
Scoala Generala 206
Școli aprox. 121 m
school
Scoala nr. 206
Școli aprox. 121 m
Recreere
supermarket
Kaufland Valea Oltului
Supermarket aprox. 263 m
restaurant
Restaurant "Barlogul Lupilor"
Restaurant aprox. 268 m
park
Parc
Parcuri aprox. 269 m
sports-ground
Teren sportiv
Terenuri sport aprox. 732 m

Detalii despre preț și costuri

Prețul pe piață

Preț cerut: 195.000 €

Preț min. zonă
Preț max. zonă

99% dintre proprietățile similare ca zonă și nr. camere au prețul cerut mai mic. mai multe...

Bine de știut: prețul unei proprietăți este influențat și de alte caracteristici, cum ar fi: vechime, localizare, vecinătăți, suprafață, compartimentare, amenajări, dotări, etc. mai puțin...

Insight premium disponibil după login

Costuri cu achiziția

Fără credit
Credit ipotecar
Noua casă

i

Costuri adiționale mai puțin știute la achiziție: taxe notariale, comisioane etc.

Insight premium disponibil după login

Proprietăți recomandate

Detalii de contact

R.E.A. Imobiliare

Georgiana Lixandru Broker

4.78(3 review-uri)

R.E.A. Imobiliare
PRO

Abonează-te la newsletter să fii primul care primește cele mai noi recomandări de proprietăți și sfaturi de la experți.

CONTACT

Creează alertă

Salvează căutarea ca să primești pe email ultimele anunțuri publicate

Apartamente noi cu 3 camere de vânzare în zona Drumul Taberei, Sector 6