Drumul Taberei-Segarcea-Reabilitat-Decomandat

118.000 €

Drumul Taberei, București

Nr. cam.:
3
Sup. utilă:
66 mp
Etaj:
1 / 4
An constr.:
1974
  • • Locație exactă

Descriere apartament

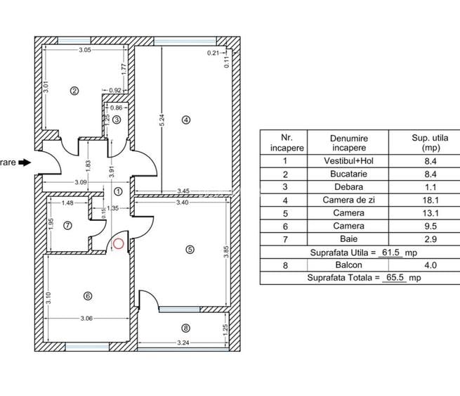
Va prezint spre vanzare un apartament de 3 camere, confort 1, decomandat situat in Drumul Taberei-zona Segarcea, localizat intr-un bloc reabilitat de 4 etaje la etajul 1. Apartamentul are o suprafata de 66mp(inclusiv balcon), vederea este mixta fata-spate(asa cum reiese din schita cadastrala), locatia excelenta ca pozitionare fata de - metrou, STB, scoli sau liceu, zona linistita(nu avem trafic in imediata apropiere). Pentru mai multe detalii, nu ezitati sa apelati.
Citește mai mult Citește mai puțin
Confort 1 Decomandat 1 Balcon / Terasă / Logie

Detalii apartament

ID anunț: XFMQ0001G Copiat! 275335695 Copiat!
Actualizat în: 23 Martie 2026
Nr. bucătării: 1
Nr. băi: 1
Tip imobil: Bloc de apartamente
Regim înălțime: P+4E

Utilități

Comision
Standard

Puncte de interes

Mijloace transport
bus-station
Aleea Vlasiei
Stații autobuz aprox. 152 m
metro-station
Râul Doamnei (M5)
Stații metrou aprox. 177 m
tram-station
Tricodava
Stații tramvai aprox. 821 m
trolleybus-station
Depoul de troleibuze Bujoreni
Stații troleibuz aprox. 1429 m
Școală
school
Colegiul National "Elena Cuza"
Școli aprox. 38 m
kindergarten
Grădinița 209
Gradinițe aprox. 218 m
kindergarten
Gradinita nr. 209 cu program prelungit
Gradinițe aprox. 218 m
school
Curtea gradinitei nr. 209
Școli aprox. 220 m
Recreere
park
Loc de joaca
Parcuri aprox. 109 m
restaurant
Azurro
Restaurant aprox. 242 m
supermarket
Mega Image
Supermarket aprox. 314 m
sports-ground
Teren sportiv
Terenuri sport aprox. 396 m

Detalii despre preț și costuri

Prețul pe piață

Preț cerut: 118.000 €

Preț min. zonă 78.000 €
Preț max. zonă 239.900 €

55% dintre proprietățile similare ca zonă și nr. camere au prețul cerut mai mare. mai multe...

Bine de știut: prețul unei proprietăți este influențat și de alte caracteristici, cum ar fi: vechime, localizare, vecinătăți, suprafață, compartimentare, amenajări, dotări, etc. mai puțin...

Costuri cu achiziția

Fără credit
6.954 RON
Credit ipotecar
8.567 RON
Noua casă
741 RON+ taxe notariale

i

Costuri adiționale mai puțin știute la achiziție: taxe notariale, comisioane etc.

Proprietăți similare

Apartament cu 3 camere decomandat în Drumul Taberei
107.700 €
București, Drumul Taberei
3 camere
62 mp
Parter
Apartament cu 2 camere decomandat în Drumul Taberei
110.500 € + TVA
București, Drumul Taberei
2 camere
60 mp
Etaj 1
Apartament cu 2 camere decomandat în Drumul Taberei
109.999 €
București, Drumul Taberei
2 camere
51,78 mp
Etaj 9 / 10

Detalii de contact

BGX IMOB

Bogdan Mandoiu

BGX IMOB

Abonează-te la newsletter să fii primul care primește cele mai noi recomandări de proprietăți și sfaturi de la experți.

CONTACT

Creează alertă

Salvează căutarea ca să primești pe email ultimele anunțuri publicate

Apartamente cu 3 camere de vânzare în zona Drumul Taberei, Sector 6