2 camere decomandat Drumul Taberei Valea Largă Brâncuși

130.000 €

Drumul Taberei, București

Nr. cam.:
2
Sup. utilă:
65 mp
Etaj:
5 / 12
An constr.:
2009
  • • Locație exactă

Descriere apartament

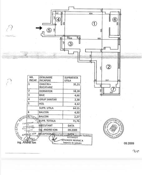
Se oferă spre vânzare un apartament de 2 camere decomandat situat la etajul 5 din 12 având o suprafață totală de 65 mp, an construcție 2009. Apartamentul se vinde mobilat si utilat ca in poze având îmbunătatiri de lux:gresie,faianta,parchet,usa metalică , termopane , centrala proprie ,aer condiționat. *Apartament 2 camere, 1 bucatarie, 1 baie, dressing, doua balcoane. 65 mp utili, 71 mp construiti. *Apartament finisat, mobilat. Ambele balcoane au gresie, unul este inchis cu PVC termopan. . *Doua lifturi. *Zona liniștită si plăcută fiind la 500 m statie de metrou Brancusi si Valea Oltului ,având in apropiere Parcul Brâncuși , Clinica Brâncuși , fiind la 2-3 minute de magazine de tip Mega Image. *Toate actele sunt OK,nu exista modificări fata de accepta plata cash, credit ipotecar.
Citește mai mult Citește mai puțin
Decomandat Mobilat Parțial Aer condiționat Calorifere Centrală proprie Bine întreținut (Bună)

Detalii apartament

ID anunț: XFPC0009E Copiat! 274823476 Copiat!
Actualizat în: 15 Februarie 2026
Tip imobil: Bloc de apartamente
Regim înălțime: P+12E

Utilități

Pereți
Faianță Vopsea lavabilă Vinarom
Podele
Gresie Parchet
Ușă intrare
Metal
Uși interior
Lemn
Izolații termice
Exterior Interior
Ferestre cu geam termopan
PVC
Contorizare
Apometre Contor gaz
Bucătărie
Utilată Mobilată
Alte spații utile
Debara
Utilități
Gaze Curent Canalizare Apă
Acces internet
Fibră optică Wireless
Servicii imobil
Administrare Supraveghere video
Amenajare străzi
Asfaltate Betonate Iluminat stradal Mijloace de transport în comun

Vicii:

fără VICII

Vecinătăți:

Valea Largă,Valea Oltului ,Brâncuși

Disponibilitate proprietate:

IMEDIAT

Puncte de interes

Mijloace transport
bus-station
Cartier Constantin Brancusi
Stații autobuz aprox. 238 m
tram-station
Radox
Stații tramvai aprox. 610 m
metro-station
Valea Ialomiței (M5)
Stații metrou aprox. 729 m
trolleybus-station
Depoul de troleibuze Bujoreni
Stații troleibuz aprox. 940 m
Școală
school
Scoala Genesis
Școli aprox. 370 m
kindergarten
Gradinita cu program prelungit Butterfly
Gradinițe aprox. 394 m
kindergarten
Gradinita de copii nr.208
Gradinițe aprox. 654 m
school
scoala 172 :Sfantul Andrei
Școli aprox. 811 m
Recreere
park
Parcul Constantin Brâncuși
Parcuri aprox. 91 m
supermarket
Mega Image
Supermarket aprox. 582 m
restaurant
Night Pizza
Restaurant aprox. 597 m
sports-ground
Baza Sportiva Givova
Terenuri sport aprox. 1453 m

Detalii despre preț și costuri

Prețul pe piață

Preț cerut: 130.000 €

Preț min. zonă 61.900 €
Preț max. zonă 140.000 €

55% dintre proprietățile similare ca zonă și nr. camere au prețul cerut mai mic. mai multe...

Bine de știut: prețul unei proprietăți este influențat și de alte caracteristici, cum ar fi: vechime, localizare, vecinătăți, suprafață, compartimentare, amenajări, dotări, etc. mai puțin...

Costuri cu achiziția

Fără credit
7.366 RON
Credit ipotecar
9.030 RON
Noua casă
802 RON+ taxe notariale

i

Costuri adiționale mai puțin știute la achiziție: taxe notariale, comisioane etc.

Proprietăți recomandate

Detalii de contact

IMOESSENTIAL SRL

Cristian Alexandru Munteanu

4.33(7 review-uri)

IMOESSENTIAL SRL
PRO

Abonează-te la newsletter să fii primul care primește cele mai noi recomandări de proprietăți și sfaturi de la experți.

CONTACT

Creează alertă

Salvează căutarea ca să primești pe email ultimele anunțuri publicate

Apartamente cu 2 camere de vânzare în zona Drumul Taberei, Sector 6