2 camere, 2/4, 56mp+ boxa-Drumul Taberei

115.000 €

Drumul Taberei, București

Nr. cam.:
2
Sup. utilă:
50 mp
Etaj:
2 / 4
An constr.:
1972 (Finalizată)
  • • Locație aproximativă

Descriere apartament

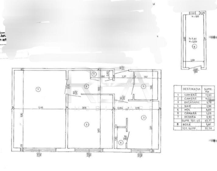
R.E.A. Imobiliare va ofera spre vanzare un apartament cu 2 camere, decomandat, situat in Drumul Taberei, pe Aleea Timisul de jos. Imobilul se afla intr.un bloc de apartamente construit in anul 1972, anvelopat doar apartamentul pe exterior, fara risc seismic, la etajul 2/4. Este alcatuit din living, dormitor, bucatarie, baie si boxa de 6 mp inclusa in schita cadastrala. Suprafata totala este de 56 mp, din care suprafata utila este de 50 mp. Apartamentul a fost complet renovat in 2020. Se vinde mobilat si utilat. Confortul termic este realizat cu ajutorul retelei edilitare de termoficare, dar si cu ajutorul aparatului de aer conditionat. In imediata apropiere se intalnesc puncte comerciale, bancare, farmaceutice, medicale, educationale si de divertisment. Acces facil la mijloacele de transport in comun, 5 minute pana la statia Stb si metrou Valea Ialomitei. Se accepta toate modalitatiile de plata. Informatiile tehnice au caracter orientativ, acestea fiind preluate de la proprietar. Pentru mai multe detalii si vizionari, ne puteti contacta telefonic, specificand codul P10509
Citește mai mult Citește mai puțin
Confort 1 Decomandat Mobilat Aer condiționat Calorifere Termoficare Beci Renovat

Detalii apartament

ID anunț: XDKS108OU Copiat! 275313836 Copiat!
Actualizat în: 25 Martie 2026
Suprafață construită: 60 mp
Nr. bucătării: 1
Nr. băi: 1
Tip imobil: Bloc de apartamente
Regim înălțime: P+4E

Utilități

Destinație
Rezidențial
Pereți
Vopsea lavabilă Faianță
Podele
Parchet Gresie
Ușă intrare
Metal
Uși interior
Lemn
Izolații termice
Exterior
Contorizare
Apometre
Bucătărie
Mobilată Utilată
Electrocasnice
Mașină de spălat Frigider Aragaz TV Cafetieră Cuptor microunde Hotă
Alte spații utile
Debara
Facilități imobil
Interfon
Utilități
Curent Apă Canalizare Gaze
Amenajare străzi
Asfaltate Iluminat stradal Mijloace de transport în comun
Comision
standard

Disponibilitate proprietate:

imediat

Puncte de interes

Mijloace transport
bus-station
Ansamblul Primavara
Stații autobuz aprox. 162 m
metro-station
Valea Ialomiței (M5)
Stații metrou aprox. 1475 m
tram-station
Radox
Stații tramvai aprox. 1670 m
trolleybus-station
Depoul de troleibuze Bujoreni
Stații troleibuz aprox. 1931 m
Școală
kindergarten
Watoto
Gradinițe aprox. 633 m
kindergarten
Gradinita cu program prelungit Butterfly
Gradinițe aprox. 696 m
school
Scoala Genesis
Școli aprox. 717 m
school
ȘCOALA CU CLASELE I-VIII NR. 144
Școli aprox. 859 m
Recreere
supermarket
Lidl
Supermarket aprox. 288 m
restaurant
Domino's Pizza
Restaurant aprox. 799 m
park
Parcul Constantin Brâncuși
Parcuri aprox. 1125 m
sports-ground
Teren sportiv
Terenuri sport aprox. 1503 m

Detalii despre preț și costuri

Prețul pe piață

Preț cerut: 115.000 €

Preț min. zonă 61.900 €
Preț max. zonă 140.000 €

81% dintre proprietățile similare ca zonă și nr. camere au prețul cerut mai mic. mai multe...

Bine de știut: prețul unei proprietăți este influențat și de alte caracteristici, cum ar fi: vechime, localizare, vecinătăți, suprafață, compartimentare, amenajări, dotări, etc. mai puțin...

Costuri cu achiziția

Fără credit
6.818 RON
Credit ipotecar
8.419 RON
Noua casă
726 RON+ taxe notariale

i

Costuri adiționale mai puțin știute la achiziție: taxe notariale, comisioane etc.

Proprietăți similare

Apartament cu 2 camere în Drumul Taberei
119.900 €
București, Drumul Taberei
2 camere
52 mp
Etaj 8
Apartament cu 2 camere decomandat în Drumul Taberei
104.000 €
București, Drumul Taberei
2 camere
47 mp
Etaj 7
Apartament cu 3 camere, mobilat în Drumul Taberei
120.000 €
București, Drumul Taberei
3 camere
63 mp
Etaj 4 / 4

Detalii de contact

R.E.A. Imobiliare

Veronica Ripa Broker

3.56(3 review-uri)

R.E.A. Imobiliare
PRO

Abonează-te la newsletter să fii primul care primește cele mai noi recomandări de proprietăți și sfaturi de la experți.

CONTACT

Creează alertă

Salvează căutarea ca să primești pe email ultimele anunțuri publicate

Apartamente cu 2 camere de vânzare în zona Drumul Taberei, Sector 6