3 camere | etaj 1 | decomandat | 150 m Metrou Raul Doamnei

122.500 €

Drumul Taberei, București

Nr. cam.:
3
Sup. utilă:
66 mp
Etaj:
1 / 4
An constr.:
1970 (Finalizată)
  • • Locație aproximativă

Descriere apartament

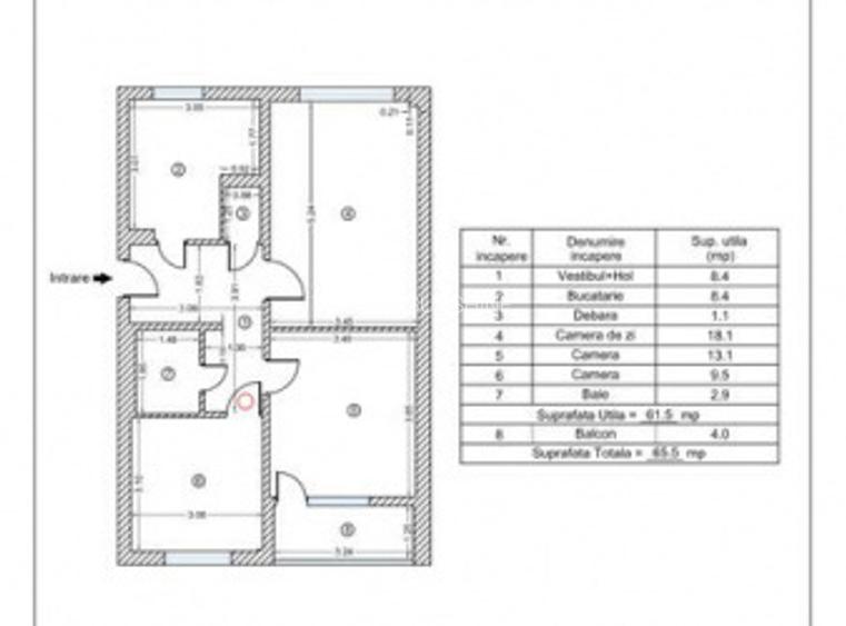
COD PROPRIETATE: P150535 Va ofer spre vanzare apartament cu 3 camere, decomandat cu o suprafata utila de 66 mp, situat in zona Drumul Taberei din Bucuresti la etajul 1 dintr-o cladire cu 4 etaje, construita in anul 1970. Locuinta dispune de 1 sufragerie, 2 dormitoare, 1 baie, 1 bucatarie si 1 balcon. Proprietatea face parte dintr-o cladire tip bloc, cu structura din beton. Puncte de interes: 150 m Metrou Raul Doamnei Utilitati generale: curent electric, apa, canalizare, gaz, telefon, acces internet, termoficare, aer conditionat Finisaje: finisat, bloc izolat termic, vopsea lavabila, faianta, parchet, gresie, pvc, usa intrare din si usile din interior din jaluzele rulouri din Dotari: mobilat complet, bucataria este mobilata, utilata, apometre, contor caldura, contor gaz, contor curent electric, interfon Pentru mai multe detalii sau pentru a programa o vizionare, nu ezitati sa ma contactati.
Citește mai mult Citește mai puțin
Confort 1 Decomandat Mobilat Complet 1 Balcon Aer condiționat Termoficare

Detalii apartament

ID anunț: XEBL100QF Copiat! 274911482 Copiat!
Actualizat în: 14 Februarie 2026
Nr. bucătării: 1
Nr. băi: 1
Structură rezistență: Beton
Tip imobil: Bloc de apartamente
Regim înălțime: P+4E

Utilități

Destinație
Rezidențial
Pereți
Vopsea lavabilă Faianță
Podele
Parchet Gresie
Izolații termice
Bloc izolat termic
Ferestre cu geam termopan
PVC
Contorizare
Apometre Contor căldură Contor gaz
Bucătărie
Mobilată Utilată
Dotări imobil
Interfon
Utilități
Curent Apă Canalizare Gaze Telefon
Amenajare străzi
Asfaltate Iluminat stradal Mijloace de transport în comun
Comision
standard

Vecinătăți:

150 m Metrou Raul Doamnei

Disponibilitate proprietate:

imediat

Puncte de interes

Mijloace transport
bus-station
Statia Valea Oltului, Liniile 368, 385, 268, N122, 668, 105, 122
Stații autobuz aprox. 270 m
metro-station
Râul Doamnei (M5)
Stații metrou aprox. 974 m
tram-station
Statia Bd. Ghencea / Brasov, linia 41
Stații tramvai aprox. 1679 m
trolleybus-station
Depoul de troleibuze Bujoreni
Stații troleibuz aprox. 1920 m
Școală
school
ȘCOALA CU CLASELE I-VIII NR. 144
Școli aprox. 244 m
school
Scoala Generala nr. 144
Școli aprox. 261 m
kindergarten
Gradinita Nr. 218
Gradinițe aprox. 572 m
kindergarten
Gradinita nr.218
Gradinițe aprox. 582 m
Recreere
supermarket
eMAG Supermarket
Supermarket aprox. 211 m
restaurant
Domino's Pizza
Restaurant aprox. 251 m
park
Parc
Parcuri aprox. 711 m
sports-ground
Teren sportiv
Terenuri sport aprox. 854 m

Detalii despre preț și costuri

Prețul pe piață

Preț cerut: 122.500 €

Preț min. zonă 78.000 €
Preț max. zonă 239.900 €

50% dintre proprietățile similare ca zonă și nr. camere au prețul cerut mai mare. mai multe...

Bine de știut: prețul unei proprietăți este influențat și de alte caracteristici, cum ar fi: vechime, localizare, vecinătăți, suprafață, compartimentare, amenajări, dotări, etc. mai puțin...

Costuri cu achiziția

Fără credit
7.107 RON
Credit ipotecar
8.739 RON
Noua casă
764 RON+ taxe notariale

i

Costuri adiționale mai puțin știute la achiziție: taxe notariale, comisioane etc.

Proprietăți recomandate

Detalii de contact

RISING SUNSHINE

Larisa Soare

4.50(6 review-uri)

RISING SUNSHINE
PRO

Abonează-te la newsletter să fii primul care primește cele mai noi recomandări de proprietăți și sfaturi de la experți.

CONTACT

Creează alertă

Salvează căutarea ca să primești pe email ultimele anunțuri publicate

Apartamente cu 3 camere de vânzare în zona Drumul Taberei, Sector 6