2

3 camere, 2/4, 64mp, anvelopat-Drumul Taberei

107.000 €

Drumul Taberei, București

Nr. cam.:
3
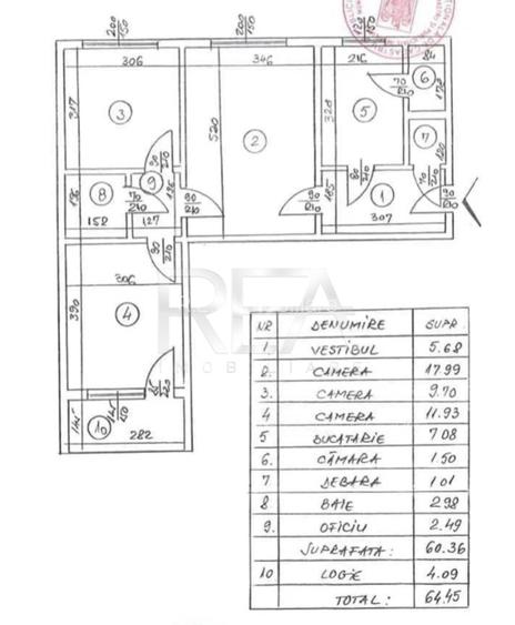
Sup. utilă:
60,36 mp
Etaj:
2 / 4
An constr.:
1973 (Finalizată)
  • • Locație aproximativă

Descriere apartament

R.E.A. Imobiliare va ofera spre vanzare un apartament cu 3 camere, semidecomandat, situat in Drumul Taberei, pe Aleea Calatis. Imobilul se afla intr-un bloc de apartamente construit in anul 1973, anvelopat, fara risc seismic, la etajul 2/4. Detine o suprafata totala de 64,45 mp, din care suprafata utila este de 60,36 mp. Locuinta este alcatuita din living, doua dormitoare, bucatarie, baie si balcon. Apartamentul se vinde mobilat si utilat. Confortul termic este realizat cu ajutorul retelei edilitare de termoficare, dar si cu ajutorul aparatului de aer conditionat. In imediata apropriere se intalnesc puncte bancare, comerciale, farmaceutice, medicale, dar si de divertisment. Acces facil la mijloacele de transport in comun,5 minute pana la statia Stb si metrou Constantin Brancusi sau Raul Doamnei. Se accepta toate modalitatile de plata. Informatiile tehnice au caracter orientativ, acestea fiind preluate de la proprietar. Pentru mai multe detalii si vizionari, ne puteti contacta telefonic , specificand codul de identificare P10356.
Citește mai mult Citește mai puțin
Confort 1 Semidecomandat Mobilat 1 Balcon / Terasă / Logie Aer condiționat Calorifere Termoficare Bine întreținut (Bună)

Detalii apartament

ID anunț: XDKS108VB Copiat! 275436725 Copiat!
Actualizat în: 15 Aprilie 2026
Suprafață construită: 72 mp
Nr. bucătării: 1
Nr. băi: 1
Tip imobil: Bloc de apartamente
Regim înălțime: P+4E

Utilități

Pereți
Vopsea lavabilă Faianță
Podele
Parchet Gresie
Ușă intrare
Metal
Uși interior
Lemn
Ferestre cu geam termopan
PVC
Contorizare
Apometre
Bucătărie
Mobilată Utilată
Electrocasnice
Mașină de spălat Frigider Aragaz Cuptor microunde Hotă
Alte spații utile
Debara
Facilități imobil
Interfon
Utilități
Curent Apă Canalizare Gaze
Internet
Fibră optică
Servicii imobil
Supraveghere video
Amenajare străzi
Asfaltate Iluminat stradal Mijloace de transport în comun
Comision
Standard

Puncte de interes

Mijloace transport
bus-station
Statia Drumul Taberei 85/98 / Posta, linia 168, 173, 221, 268, N116, 668,90, 93, 69
Stații autobuz aprox. 192 m
metro-station
Râul Doamnei (M5)
Stații metrou aprox. 232 m
tram-station
Tricodava
Stații tramvai aprox. 1168 m
trolleybus-station
Depoul de troleibuze Bujoreni
Stații troleibuz aprox. 1430 m
Școală
school
Gradinita nr. 230
Școli aprox. 211 m
kindergarten
Gradinita de copii nr.230
Gradinițe aprox. 223 m
kindergarten
Curtea grădiniței (en)
Gradinițe aprox. 229 m
school
Scoala Speciala Nr. 11
Școli aprox. 239 m
Recreere
park
Playground (en)
Parcuri aprox. 156 m
supermarket
Mega Image
Supermarket aprox. 220 m
bar
Bono
Bar aprox. 226 m
sports-ground
Teren sportiv
Terenuri sport aprox. 371 m

Detalii despre preț și costuri

Prețul pe piață

Preț cerut: 107.000 €

Preț min. zonă
Preț max. zonă

56% dintre proprietățile similare ca zonă și nr. camere au prețul cerut mai mare. mai multe...

Bine de știut: prețul unei proprietăți este influențat și de alte caracteristici, cum ar fi: vechime, localizare, vecinătăți, suprafață, compartimentare, amenajări, dotări, etc. mai puțin...

Insight premium disponibil după login

Costuri cu achiziția

Fără credit
Credit ipotecar
Noua casă

i

Costuri adiționale mai puțin știute la achiziție: taxe notariale, comisioane etc.

Insight premium disponibil după login

Proprietăți similare

Apartament cu 2 camere circular în Drumul Taberei
108.000 €
București, Drumul Taberei
2 camere
50 mp
Etaj 7
Apartament cu 2 camere nedecomandat în Drumul Taberei
116.600 € + TVA
București, Drumul Taberei
2 camere
40,3 mp
Etaj 4 / 11
Apartament cu 3 camere semidecomandat, mobilat în Drumul Taberei
97.990 €
București, Drumul Taberei
3 camere
43 mp
Etaj 2

Detalii de contact

R.E.A. Imobiliare

Veronica Ripa Broker

3.56(3 review-uri)

R.E.A. Imobiliare
PRO

Abonează-te la newsletter să fii primul care primește cele mai noi recomandări de proprietăți și sfaturi de la experți.

CONTACT

Creează alertă

Salvează căutarea ca să primești pe email ultimele anunțuri publicate

Apartamente cu 3 camere de vânzare în zona Drumul Taberei, Sector 6