3 camere | etaj 1 | decomandat | 150 m Metrou Raul Doamnei

117.900 €

Drumul Taberei, București

Nr. cam.:
3
Sup. utilă:
66 mp
Etaj:
1 / 4
An constr.:
1970 (Finalizată)
  • • Locație aproximativă

Descriere apartament

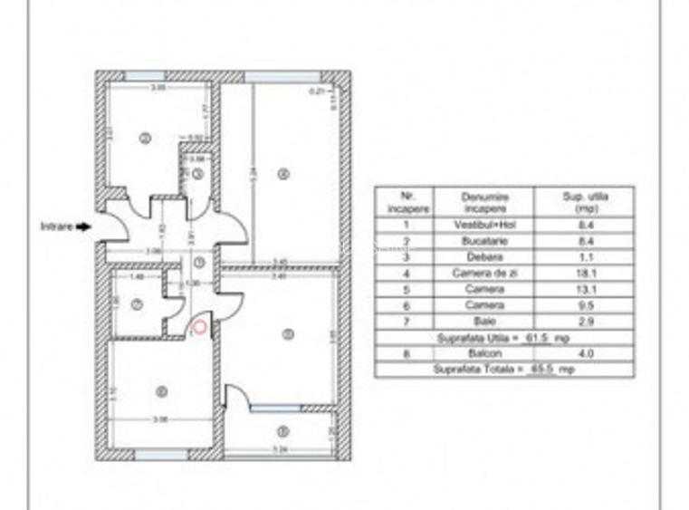
COD PROPRIETATE: P150535 Vă ofer spre vânzare apartament cu 3 camere, decomandat cu o suprafață utilă de 66 mp, situat în zona Drumul Taberei din Bucuresti la etajul 1 dintr-o clădire cu 4 etaje, construită în anul 1970. Locuința dispune de 1 sufragerie, 2 dormitoare, 1 baie, 1 bucătărie și 1 balcon. Proprietatea face parte dintr-o clădire tip bloc, cu structura din beton. Puncte de interes: 150 m Metrou Raul Doamnei Utilități generale: curent electric, apa, canalizare, gaz, telefon, acces internet, termoficare, aer conditionat Finisaje: finisat, bloc izolat termic, vopsea lavabila, faianta, parchet, gresie, pvc, ușa intrare din și ușile din interior din jaluzele rulouri din Dotări: mobilat complet, bucătăria este mobilata, utilata, apometre, contor caldura, contor gaz, contor curent electric, interfon Pentru mai multe detalii sau pentru a programa o vizionare, nu ezitați să mă contactați.
Citește mai mult Citește mai puțin
Confort 1 Decomandat Mobilat 1 Balcon / Terasă / Logie Aer condiționat Termoficare Bine întreținut (Bună)

Detalii apartament

ID anunț: XEBL1096O Copiat! 275465479 Copiat!
Actualizat în: 22 Aprilie 2026
Nr. bucătării: 1
Nr. băi: 1
Structură rezistență: Beton
Tip imobil: Bloc de apartamente
Regim înălțime: P+4E

Utilități

Pereți
Vopsea lavabilă Faianță
Podele
Parchet Gresie
Ferestre cu geam termopan
PVC
Contorizare
Apometre Contor căldură Contor gaz
Bucătărie
Mobilată Utilată
Facilități imobil
Interfon
Utilități
Curent Apă Canalizare Gaze Telefon
Amenajare străzi
Asfaltate Iluminat stradal Mijloace de transport în comun
Comision
Standard

Puncte de interes

Mijloace transport
bus-station
Aleea Vlasiei
Stații autobuz aprox. 122 m
metro-station
Râul Doamnei (M5)
Stații metrou aprox. 123 m
tram-station
Tricodava
Stații tramvai aprox. 857 m
trolleybus-station
Depoul de troleibuze Bujoreni
Stații troleibuz aprox. 1437 m
Școală
school
Colegiul National "Elena Cuza"
Școli aprox. 85 m
kindergarten
Grădinița 209
Gradinițe aprox. 265 m
kindergarten
Gradinita nr. 209 cu program prelungit
Gradinițe aprox. 265 m
school
Curtea gradinitei nr. 209
Școli aprox. 268 m
Recreere
park
Loc de joaca
Parcuri aprox. 58 m
bar
Bono
Bar aprox. 242 m
supermarket
Mega Image
Supermarket aprox. 290 m
sports-ground
Teren sportiv
Terenuri sport aprox. 396 m

Detalii despre preț și costuri

Prețul pe piață

Preț cerut: 117.900 €

Preț min. zonă
Preț max. zonă

55% dintre proprietățile similare ca zonă și nr. camere au prețul cerut mai mare. mai multe...

Bine de știut: prețul unei proprietăți este influențat și de alte caracteristici, cum ar fi: vechime, localizare, vecinătăți, suprafață, compartimentare, amenajări, dotări, etc. mai puțin...

Insight premium disponibil după login

Costuri cu achiziția

Fără credit
Credit ipotecar
Noua casă

i

Costuri adiționale mai puțin știute la achiziție: taxe notariale, comisioane etc.

Insight premium disponibil după login

Proprietăți similare

Apartament cu 3 camere decomandat în Drumul Taberei
115.000 €
București, Drumul Taberei
3 camere
80 mp
Etaj 10
Apartament cu 2 camere decomandat în Ghencea
117.000 € + TVA
București, Drumul Taberei
2 camere
59,3 mp
Etaj 11 / 11
Apartament cu 2 camere decomandat în Drumul Taberei
115.500 € + TVA
București, Drumul Taberei
2 camere
55 mp
Etaj 1

Detalii de contact

RISING SUNSHINE

Rising Sunshine

RISING SUNSHINE
PRO

Abonează-te la newsletter să fii primul care primește cele mai noi recomandări de proprietăți și sfaturi de la experți.

CONTACT

Creează alertă

Salvează căutarea ca să primești pe email ultimele anunțuri publicate

Apartamente cu 3 camere de vânzare în zona Drumul Taberei, Sector 6