4

APARTAMENT 3 CAMERE - BLOC NOU CALEA GIULESTI

128.500 €

Giulești, București

Nr. cam.:
3
Sup. utilă:
60 mp
Etaj:
2 / 4
An constr.:
2025 (În construcție)
  • • Locație exactă

Descriere apartament

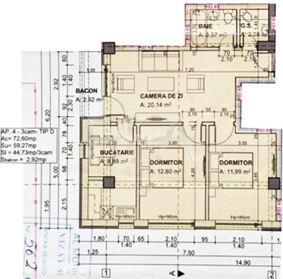
R.E.A. Imobiliare va prezinta spre vanzare un apartament modern de 3 camere, situat intr-un imobil nou, pe Calea Giulesti, cu acces direct la strada principala si locuri de parcare disponibile la parter. Proprietatea se afla la etajul 1 si se preda complet finisata, gata de mutare, cu posibilitatea personalizarii unor detalii in functie de preferintele cumparatorului. Compartimentare si suprafete: - Living - 20,14 mp, spatios si luminos, cu acces direct catre balcon - Dormitor 1 - 12,60 mp - Dormitor 2 - 11,99 mp - Bucatarie - 8,89 mp, separata, cu spatiu pentru mobilare completa si zona de dining - Baie principala - 4,57 mp, cu cada/dus - Grup sanitar de serviciu - 1,83 mp - Hol si spatii de distributie - 8,25 mp, gandite ergonomic pentru acces facil in toate camerele - Balcon - 2,92 mp Suprafata utila totala: 59,27 mp Suprafata construita: 72,60 mp Beneficii si facilitati: - Apartament nou, in bloc modern, cu lift - Constructie solida, cu instalatii si utilitati noi - Locatie excelenta, pe bulevard, cu acces imediat la: transport in comun, magazine, scoli si centre comerciale - Locuri de parcare disponibile la parterul imobilului O locuinta potrivita pentru o familie care isi doreste un spatiu confortabil si bine compartimentat, dar si o alegere inspirata pentru investitie, avand potential ridicat de inchiriere datorita amplasamentului. Pentru mai multe detalii si vizionari, ne puteti contacta telefonic, specificand codul de identificare P8448
Citește mai mult Citește mai puțin
Confort 1 Semidecomandat 1 Balcon / Terasă / Logie Aer condiționat Calorifere Centrală proprie

Detalii apartament

ID anunț: XDKS107GN Copiat! 270032703 Copiat!
Actualizat în: 16 Octombrie 2025
Suprafață construită: 72 mp
Nr. bucătării: 1
Nr. băi: 1
Structură rezistență: Beton
Tip imobil: Bloc de apartamente
Regim înălțime: P+4E

Utilități

Destinație
Rezidențial
Pereți
Faianță Vopsea lavabilă
Podele
Gresie Parchet
Ușă intrare
Metal
Uși interior
Celulare
Izolații termice
Bloc izolat termic
Ferestre cu geam termopan
PVC
Utilități
Curent Canalizare Gaze
Amenajare străzi
Asfaltate
Comision
standard

Disponibilitate proprietate:

imediat

Puncte de interes

Mijloace transport
bus-station
Statia Copsa Mica linia 162, 163, N110
Stații autobuz aprox. 71 m
tram-station
Statia Copsa Mica linia 11
Stații tramvai aprox. 97 m
train-station
Gara - Halta Pajura - zisa si Triaj
Stații tren aprox. 1404 m
metro-station
Metrorex. Stația 1 Mai (M4)(2000)
Stații metrou aprox. 1601 m
Școală
school
Scoala Nr. 162
Școli aprox. 80 m
school
Scoala Gimnaziala Nr. 162
Școli aprox. 93 m
kindergarten
Gradinita 97
Gradinițe aprox. 1016 m
university
Institutul de Cercetări Metalurgice
Universități aprox. 1530 m
Recreere
bar
Bar de cartier
Bar aprox. 348 m
sports-ground
Teren fotbal acoperit
Terenuri sport aprox. 855 m
park
Parc
Parcuri aprox. 891 m
supermarket
Auchan Crangasi
Supermarket aprox. 1346 m

Detalii despre preț și costuri

Prețul pe piață

Preț cerut: 128.500 €

Preț min. zonă
Preț max. zonă

90% dintre proprietățile similare ca zonă și nr. camere au prețul cerut mai mic. mai multe...

Bine de știut: prețul unei proprietăți este influențat și de alte caracteristici, cum ar fi: vechime, localizare, vecinătăți, suprafață, compartimentare, amenajări, dotări, etc. mai puțin...

Insight premium disponibil după login

Costuri cu achiziția

Fără credit
Credit ipotecar
Noua casă

i

Costuri adiționale mai puțin știute la achiziție: taxe notariale, comisioane etc.

Insight premium disponibil după login

Proprietăți recomandate

Detalii de contact

R.E.A. Imobiliare

Eduard Klaus Broker

R.E.A. Imobiliare
PRO

Abonează-te la newsletter să fii primul care primește cele mai noi recomandări de proprietăți și sfaturi de la experți.

CONTACT

Creează alertă

Salvează căutarea ca să primești pe email ultimele anunțuri publicate

Apartamente cu 3 camere de vânzare în zona Giulești, Sector 6