3 camere | etaj 3 | decomandat | Metrou Gorjului

117.500 €

Gorjului, București

Nr. cam.:
3
Sup. utilă:
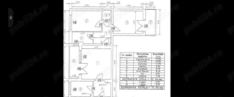
71 mp
Etaj:
3 / 10
An constr.:
1972 (Finalizată)
  • • Locație aproximativă

Descriere apartament

COD PROPRIETATE: P148457 Vă ofer spre vânzare apartament cu 3 camere, decomandat cu o suprafață utilă de 71 mp, situat în zona Gorjului din Bucuresti la etajul 3 dintr-o clădire cu 10 etaje, construită în anul 1972. Locuința dispune de 1 sufragerie, 2 dormitoare, 1 baie, 1 bucătărie și 1 balcon cu o suprafață de 4 mp. Proprietatea face parte dintr-o clădire tip bloc, cu structura din beton. Puncte de interes: Metrou Gorjului Utilități generale: curent electric, apa, canalizare, gaz, termoficare, calorifere, aer conditionat Finisaje: necesita renovare, exterior, bloc izolat termic, vopsea lavabila, faianta, parchet, gresie, pvc, ușa intrare din metal și ușile din interior din lemn jaluzele rulouri din Dotări: mobilat nemobilat, bucătăria este mobilata, utilata, apometre, contor gaz, contor curent electric, contorizare separata, interfon, supraveghere video, lift Pentru mai multe detalii sau pentru a programa o vizionare, nu ezitați să mă contactați.
Citește mai mult Citește mai puțin
Confort 1 Decomandat Nemobilat 1 Balcon / Terasă / Logie Aer condiționat Calorifere Termoficare Necesită renovare

Detalii apartament

ID anunț: XEBL1091O Copiat! 275451610 Copiat!
Actualizat în: 20 Aprilie 2026
Suprafață construită: 81 mp
Nr. bucătării: 1
Nr. băi: 1
Structură rezistență: Beton
Tip imobil: Bloc de apartamente
Regim înălțime: P+10E

Utilități

Pereți
Vopsea lavabilă Faianță
Podele
Parchet Gresie
Ușă intrare
Metal
Uși interior
Lemn
Izolații termice
Exterior
Ferestre cu geam termopan
PVC
Contorizare
Apometre Contor gaz
Bucătărie
Mobilată Utilată
Alte spații utile
Debara
Facilități imobil
Interfon Lift
Utilități
Curent Apă Canalizare Gaze
Servicii imobil
Supraveghere video
Amenajare străzi
Asfaltate Iluminat stradal Mijloace de transport în comun
Comision
Standard

Puncte de interes

Mijloace transport
bus-station
Statia Piata Gorjului: 137, 138
Stații autobuz aprox. 307 m
metro-station
Metrorex. Statia Gorjului (M3).
Stații metrou aprox. 356 m
trolleybus-station
statia Piața Gorjului: 61, 62
Stații troleibuz aprox. 382 m
tram-station
Statia Romancierilor, linia 8,25,47
Stații tramvai aprox. 1206 m
Școală
school
Gradinita Blue Fairy
Școli aprox. 212 m
school
Școala Generală nr. 174 "Constantin Brâncuși"
Școli aprox. 247 m
kindergarten
Cresa Militari
Gradinițe aprox. 284 m
university
Colegiu Penticostal
Universități aprox. 894 m
Recreere
bar
Grasele
Bar aprox. 146 m
supermarket
Carrefour Market - Piata Gorjului
Supermarket aprox. 286 m
park
Loc de joaca
Parcuri aprox. 397 m
sports-ground
Baza Sportiva Givova
Terenuri sport aprox. 849 m

Detalii despre preț și costuri

Prețul pe piață

Preț cerut: 117.500 €

Preț min. zonă
Preț max. zonă

72% dintre proprietățile similare ca zonă și nr. camere au prețul cerut mai mare. mai multe...

Bine de știut: prețul unei proprietăți este influențat și de alte caracteristici, cum ar fi: vechime, localizare, vecinătăți, suprafață, compartimentare, amenajări, dotări, etc. mai puțin...

Insight premium disponibil după login

Costuri cu achiziția

Fără credit
Credit ipotecar
Noua casă

i

Costuri adiționale mai puțin știute la achiziție: taxe notariale, comisioane etc.

Insight premium disponibil după login

Proprietăți similare

Apartament cu 2 camere decomandat în Gorjului
113.990 €
București, Gorjului
2 camere
53 mp
Parter
Apartament cu 2 camere decomandat în Gorjului
124.700 €
București, Gorjului
2 camere
51 mp
Etaj 1
Apartament cu 3 camere semidecomandat, mobilat în Gorjului
117.998 €
București, Gorjului
3 camere
71 mp
Etaj 3 / 10

Detalii de contact

RISING SUNSHINE

Rising Sunshine

RISING SUNSHINE
PRO

Abonează-te la newsletter să fii primul care primește cele mai noi recomandări de proprietăți și sfaturi de la experți.

CONTACT

Creează alertă

Salvează căutarea ca să primești pe email ultimele anunțuri publicate

Apartamente cu 3 camere de vânzare în zona Gorjului, Sector 6