4

Apartament 2 camere de vânzare Gorjului

135.000 €

Gorjului, București

Nr. cam.:
2
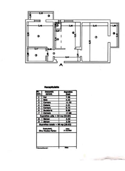
Sup. utilă:
53 mp
Etaj:
Parter / 4
An constr.:
1986 (Finalizată)
  • • Locație exactă
  • • Vizionare prin apel video

Descriere apartament

Va propunem spre vânzare un apartament finisat format din 2 camere, compartimentarea fiind decomandat, situat la parter din 4, cu o suprafata totala de 60 mp din care cea utila este de 53 mp, confortul termic este realizat prin centrala proprie, se vinde mobilat și utilat anul construcției 1986, renovat complet in anul 2023, apartamentul este izolat atât pe interior cat si pe exterior, in proximitate se regasesc următoarele: puncte farmaceutice, medicale, comerciale, educaționale, bancare, parcuri, metrou, piețe. Imobilul se află str Grintiesului, la doar 7 minute până la metrou Gorjului. Comision agenție 3%, ușor discutabil
Citește mai mult Citește mai puțin
Confort 1 Decomandat Mobilat 2 Balcoane / Terase / Logii Aer condiționat Centrală imobil Renovat Bine întreținut (Bună)

Detalii apartament

ID anunț: XFKE000J6 Copiat! 275388709 Copiat!
Actualizat în: 12 Mai 2026
Suprafață utilă totală: 60 mp
Nr. bucătării: 1
Nr. băi: 1
Tip imobil: Bloc de apartamente
Tip tranzacție: De vânzare prin agent
Regim înălțime: P+4E
Vizionare cu programare: Da
Modalitate de plată: Cash sau Credit

Utilități

Pereți
Faianță Vopsea lavabilă
Podele
Gresie Parchet
Ușă intrare
Metal
Uși interior
Lemn
Izolații termice
Interior Exterior
Ferestre cu geam termopan
PVC
Bucătărie
Mobilată Utilată
Electrocasnice
Mașină de spălat Frigider Aragaz Hotă
Facilități imobil
Interfon
Utilități
Gaze Apă Curent
Servicii imobil
Administrare Supraveghere video
Amenajare străzi
Asfaltate

Puncte de interes

Mijloace transport
bus-station
statia Roșia Montană (106, 178*) (en)
Stații autobuz aprox. 263 m
metro-station
Metrorex. Statia Gorjului (M3).
Stații metrou aprox. 559 m
trolleybus-station
statia Piața Gorjului: 61, 62
Stații troleibuz aprox. 600 m
tram-station
Statia Orsova, linia 41
Stații tramvai aprox. 1162 m
Școală
kindergarten
Cresa Militari
Gradinițe aprox. 28 m
school
Scoala Nr. 310 Regele Mihai I
Școli aprox. 216 m
kindergarten
Dumbrava Minunilor
Gradinițe aprox. 528 m
university
Colegiu Penticostal
Universități aprox. 649 m
Recreere
supermarket
magazin universal Profi
Supermarket aprox. 182 m
restaurant
Jerry's Pizza - Militari
Restaurant aprox. 270 m
park
Apusului
Parcuri aprox. 569 m
sports-ground
Baza Sportiva Givova
Terenuri sport aprox. 1128 m

Detalii despre preț și costuri

Prețul pe piață

Preț cerut: 135.000 €

Preț min. zonă
Preț max. zonă

74% dintre proprietățile similare ca zonă și nr. camere au prețul cerut mai mic. mai multe...

Bine de știut: prețul unei proprietăți este influențat și de alte caracteristici, cum ar fi: vechime, localizare, vecinătăți, suprafață, compartimentare, amenajări, dotări, etc. mai puțin...

Acces la informații premium după autentificare
Login Gratuit

Costuri cu achiziția

Fără credit
Credit ipotecar
Noua casă

i

Costuri adiționale mai puțin știute la achiziție: taxe notariale, comisioane etc.

Acces la informații premium după autentificare
Login Gratuit

Proprietăți similare

Apartament cu 2 camere decomandat în Gorjului
139.900 €
București, Gorjului
2 camere
51 mp
Etaj 6
Apartament cu 3 camere circular, mobilat în Gorjului
129.900 €
București, Gorjului
3 camere
62 mp
Etaj 10 / 11
Apartament cu 2 camere semidecomandat, mobilat în Gorjului
123.000 €
București, Gorjului
2 camere
54 mp
Etaj 3 / 8

Detalii de contact

ADVERTO IMOBILIARE

Simona Baluta Broker Imobiliar

ADVERTO IMOBILIARE
PRO

Abonează-te la newsletter să fii primul care primește cele mai noi recomandări de proprietăți și sfaturi de la experți.

CONTACT

Creează alertă

Salvează căutarea ca să primești pe email ultimele anunțuri publicate

Apartamente cu 2 camere de vânzare în zona Gorjului, Sector 6