4

2 Camere cu doua balcoane Centrala Proprie Metrou Gorjului

138.000 €

Gorjului, București

Nr. cam.:
2
Sup. utilă:
53,02 mp
Etaj:
Parter / 4
An constr.:
1986 (Finalizată)
  • • Locație aproximativă

Descriere apartament

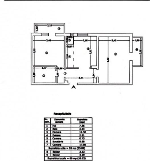
GNM Estate va ofera spre vanzare un apartament cu doua camere, decomandat, situat in zona Gorjului, in vecinatate Spitalul Wellborn. Imobilul se afla intr-un bloc de apartamente, construit in anul 1986, fara risc seismic, la parter intr-un imobil de 4 etaje si detine o suprafata totala de 59,63 m.p. din care suprafata utila este 53,02 m.p. si balcoane in suprafata de 6,71 m.p. Locuinta este alcatuita din un dormitor, un living, o bucatarie, o baie, un hol si doua balcoane. Confortul termic este realizat cu ajutorul centralei proprii pe gaz. In imediata apropiere se intalnesc puncte farmaceutice, medicale, comerciale, educationale, de divertisment, bancare, parcuri, piete, etc. Accesul la mijloacele de transport in comun facil: 8 minute pana la statia de metrou Gorjului sau 3 minute pan ala statia Stb Rosia Montana. Se accepta toate modalitatile de plata. Informatiile tehnice au caracter orientativ, acestea fiind preluate de la proprietari. Pentru mai multe detalii si vizionari, ne puteti contacta telefonic, specificand codul de identificare P256976.
Citește mai mult Citește mai puțin
Confort 1 Decomandat Mobilat 1 Balcon / Terasă / Logie Aer condiționat Calorifere Centrală proprie Bine întreținut (Bună)

Detalii apartament

ID anunț: XGCS0002D Copiat! 275401199 Copiat!
Actualizat în: 28 Aprilie 2026
Suprafață construită: 70 mp
Nr. bucătării: 1
Nr. băi: 1
Structură rezistență: Beton
Tip imobil: Bloc de apartamente
Tip tranzacție: De vânzare prin agent
Regim înălțime: P+4E
Modalitate de plată: Cash sau Credit

Utilități

Pereți
Vopsea lavabilă Faianță
Podele
Parchet Gresie
Ușă intrare
Metal
Uși interior
Lemn
Izolații termice
Interior
Ferestre cu geam termopan
PVC
Contorizare
Apometre Contor căldură Contor gaz
Bucătărie
Mobilată Utilată
Electrocasnice
Mașină de spălat Frigider Aragaz Hotă
Facilități imobil
Interfon
Utilități
Curent Apă Canalizare Gaze
Amenajare străzi
Asfaltate Iluminat stradal Mijloace de transport în comun
Comision
Standard

Puncte de interes

Mijloace transport
bus-station
statia Roșia Montană (106, 178*) (en)
Stații autobuz aprox. 219 m
metro-station
Metrorex. Statia Gorjului (M3).
Stații metrou aprox. 467 m
trolleybus-station
statia Piața Gorjului: 61, 62
Stații troleibuz aprox. 507 m
tram-station
Statia Bd. Uverturii / Pasajul Lujerului, linia 41
Stații tramvai aprox. 1147 m
Școală
kindergarten
Cresa Militari
Gradinițe aprox. 111 m
school
Școala Generală nr. 174 "Constantin Brâncuși"
Școli aprox. 158 m
kindergarten
Dumbrava Minunilor
Gradinițe aprox. 483 m
university
Colegiu Penticostal
Universități aprox. 741 m
Recreere
supermarket
magazin universal Profi
Supermarket aprox. 204 m
bar
Grasele
Bar aprox. 281 m
park
Apusului
Parcuri aprox. 563 m
sports-ground
Baza Sportiva Givova
Terenuri sport aprox. 1040 m

Istoricul prețurilor

Acces la informații premium după autentificare
Login Gratuit

Detalii despre preț și costuri

Prețul pe piață

Preț cerut: 138.000 €

Preț min. zonă
Preț max. zonă

76% dintre proprietățile similare ca zonă și nr. camere au prețul cerut mai mic. mai multe...

Bine de știut: prețul unei proprietăți este influențat și de alte caracteristici, cum ar fi: vechime, localizare, vecinătăți, suprafață, compartimentare, amenajări, dotări, etc. mai puțin...

Acces la informații premium după autentificare
Login Gratuit

Costuri cu achiziția

Fără credit
Credit ipotecar
Noua casă

i

Costuri adiționale mai puțin știute la achiziție: taxe notariale, comisioane etc.

Acces la informații premium după autentificare
Login Gratuit

Proprietăți similare

Apartament cu 3 camere decomandat în Gorjului
139.000 €
București, Gorjului
3 camere
63,01 mp
Etaj 4 / 10
Apartament cu 3 camere decomandat, mobilat în Gorjului
139.000 €
București, Gorjului
3 camere
63 mp
Etaj 4 / 10
Apartament cu 3 camere decomandat, mobilat în Gorjului
132.500 €
București, Gorjului
3 camere
62 mp
Etaj 3 / 10

Detalii de contact

GNM ESTATE

George Niculcea

GNM ESTATE

Abonează-te la newsletter să fii primul care primește cele mai noi recomandări de proprietăți și sfaturi de la experți.

CONTACT

Creează alertă

Salvează căutarea ca să primești pe email ultimele anunțuri publicate

Apartamente cu 2 camere de vânzare în zona Gorjului, Sector 6