2 camere Lujerului | In renovare |

124.999 €

Lujerului, București

Nr. cam.:
2
Sup. utilă:
52,43 mp
Etaj:
7 / 10
An constr.:
1978 (Finalizată)
  • • Locație aproximativă

Descriere apartament

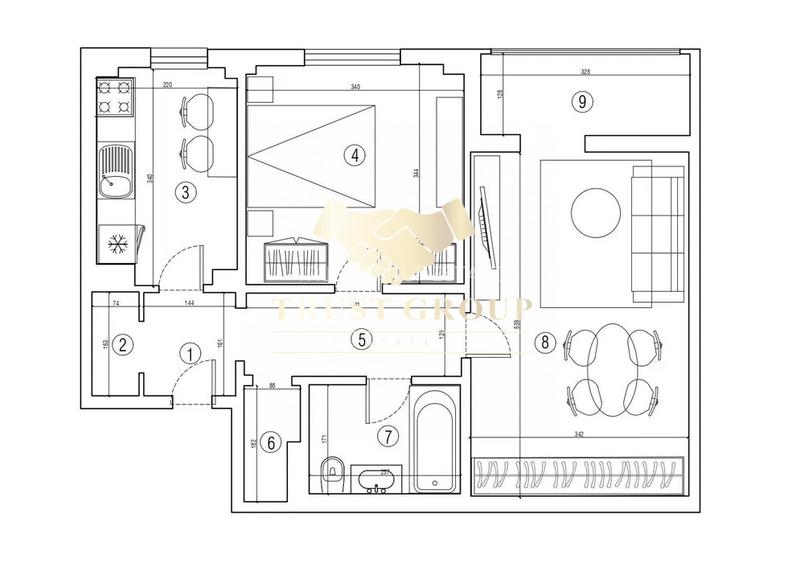
Vă propunem spre vânzare un apartament de 2 camere decomandat, cu o suprafață totală de 53mp, situat la etajul 7 al unui imobil construit în 1978, amplasat într-o zonă foarte bine conectată, in apropiere de stația de metrou Lujerului. Apartamentul se află în plin proces de renovare totală, lucrările fiind realizate pentru a oferi viitorilor proprietari o locuință modernă, confortabilă și pregătită pentru mutare imediată. Lucrările de renovare includ: Instalații electrice și sanitare complet schimbate Pereți refăcuți cu glet nou și finisaj cu lavabilă Uși interioare noi și ușă de intrare nouă Ferestre cu geam termopan Finisaje moderne – gresie, faianță și parchet Un avantaj important este faptul că viitorii proprietari își pot alege finisajele, având astfel posibilitatea de a personaliza apartamentul după propriul stil și preferințe. La finalizarea lucrărilor, locuința se va preda complet renovată, la cheie, oferind confortul unei proprietăți moderne într-un bloc reabilitat termic. Locație excelentă: Apartamentul beneficiază de acces rapid către metrou, transport public, supermarketuri, centre comerciale, restaurante și alte facilități urbane, ceea ce îl face potrivit atât pentru locuință personală, cât și pentru investiție. Imaginile prezentate sunt randări ale proiectului de design interior, menite să ilustreze modul în care va arăta apartamentul după finalizarea renovării.
Citește mai mult Citește mai puțin
Confort 1 Decomandat 1 Balcon / Terasă / Logie Calorifere Termoficare Renovat

Detalii apartament

ID anunț: XC45201G9 Copiat! 275392467 Copiat!
Actualizat în: 02 Aprilie 2026
Suprafață construită: 52.43 mp
Nr. bucătării: 1
Nr. băi: 1
Tip imobil: Bloc de apartamente
Regim înălțime: P+10E

Utilități

Utilități
Curent Apă Canalizare Gaze

Puncte de interes

Mijloace transport
bus-station
statia RATB Veteranilor: 61, 62, 136, 236, 336
Stații autobuz aprox. 150 m
metro-station
Metrorex. Stația Lujerului (M3)(1983)
Stații metrou aprox. 223 m
trolleybus-station
Statia RATB Lujerului, linia 61, 62
Stații troleibuz aprox. 454 m
tram-station
Statia Bd. Uverturii / Pasajul Lujerului, linia 41
Stații tramvai aprox. 542 m
Școală
school
Sala de sport
Școli aprox. 310 m
school
Scoala nr. 142
Școli aprox. 322 m
kindergarten
Gradinita nr.250
Gradinițe aprox. 598 m
university
Facultatea de Inginerie Electrica
Universități aprox. 1270 m
Recreere
park
Parc
Parcuri aprox. 30 m
restaurant
Casual Dining
Restaurant aprox. 82 m
supermarket
Mega Image
Supermarket aprox. 180 m
sports-ground
Teren sportiv
Terenuri sport aprox. 915 m

Detalii despre preț și costuri

Prețul pe piață

Preț cerut: 124.999 €

Preț min. zonă 56.998 €
Preț max. zonă 190.400 €

66% dintre proprietățile similare ca zonă și nr. camere au prețul cerut mai mic. mai multe...

Bine de știut: prețul unei proprietăți este influențat și de alte caracteristici, cum ar fi: vechime, localizare, vecinătăți, suprafață, compartimentare, amenajări, dotări, etc. mai puțin...

Costuri cu achiziția

Fără credit
7.197 RON
Credit ipotecar
8.841 RON
Noua casă
777 RON+ taxe notariale

i

Costuri adiționale mai puțin știute la achiziție: taxe notariale, comisioane etc.

Proprietăți similare

Apartament cu 2 camere decomandat în Lujerului
118.948 € + TVA
București, Lujerului
2 camere
60 mp
Etaj 1
Apartament cu 2 camere decomandat în Lujerului
125.000 €
București, Lujerului
2 camere
49 mp
Etaj 7
Apartament cu 3 camere decomandat în Lujerului
128.000 €
București, Lujerului
3 camere
64 mp
Etaj 6

Detalii de contact

TRUST GROUP ESTATE

Mihai Vladia Senior Consultant Imobiliar

4.63(13 review-uri)

TRUST GROUP ESTATE
PRO

Abonează-te la newsletter să fii primul care primește cele mai noi recomandări de proprietăți și sfaturi de la experți.

CONTACT

Creează alertă

Salvează căutarea ca să primești pe email ultimele anunțuri publicate

Apartamente cu 2 camere de vânzare în zona Lujerului, Sector 6