8

2 Camere Renovat Lujerului

105.000 €

Lujerului, București

Nr. cam.:
2
Sup. utilă:
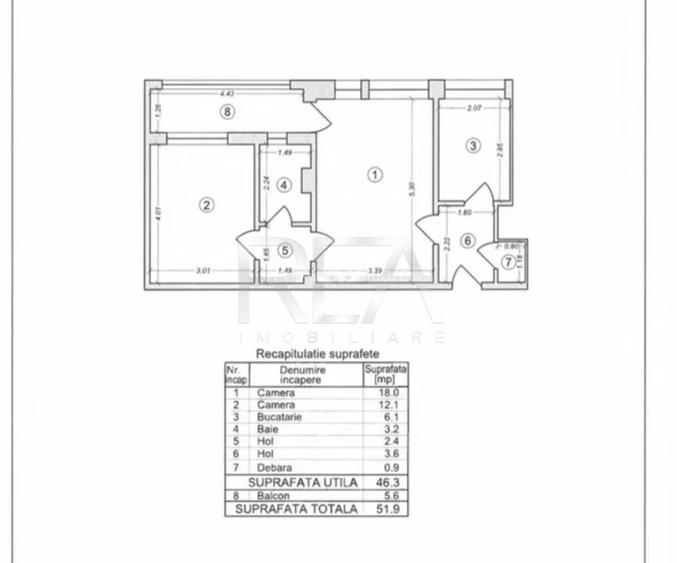
46,3 mp
Etaj:
6 / 9
An constr.:
1965 (Finalizată)
  • • Locație aproximativă

Descriere apartament

R.E.A. Imobiliare Apartament 2 camere, semidecomandat, situat în zona Lujerului, într-un imobil reabilitat termic, finalizat în 1965, la etajul 6/9, curat și liniștit, cu costuri reduse la întreținere, la 3 minute de mers pe jos de stația de metrou Lujerului, stația tramvaiului 41 și autobuzul 178 (Pasaj Lujerului), cu acces rapid către centre comerciale și puncte de interes precum Plaza România, Carrefour Supernova, Piața Veteranilor, școli și parcuri. • Apartamentul a fost renovat complet în 2025 și se vinde cu mobilier de bucătărie și electrocasnice încorporate (plită, cuptor, hotă), dressing pe holul de intrare, dressing pe holul dintre camere și mobilier de baie. • Suprafață totală de 51,9 mp: 46,3 mp utili + 5,6 mp balcon. • Compartimentare: dormitor, living, bucătărie, baie, hol, debara și balcon. • Instalație electrică și sanitară schimbate, circuite cu împământare, obiecte sanitare noi, duș walk-in, aer condiționat, tâmplărie PVC cu geam termoizolant, ușă metalică de exterior. • Geamuri mari, apartament foarte luminos, compartimentare eficientă pentru un stil de viață modern și confortabil. Acces rapid la transport public: 3 minute până la Metrou Lujerului, tramvai 41 și autobuz 178. Contactează-ne pentru detalii suplimentare și programarea unei vizionări private. Cod proprietate P10081.
Citește mai mult Citește mai puțin
Confort 1 Semidecomandat Mobilat 1 Balcon / Terasă / Logie Aer condiționat Calorifere Termoficare Renovat

Detalii apartament

ID anunț: XDKS108HL Copiat! 274830413 Copiat!
Actualizat în: 14 Mai 2026
Suprafață construită: 55.56 mp
Nr. bucătării: 1
Nr. băi: 1
Structură rezistență: Beton
Tip imobil: Bloc de apartamente
Tip tranzacție: De vânzare prin agent
Regim înălțime: P+9E
Modalitate de plată: Cash sau Credit

Utilități

Destinație
Rezidențial
Pereți
Vopsea lavabilă Faianță
Podele
Parchet Gresie
Ușă intrare
Metal
Uși interior
Lemn
Izolații termice
Exterior Interior
Ferestre cu geam termopan
PVC PVC
Contorizare
Apometre Contor căldură Contor gaz
Bucătărie
Mobilată Utilată
Electrocasnice
Mașină de spălat Frigider Aragaz TV Hotă
Facilități imobil
Interfon Lift Spații agrement
Utilități
Curent Apă Canalizare Gaze
Servicii imobil
Supraveghere video
Amenajare străzi
Asfaltate Iluminat stradal Mijloace de transport în comun
Comision
Standard

Puncte de interes

Mijloace transport
metro-station
Metrorex. Stația Lujerului (M3)(1983)
Stații metrou aprox. 56 m
bus-station
Lujerului
Stații autobuz aprox. 77 m
trolleybus-station
Statia RATB Lujerului, linia 61, 62
Stații troleibuz aprox. 274 m
tram-station
Statia Bd. Uverturii / Pasajul Lujerului, linia 41
Stații tramvai aprox. 343 m
Școală
school
Liceul Economic nr. 5 ” Costin C. Kiritescu ”
Școli aprox. 197 m
school
Sala de sport
Școli aprox. 198 m
kindergarten
Gradinita 197
Gradinițe aprox. 454 m
university
Facultatea de Inginerie Electrica
Universități aprox. 1086 m
Recreere
park
Parc
Parcuri aprox. 104 m
supermarket
Mega Image
Supermarket aprox. 107 m
restaurant
Trattoria di Viale
Restaurant aprox. 186 m
sports-ground
Teren sportiv
Terenuri sport aprox. 750 m

Istoricul prețurilor

Acces la informații premium după autentificare
Login Gratuit

Detalii despre preț și costuri

Prețul pe piață

Preț cerut: 105.000 €

Preț min. zonă
Preț max. zonă

60% dintre proprietățile similare ca zonă și nr. camere au prețul cerut mai mic. mai multe...

Bine de știut: prețul unei proprietăți este influențat și de alte caracteristici, cum ar fi: vechime, localizare, vecinătăți, suprafață, compartimentare, amenajări, dotări, etc. mai puțin...

Acces la informații premium după autentificare
Login Gratuit

Costuri cu achiziția

Fără credit
Credit ipotecar
Noua casă

i

Costuri adiționale mai puțin știute la achiziție: taxe notariale, comisioane etc.

Acces la informații premium după autentificare
Login Gratuit

Proprietăți similare

Apartament cu 2 camere semidecomandat în Lujerului
100.000 €
București, Lujerului
2 camere
50 mp
Parter
Apartament cu 2 camere decomandat, mobilat în Lujerului
114.999 €
București, Lujerului
2 camere
54 mp
Etaj 4
Apartament cu 2 camere semidecomandat, mobilat în Lujerului
105.000 €
București, Lujerului
2 camere
47 mp
Etaj 6

Detalii de contact

R.E.A. Imobiliare

Georgiana Lixandru Broker

4.83(4 review-uri)

R.E.A. Imobiliare
PRO

Abonează-te la newsletter să fii primul care primește cele mai noi recomandări de proprietăți și sfaturi de la experți.

CONTACT

Creează alertă

Salvează căutarea ca să primești pe email ultimele anunțuri publicate

Apartamente cu 2 camere de vânzare în zona Lujerului, Sector 6