Apartament 3 camere Militari Lujerului, etaj 1, decomandat, 91 mp !

169.000 €

Lujerului, București

Nr. cam.:
3
Sup. utilă:
82 mp
Etaj:
1 / 10
An constr.:
1976 (Finalizată)
  • • Comision 0%
  • • Exclusivitate
  • • Locație Verificată
  • • Locație exactă
  • • Vizionare prin apel video

Descriere apartament

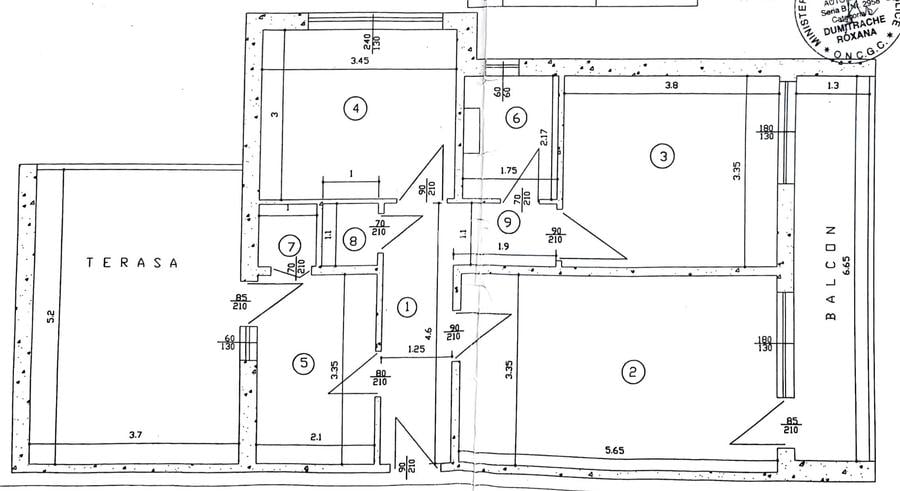
Va propunem spre vânzare un deosebit apartament de 3 camere, decomandat, situat în Militari, la 3 minute de metrou Lujerului, într-un bloc reabilitat termic (construcție 1976), la etajul 1 din 10, cu o suprafață generoasă de 91 mp, unicat în zonă. Locuința se vinde mobilată și utilată complet, fiind renovată integral cu finisaje moderne, in urmǎ cu 8 ani ! Compartimentarea este ideală pentru o familie, oferind spațiu și confort: living luminos cu acces în balcon, două dormitoare spațioase, douǎ debarale spațioase, un dressing pe hol, bucătărie extinsǎ cu terasa, complet echipată, hol de acces generos (incǎ o camerǎ)și o baie elegantă cu geam. Blocul este solid, izolat termic, având costuri reduse la întreținere și o poziție liniștită, cu acces facil către mijloace de transport, școli, magazine, bǎnci, farmacii și alte zone de interes. Proprietatea se predă “la cheie”, gata pentru mutare imediată — o oportunitate rară pentru cei care caută un apartament spațios, modern și perfect funcțional într-o zonă bine cotată.
Citește mai mult Citește mai puțin
Confort 1 Decomandat Mobilat 1 Balcon / Terasă / Logie Aer condiționat Calorifere Termoficare Renovat

Detalii apartament

ID anunț: XDN5000S2 Copiat! 275486488 Copiat!
Actualizat în: 28 Aprilie 2026
Suprafață utilă totală: 91 mp
Nr. bucătării: 1
Nr. băi: 1
Structură rezistență: Beton
Tip imobil: Bloc de apartamente
Regim înălțime: P+10E
Vizionare cu programare: Da

Utilități

Destinație
Rezidențial
Pereți
Vopsea lavabilă
Podele
Gresie Parchet
Ușă intrare
Metal
Uși interior
Lemn
Izolații termice
Exterior
Ferestre cu geam termopan
PVC
Contorizare
Apometre
Bucătărie
Mobilată Utilată
Alte spații utile
Debara
Facilități imobil
Lift Interfon
Utilități
Gaze Telefon Curent Canalizare Apă
Internet
Fibră optică
Servicii imobil
Administrare Supraveghere video
Amenajare străzi
Asfaltate Iluminat stradal Mijloace de transport în comun
Comision
0%

Vicii:

Nu are vicii !

Puncte de interes

Mijloace transport
bus-station
Statia Veteranilor, linia 236, 336, 136, N115, 106,61, 62
Stații autobuz aprox. 52 m
metro-station
Metrorex. Stația Lujerului (M3)(1983)
Stații metrou aprox. 305 m
trolleybus-station
statia Piața Gorjului: 61, 62
Stații troleibuz aprox. 559 m
tram-station
Statia Bd. Uverturii / Pasajul Lujerului, linia 41
Stații tramvai aprox. 590 m
Școală
school
Scoala nr. 142
Școli aprox. 227 m
school
Scoala cu clasele 1-8 nr. 142
Școli aprox. 251 m
kindergarten
Gradinita nr.250
Gradinițe aprox. 484 m
university
Facultatea de Inginerie Electrica
Universități aprox. 1409 m
Recreere
supermarket
Carrefour Market - Veteranilor
Supermarket aprox. 82 m
park
Parc
Parcuri aprox. 113 m
restaurant
Casual Dining
Restaurant aprox. 142 m
sports-ground
Teren sportiv
Terenuri sport aprox. 1077 m

Detalii despre preț și costuri

Prețul pe piață

Preț cerut: 169.000 €

Preț min. zonă
Preț max. zonă

53% dintre proprietățile similare ca zonă și nr. camere au prețul cerut mai mic. mai multe...

Bine de știut: prețul unei proprietăți este influențat și de alte caracteristici, cum ar fi: vechime, localizare, vecinătăți, suprafață, compartimentare, amenajări, dotări, etc. mai puțin...

Insight premium disponibil după login

Costuri cu achiziția

Fără credit
Credit ipotecar
Noua casă

i

Costuri adiționale mai puțin știute la achiziție: taxe notariale, comisioane etc.

Insight premium disponibil după login

Proprietăți similare

Apartament cu 2 camere decomandat, mobilat în Lujerului
169.999 €
București, Lujerului
2 camere
56 mp
Etaj 11
Apartament cu 2 camere decomandat, mobilat în Lujerului
178.000 €
București, Lujerului
2 camere
51,31 mp
Etaj 8
Apartament cu 2 camere decomandat în Lujerului
178.000 €
București, Lujerului
2 camere
64 mp
Etaj 8 / 11

Detalii de contact

TNT Imob

Valentin Negoita Administrator

5.00(5 review-uri)

TNT Imob
PRO

Abonează-te la newsletter să fii primul care primește cele mai noi recomandări de proprietăți și sfaturi de la experți.

CONTACT

Creează alertă

Salvează căutarea ca să primești pe email ultimele anunțuri publicate

Apartamente cu 3 camere de vânzare în zona Lujerului, Sector 6