Apartament 2 Camere de Vanzare Exigent Plaza Faza 5

175.000 €

Militari, București

Nr. cam.:
2
Sup. utilă:
59,6 mp
Etaj:
11
An constr.:
2024
  • • Locație exactă

Descriere apartament

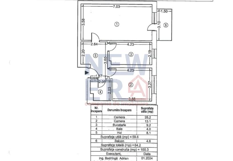
Va propunem spre vanzare un apartament 2 camere Faza 5 in Exigent Plaza Residence, o solutie excelenta pentru cei care cauta o locuinta confortabila si linistita, dar si o pozitionare accesibila catre diverse facilitati. Blocul dispune de paza, supraveghere video, bariera de acces. Apartamentul este situat la et. 11 din 11 etaje. Are o suprafata utila totala de aprox. 60 mp, este decomandat, fapt ce asigura posibilitatea crearii unui spatiu functional si placut. Apartamentul dispune de centrala proprie Viessmann, termopane tripan Salamander, interfon, usa de acces metalica prevazuta cu sistem antiefractie. Se poate achizitiona loc de parcare subteran si boxa la subsol. Ansamblul rezidential se afla la cateva minute acces pietonal de AFI Palace Cotroceni, Plaza Romania, Metrou Lujerului (M3), precum si metroul Tudor Vladimirescu (M5). Aceast apartament este potrivit si pentru o investitie personala. Va asteptam la vizionare!
Citește mai mult Citește mai puțin
Confort 1 Decomandat Mobilat Mobilat 1 Balcon / Terasă / Logie Curte comună Aer condiționat Centrală proprie

Detalii apartament

ID anunț: XETV1008P Copiat! 266927263 Copiat!
Actualizat în: 30 Ianuarie 2026
Suprafață construită: 100.3 mp
Nr. bucătării: 1
Nr. băi: 1
Structură rezistență: Beton
Tip imobil: Bloc de apartamente
Regim înălțime: P+11E

Utilități

Destinație
Rezidențial
Pereți
Vopsea lavabilă Faianță
Podele
Parchet Gresie
Ușă intrare
Metal
Uși interior
Celulare
Ferestre cu geam termopan
PVC
Contorizare
Apometre Contor căldură Contor gaz
Bucătărie
Mobilată
Facilități imobil
Interfon Lift
Utilități
Curent Apă Canalizare Gaze
Amenajare străzi
Asfaltate Iluminat stradal Mijloace de transport în comun
Comision
standard

Vecinătăți:

Plaza Mall, AFI Cotroceni

Disponibilitate proprietate:

imediat

Puncte de interes

Mijloace transport
tram-station
Brasov
Stații tramvai aprox. 381 m
trolleybus-station
Statia RATB Lujerului, linia 61, 62
Stații troleibuz aprox. 387 m
bus-station
Statia Lujerului, linia 236, 336, 136, N115, 106
Stații autobuz aprox. 427 m
train-station
Gara Bucuresti-Cotroceni
Stații tren aprox. 430 m
Școală
kindergarten
Gradinita de copii nr.217 Fluturasul
Gradinițe aprox. 502 m
kindergarten
Gradinita 272
Gradinițe aprox. 524 m
school
Liceul Grigore Moisil
Școli aprox. 595 m
university
Facultatea de Inginerie Electrica
Universități aprox. 985 m
Recreere
supermarket
Plaza Romania
Supermarket aprox. 201 m
park
Spatiu verde
Parcuri aprox. 218 m
sports-ground
Teren sportiv
Terenuri sport aprox. 597 m
public-square
Intersectia Leu
Piețe publice aprox. 1895 m

Detalii despre preț și costuri

Prețul pe piață

Preț cerut: 175.000 €

Preț min. zonă 56.998 €
Preț max. zonă 190.400 €

90% dintre proprietățile similare ca zonă și nr. camere au prețul cerut mai mic. mai multe...

Bine de știut: prețul unei proprietăți este influențat și de alte caracteristici, cum ar fi: vechime, localizare, vecinătăți, suprafață, compartimentare, amenajări, dotări, etc. mai puțin...

Costuri cu achiziția

Fără credit
8.908 RON
Credit ipotecar
10.763 RON
Noua casă
1.031 RON+ taxe notariale

i

Costuri adiționale mai puțin știute la achiziție: taxe notariale, comisioane etc.

Proprietăți recomandate

Detalii de contact

NEW ERA COMPANIA DE IMOBILIARE

Oxana Mihailov Consultant imobiliar

5.00(3 review-uri)

NEW ERA COMPANIA DE IMOBILIARE
PRO

Abonează-te la newsletter să fii primul care primește cele mai noi recomandări de proprietăți și sfaturi de la experți.

CONTACT

Creează alertă

Salvează căutarea ca să primești pe email ultimele anunțuri publicate

Apartamente noi cu 2 camere de vânzare în zona Militari, Sector 6