Apartament 2 camere decomandat de vanzare Rotar Park 1

149.900 €

Păcii, București

Nr. cam.:
2
Sup. utilă:
54 mp
Etaj:
11 / 11
An constr.:
2019 (Finalizată)
  • • Comision 0%
  • • Locație exactă

Descriere apartament

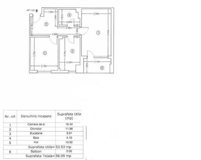
Ofer spre vanzare un apartament cu 2 camere decomandat, situat in complexul rezidential "Rotar Park Residence 1". Locuinta are o suprafata de 59 mp compusa din: cameră de zi – 18,34 m.p., dormitor – 11,96 m.p., bucătărie – 8,61 m.p., baie – 4,10 m.p., hol – 10,92 m.p. și balcon – 5,06 m.p., si se afla la etajul 11 al unui bloc cu 11 etaje, finalizat la sfarsitul anului 2019. Apartamentul se vinde complet mobilat si utilat complet. Este dotat cu centrala proprie prin condensare,aragaz, hota, masina de spalat rufe, frigider, televizore led si aer conditionat. Complexul dispune de paza 24/7, intrare pietonala pe baza de cartela, camere de supraveghere, parc cu locuri de joaca pentru copii, supermarket, restaurant, clinica stomatologica, farmacie, sala fitness. In imediata apropiere a imobilului, la doar 200m este gura de metrou Pacii, si statia de RATB 61,62,136,137,138,178 si 236. Foarte aproape de complex se afla magazinele Kaufland, Lidl si Mega Image, putandu-se ajunge pe jos.
Citește mai mult Citește mai puțin
Confort 1 Decomandat 1 Balcon

Detalii apartament

ID anunț: X98M0004D Copiat! 274212981 Copiat!
Actualizat în: 16 Februarie 2026
Suprafață utilă totală: 59 mp
Nr. bucătării: 1
Nr. băi: 1
Structură rezistență: Beton
Tip imobil: Bloc de apartamente
Regim înălțime: P+11E

Utilități

Destinație
Rezidențial
Amenajare străzi
Asfaltate Betonate
Comision
0%

Certificat energetic:

Clasa energetică: A

Puncte de interes

Mijloace transport
trolleybus-station
Statia Imprimeria nationala, linia 61,62
Stații troleibuz aprox. 87 m
bus-station
Statia Imprimeria Nationala, linia 137, 178, 236, 138, N116,
Stații autobuz aprox. 101 m
metro-station
Metrorex. Stația Păcii (M3).
Stații metrou aprox. 278 m
tram-station
Cesarom
Stații tramvai aprox. 295 m
Școală
school
Liceul Tehnologic Petru Poni
Școli aprox. 773 m
school
Grupul Școlar Industrial "Petru Poni" (nr. 7).
Școli aprox. 799 m
kindergarten
Gradinita de copii nr 195 "Prichindel"
Gradinițe aprox. 1000 m
university
Colegiu Penticostal
Universități aprox. 1959 m
Recreere
park
Parc
Parcuri aprox. 81 m
sports-ground
Teren sportiv
Terenuri sport aprox. 434 m
supermarket
Lidl
Supermarket aprox. 584 m
mall
Militari Shopping City
Mall aprox. 1413 m

Detalii despre preț și costuri

Prețul pe piață

Preț cerut: 149.900 €

Preț min. zonă 56.998 €
Preț max. zonă 190.400 €

83% dintre proprietățile similare ca zonă și nr. camere au prețul cerut mai mic. mai multe...

Bine de știut: prețul unei proprietăți este influențat și de alte caracteristici, cum ar fi: vechime, localizare, vecinătăți, suprafață, compartimentare, amenajări, dotări, etc. mai puțin...

Costuri cu achiziția

Fără credit
8.049 RON
Credit ipotecar
9.798 RON
Noua casă
904 RON+ taxe notariale

i

Costuri adiționale mai puțin știute la achiziție: taxe notariale, comisioane etc.

Proprietăți similare

Apartament cu 3 camere decomandat în Păcii
140.000 €
București, Păcii
3 camere
73,57 mp
Etaj 7
Apartament cu 2 camere decomandat, mobilat în Păcii
139.900 €
București, Păcii
2 camere
51,3 mp
Etaj 6
Apartament cu 3 camere, mobilat în Păcii
159.000 €
București, Păcii
3 camere
76 mp
Etaj 1

Detalii de contact

Abonează-te la newsletter să fii primul care primește cele mai noi recomandări de proprietăți și sfaturi de la experți.

CONTACT

Creează alertă

Salvează căutarea ca să primești pe email ultimele anunțuri publicate

Apartamente cu 2 camere de vânzare în zona Păcii, Sector 6