11

Apartament 5 camere Drumul Valea Doftanei, 10 min metrou Valea Ialomitei

233.000 €

Valea Ialomiței, București

Nr. cam.:
5
Sup. utilă:
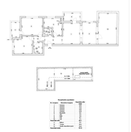
162 mp
Etaj:
4 / 4
An constr.:
2008 (Finalizată)
  • • Comision 0%
  • • Locație exactă

Descriere apartament

Apartamentul este situat in cartierul Constantin Brancusi. De la iesirea din imobil ai acces la metrou Valea Ialomitei la 10 minute distanta. Imobilul este situat la cateva minute de mers pe jos pana la iesirea catre strazile principale Valea Ialomitei si Valea Oltului Apartamentul este situat intr-un imobil cu 4 etaje +pod, construit in anul 2008. Proprietatea se afla la etajul 4. Suprafata utila a imobilului este de 162 mp. Apartamentul se vinde mobilat si utilzat complet. Facilitati in zona: Parcul Constantin Brâncuși – ~2 minute Stația Constantin Brâncuși (metrou M5) – ~7 minute Stația Valea Ialomiței (metrou M5) – ~9–10 minute Kaufland București-Brâncuși – ~5–6 minute Lidl Valea Oltului – ~7–8 minute Best Fitness Gym – ~4–5 minute Grădinița Nr. 208 – ~3–4 minute
Citește mai mult Citește mai puțin
Confort 1 Decomandat Mobilat 1 Balcon / Terasă / Logie Aer condiționat Centrală proprie Beci Bine întreținut (Bună)

Detalii apartament

ID anunț: XAJN100D8 Copiat! 274945555 Copiat!
Actualizat în: 04 Martie 2026
Nr. bucătării: 1
Nr. băi: 2
Tip imobil: Bloc de apartamente
Tip tranzacție: De vânzare prin agent
Regim înălțime: P+4E
Nr. terase: 1
Modalitate de plată: Cash sau Credit

Utilități

Destinație
Rezidențial
Pereți
Vopsea lavabilă Faianță
Podele
Parchet Gresie
Ușă intrare
Metal
Uși interior
Lemn
Ferestre cu geam termopan
PVC
Contorizare
Apometre Contor căldură Contor gaz
Bucătărie
Mobilată Utilată
Alte spații utile
Terasă
Facilități imobil
Interfon
Utilități
Curent Apă Canalizare Gaze
Amenajare străzi
Iluminat stradal Mijloace de transport în comun
Comision
0%

Puncte de interes

Mijloace transport
bus-station
Cartier Constantin Brancusi
Stații autobuz aprox. 383 m
metro-station
Valea Ialomiței (M5)
Stații metrou aprox. 624 m
tram-station
Radox
Stații tramvai aprox. 661 m
trolleybus-station
Depoul de troleibuze Bujoreni
Stații troleibuz aprox. 926 m
Școală
school
Scoala Genesis
Școli aprox. 303 m
kindergarten
Gradinita cu program prelungit Butterfly
Gradinițe aprox. 325 m
kindergarten
Gradinita de copii nr.208
Gradinițe aprox. 512 m
school
scoala 172 :Sfantul Andrei
Școli aprox. 673 m
Recreere
park
Parcul Constantin Brâncuși
Parcuri aprox. 133 m
supermarket
Lidl
Supermarket aprox. 439 m
restaurant
Night Pizza
Restaurant aprox. 459 m
sports-ground
Teren sportiv
Terenuri sport aprox. 1376 m

Detalii despre preț și costuri

Costuri cu achiziția

Fără credit
Credit ipotecar
Noua casă

i

Costuri adiționale mai puțin știute la achiziție: taxe notariale, comisioane etc.

Acces la informații premium după autentificare
Login Gratuit

Proprietăți similare

Apartament cu 3 camere nedecomandat în Drumul Taberei
252.648 €
București, Drumul Taberei
3 camere
84,62 mp
Etaj 11 / 11
Apartament cu 3 camere, mobilat în Crângași
249.500 €
București, Crângași
3 camere
81 mp
Etaj 6
Apartament cu 3 camere decomandat în Lujerului
236.990 €
București, Lujerului
3 camere
65 mp
Etaj 1 / 3

Detalii de contact

Abonează-te la newsletter să fii primul care primește cele mai noi recomandări de proprietăți și sfaturi de la experți.

CONTACT

Creează alertă

Salvează căutarea ca să primești pe email ultimele anunțuri publicate

Apartamente cu 4+ camere de vânzare în zona Valea Ialomiței, Sector 6