Apartament cu 2 camere și grădină în zona Doamna Stanca

120.000 €

Șelimbăr, Județul Sibiu

Nr. cam.:
2
Sup. utilă:
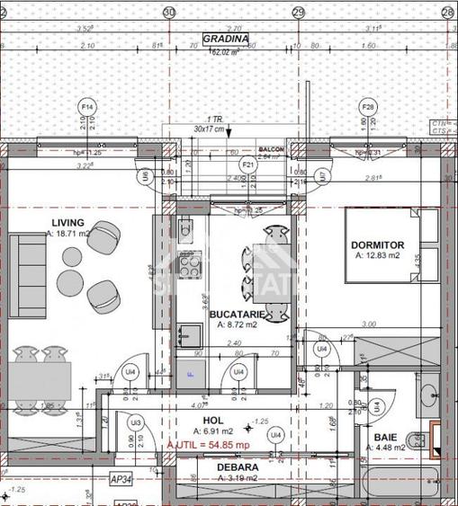
54,85 mp
Sup. teren:
53 mp
Etaj:
Parter / 3
  • • Locație aproximativă

Descriere apartament

🏡 Apartament cu 2 camere și grădină – confort și funcționalitate în zona Doamna Stanca 🌿 Îți prezentăm un apartament situat la parter, perfect pentru cei care își doresc un spațiu modern, bine compartimentat și cu acces direct la grădină, într-o zonă în continuă dezvoltare – Doamna Stanca. 📐 Suprafață utilă: 54,85 mp 🌳 Grădină: 53 mp – ideală pentru relaxare, grătar sau amenajări personalizate 🚗 Loc de parcare intabulat separat 🔹 Living luminos 🔹 Bucătărie închisă – funcțională și bine separată 🔹 Dormitor confortabil 🔹 Baie spațioasă 🔹 Debara – spațiu util pentru depozitare interioară 💡 Dotări moderne: ✔️ Încălzire în pardoseală ✔️ Geamuri termopan cu 3 foi de sticlă – izolație excelentă ✔️ Centrală termică în condensare – eficiență ridicată și consum redus 📍Apartamentul este situat într-un ansamblu nou, într-o zonă liniștită și accesibilă, potrivită atât pentru locuit, cât și pentru investiție. 🔑 Programează o vizionare și transformă această locuință în „acasă”! 🟡 SibiuEstate – Casa Ta, Povestea Noastră
Citește mai mult Citește mai puțin
Confort 1 Decomandat 1 Balcon / Terasă / Logie Centrală proprie Încălzire prin pardoseală 1 Parcare

Detalii apartament

ID anunț: XFOU0004A Copiat! 273245273 Copiat!
Actualizat în: 01 Aprilie 2026
Suprafață construită: 70 mp
Nr. bucătării: 1
Nr. băi: 1
An construcție: 2025 (În construcție)
Structură rezistență: Beton
Tip imobil: Bloc de apartamente
Regim înălțime: P+3E

Utilități

Destinație
Rezidențial
Ușă intrare
Metal
Izolații termice
Exterior
Ferestre cu geam termopan
PVC
Contorizare
Apometre Contor gaz
Facilități imobil
Interfon
Utilități
Curent Apă Canalizare Gaze
Internet
Cablu
Amenajare străzi
Asfaltate

Certificat energetic:

Clasa energetică: B

Vecinătăți:

Scoli, Zone verzi, Farmacii, Restaurante, Transport, Zone comerciale, Sali de sport, Cafenele

Disponibilitate proprietate:

data_properties.property_availability.Imediat

Puncte de interes

Mijloace transport
bus-station
Interex
Stații autobuz aprox. 538 m
bus-station
Piata Rahova 1
Stații autobuz aprox. 640 m
bus-station
Piata Rahova 3
Stații autobuz aprox. 750 m
bus-station
Piata Rahova 2
Stații autobuz aprox. 806 m
Școală
school
Gradinita cu program prelungit nr. 43
Școli aprox. 630 m
school
Scoala Generala Nr. 9
Școli aprox. 733 m
kindergarten
Gradinita Nr. 42
Gradinițe aprox. 1081 m
university
Facultatea de Stiinte Agroalimentare
Universități aprox. 1526 m
Recreere
supermarket
InterEx
Supermarket aprox. 477 m
sports-ground
Teren sportiv
Terenuri sport aprox. 613 m
park
Parc
Parcuri aprox. 881 m
restaurant
Pizzeria Insieme
Restaurant aprox. 947 m

Detalii despre preț și costuri

Prețul pe piață

Preț cerut: 120.000 €

Preț min. zonă 76.000 €
Preț max. zonă 135.000 €

81% dintre proprietățile similare ca zonă și nr. camere au prețul cerut mai mic. mai multe...

Bine de știut: prețul unei proprietăți este influențat și de alte caracteristici, cum ar fi: vechime, localizare, vecinătăți, suprafață, compartimentare, amenajări, dotări, etc. mai puțin...

Costuri cu achiziția

Fără credit
7.025 RON
Credit ipotecar
8.647 RON
Noua casă
752 RON+ taxe notariale

i

Costuri adiționale mai puțin știute la achiziție: taxe notariale, comisioane etc.

Proprietăți recomandate

Detalii de contact

Sibiu Estate

Lucian Boita Consilier Imobiliar

Sibiu Estate
PRO

Abonează-te la newsletter să fii primul care primește cele mai noi recomandări de proprietăți și sfaturi de la experți.

CONTACT

Creează alertă

Salvează căutarea ca să primești pe email ultimele anunțuri publicate

Apartamente cu 2 camere de vânzare în Șelimbăr, Județul Sibiu