Apartament cu 2 camere, zona Doamna Stanca

111.000 €

Șelimbăr, Județul Sibiu

Nr. cam.:
2
Sup. utilă:
55,5 mp
Etaj:
1 / 3
An constr.:
2025 (În construcție)
  • • Locație aproximativă

Descriere apartament

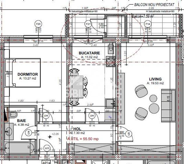
🏡 Apartament cu 2 camere – confort și compartimentare excelentă în zona Doamna Stanca ✨ Îți prezentăm un apartament modern și bine compartimentat, ideal pentru cei care caută confort, funcționalitate și calitate, într-o zonă aflată în plină dezvoltare – Doamna Stanca. 📐 Suprafață utilă: 55,50 mp 🌿 Balcon: 7,59 mp – include un spațiu de depozitare închis, perfect pentru organizare 🚗 Loc de parcare intabulat separat 🔹 Living spațios – 19,53 mp 🔹 Bucătărie închisă – 11,02 mp 🔹 Dormitor confortabil – 13,27 mp 🔹 Baie – 4,38 mp 🔹 Balcon generos – spațiu ideal pentru relaxare + depozitare 💡 Apartamentul dispune de: ✔️ Încălzire în pardoseală ✔️ Geamuri termopan cu 3 foi de sticlă – izolație termică și fonică superioară ✔️ Centrală termică în condensare – eficiență ridicată și consum redus 📍Situat într-o zonă liniștită și bine conectată la facilități urbane, apartamentul este ideal atât pentru locuit, cât și pentru investiție. 🔑 Programează o vizionare și vino să descoperi noua ta locuință! 🟡 SibiuEstate – Casa Ta, Povestea Noastră
Citește mai mult Citește mai puțin
Confort 1 Decomandat 1 Balcon / Terasă / Logie Centrală proprie Încălzire prin pardoseală 1 Parcare

Detalii apartament

ID anunț: XFOU0004B Copiat! 273245332 Copiat!
Actualizat în: 16 Decembrie 2025
Suprafață utilă totală: 63.09 mp
Suprafață construită: 70 mp
Nr. bucătării: 1
Nr. băi: 1
Structură rezistență: Beton
Tip imobil: Bloc de apartamente
Regim înălțime: P+3E

Utilități

Destinație
Rezidențial
Ușă intrare
Metal
Izolații termice
Exterior
Ferestre cu geam termopan
PVC
Contorizare
Apometre Contor gaz
Facilități imobil
Interfon
Utilități
Curent Apă Canalizare CATV Gaze
Internet
Cablu
Amenajare străzi
Asfaltate

Certificat energetic:

Clasa energetică: B

Vecinătăți:

Scoli, Zone verzi, Farmacii, Restaurante, Transport, Zone comerciale, Sali de sport, Cafenele

Disponibilitate proprietate:

data_properties.property_availability.Imediat

Puncte de interes

Mijloace transport
bus-station
Interex
Stații autobuz aprox. 499 m
bus-station
Piata Rahova 1
Stații autobuz aprox. 540 m
bus-station
Piata Rahova 3
Stații autobuz aprox. 647 m
bus-station
Piata Rahova 2
Stații autobuz aprox. 695 m
Școală
school
Gradinita cu program prelungit nr. 43
Școli aprox. 636 m
school
Scoala Generala Nr. 9
Școli aprox. 656 m
kindergarten
Gradinita Nr. 42
Gradinițe aprox. 1017 m
university
Facultatea de Stiinte Agroalimentare
Universități aprox. 1447 m
Recreere
supermarket
InterEx
Supermarket aprox. 483 m
sports-ground
Teren sportiv
Terenuri sport aprox. 644 m
restaurant
Pizzeria Insieme
Restaurant aprox. 877 m
park
Kinderland
Parcuri aprox. 885 m

Detalii despre preț și costuri

Prețul pe piață

Preț cerut: 111.000 €

Preț min. zonă 76.000 €
Preț max. zonă 135.000 €

53% dintre proprietățile similare ca zonă și nr. camere au prețul cerut mai mic. mai multe...

Bine de știut: prețul unei proprietăți este influențat și de alte caracteristici, cum ar fi: vechime, localizare, vecinătăți, suprafață, compartimentare, amenajări, dotări, etc. mai puțin...

Costuri cu achiziția

Fără credit
6.631 RON
Credit ipotecar
8.215 RON
Noua casă
706 RON+ taxe notariale

i

Costuri adiționale mai puțin știute la achiziție: taxe notariale, comisioane etc.

Proprietăți recomandate

Detalii de contact

Sibiu Estate

Lucian Boita Consilier Imobiliar

Sibiu Estate
PRO

Abonează-te la newsletter să fii primul care primește cele mai noi recomandări de proprietăți și sfaturi de la experți.

CONTACT

Creează alertă

Salvează căutarea ca să primești pe email ultimele anunțuri publicate

Apartamente cu 2 camere de vânzare în Șelimbăr, Județul Sibiu