Apartament 2 camere 54 mp etaj 2 cu balcon si pod zona Selimbar SIBIU

100.200 €

Șelimbăr, Județul Sibiu

Nr. cam.:
2
Sup. utilă:
54,39 mp
Etaj:
2 / 2
An constr.:
2025 (În construcție)
  • • Locație aproximativă

Descriere apartament

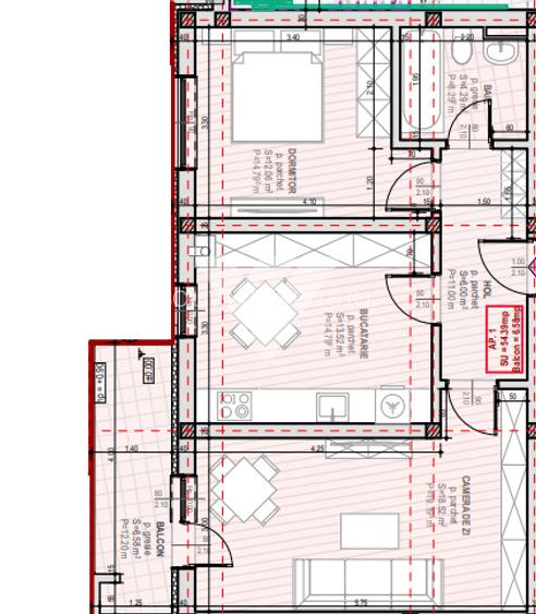
Acest model de apartament este disponibil la mai multe etaje. Contactati agentul pentru toate informatiile. Va propunem spre achizitie un apartament cu 2 camere, luminos si bine compartimentat, situat intr-un cartier nou din Șelimbar, zona strada Triajului – o zona aerisita, cu spatii verzi, locuri de parcare amenajate si acces rapid catre oras. Locuinta se afla la etajul 2 al unui imobil cu 2 nivele expus spre soare si detine o suprafata utila de 54.39 mp la care se adauga un balcon de 6.58 mp si pod propriu, compusa astfel: - hol de acces; - living; - bucatarie separata - dormitor generos - baie; - balcon deschis de 6.58 mp - pod propriu, perfect pentru spatiu de depozitare sau amenajare ulterioara In constructia imobilelor se folosesc doar materiale de inalta calitate, acestea vor fi predate la exterior finisate la cheie cu strazi asfaltate si iluminate, locuri de parcare amenajate, loc de joaca pentru copii, imobile izolate termic, balcoane placate cu gresie, casa scarii la cheie cu balustrada de inox, interfon la intrare. Apartamentul se preda semifinisat LA GRI cu: - Usa metalica la intrare - Pereti tencuiti - Centrala termica proprie - Incalzire prin pardoseala (cu garantie) - Geamuri termopan, cu 3 foi de sticla - Instalatii si utilitati functionale si puse pe pozitii: apa-canal, gaz, curent, fibra optica Optional se poate finisa si LA CHEIE direct de catre dezvoltator cu: - Gresie, faianta, parchet - Usi de interior - Obiecte sanitare - Prize si intrerupatoare Pret: 100.200 euro Informatii certificat energetic conform proiect: a) clasa energetica B; b) consumul total specific de energie primara: min 125.00 – max 201.00 kWh/m2an; c) indicele de emisii echivalent CO_2: min 25.63 – max 41.21 kgCO2/m2an; d) consum total specific de energie din surse regenerabile: 0 kWh/m2an. Visul e a tine, cheia e la noi! Suna chiar acum la numar de telefon afisat si programeaza o vizonare !
Citește mai mult Citește mai puțin
Confort 1 Decomandat 1 Balcon Centrală proprie 1 Parcare

Detalii apartament

ID anunț: XBHL10K9J Copiat! 274982436 Copiat!
Actualizat în: 16 Februarie 2026
Suprafață construită: 65.27 mp
Nr. bucătării: 1
Nr. băi: 1
Structură rezistență: Cărămidă
Tip imobil: Bloc de apartamente
Regim înălțime: P+2E

Utilități

Destinație
Rezidențial
Contorizare
Apometre Contor gaz
Dotări imobil
Interfon
Utilități
Curent Apă Canalizare Gaze
Ușă intrare
Metal
Izolații termice
Exterior
Amenajare străzi
Asfaltate Iluminat stradal
Comision
2.4%+TVA

Certificat energetic:

Clasa energetică: A

Disponibilitate proprietate:

imediat

Puncte de interes

Mijloace transport
bus-station
Statia Sibiu Grupa Selimbar
Stații autobuz aprox. 685 m
bus-station
Sibiu-Triaj (Sud)
Stații autobuz aprox. 1570 m
bus-station
Shopping City
Stații autobuz aprox. 1973 m
Recreere
cafe
Coffe House
Cafenea aprox. 1873 m
restaurant
Hermania Bistro
Restaurant aprox. 1880 m
supermarket
Shopping City Sibiu
Supermarket aprox. 1930 m
sports-ground
Teren sportiv
Terenuri sport aprox. 1952 m

Detalii despre preț și costuri

Prețul pe piață

Preț cerut: 100.200 €

Preț min. zonă 76.000 €
Preț max. zonă 135.000 €

71% dintre proprietățile similare ca zonă și nr. camere au prețul cerut mai mare. mai multe...

Bine de știut: prețul unei proprietăți este influențat și de alte caracteristici, cum ar fi: vechime, localizare, vecinătăți, suprafață, compartimentare, amenajări, dotări, etc. mai puțin...

Costuri cu achiziția

Fără credit
6.119 RON
Credit ipotecar
7.657 RON
Noua casă
651 RON+ taxe notariale

i

Costuri adiționale mai puțin știute la achiziție: taxe notariale, comisioane etc.

Proprietăți similare

Apartament cu 3 camere decomandat în Șelimbăr
92.000 €
Județul Sibiu, Șelimbăr
3 camere
63 mp
Etaj 1
Apartament cu 2 camere decomandat, mobilat în Șelimbăr
99.800 €
Județul Sibiu, Șelimbăr
2 camere
43 mp
Etaj 2
Apartament cu 2 camere decomandat în Șelimbăr
110.000 €
Județul Sibiu, Șelimbăr
2 camere
54 mp
Etaj 1

Detalii de contact

SC  LIVINGVISION S.R.L

Razvan Bolboaca Director General

SC LIVINGVISION S.R.L
PRO

Abonează-te la newsletter să fii primul care primește cele mai noi recomandări de proprietăți și sfaturi de la experți.

CONTACT

Creează alertă

Salvează căutarea ca să primești pe email ultimele anunțuri publicate

Apartamente cu 2 camere de vânzare în Șelimbăr, Județul Sibiu