Apartament 2 camere balcon si pod etaj 2 Selimbar Sibiu

74.118 €

Șelimbăr, Județul Sibiu

Nr. cam.:
2
Sup. utilă:
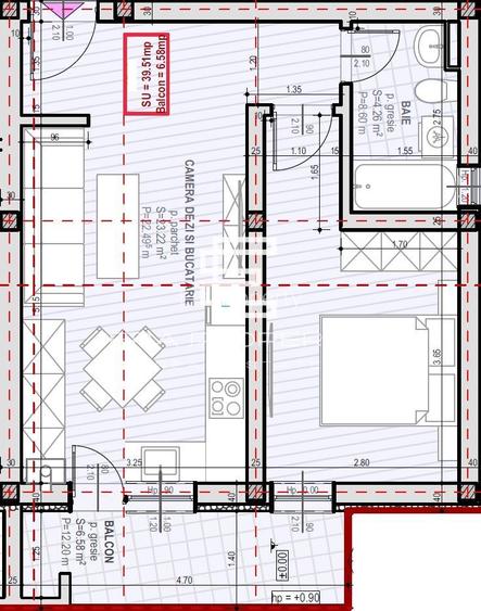
39,51 mp
Etaj:
2 / 2
An constr.:
2025 (În construcție)
  • • Comision 0%
  • • Locație aproximativă

Descriere apartament

Apartament 2 camere balcon si pod etaj 2 Selimbar Sibiu Descoperă confortul unui apartament modern, situat la etajul 2 al unui bloc nou (regim de înălțime P+2E), amplasat într-o zonă liniștită, verde și bine conectată din Șelimbăr – în apropierea centrelor comerciale, a școlilor, grădinițelor și mijloacelor de transport în comun. -Suprafață utilă: 39.51 mp la care se adauga un balcon in suprafata de 6.58 mp si un pod inalt -Compartimentare practică: hol, living cu bucatarie open space, 1 dormitor , baie și balcon de 6.58 mp, debara.â, pod propriu inalt, perfect pentru depozitare sau amenajare uletioara. -Loc de parcare inclus în preț - Dotări și finisaje: Construcție nouă, cu materiale de calitate superioară Izolație exterioară premium Tâmplărie PVC cu geam tripan (3 foi de sticlă, 7 camere) Centrală termică proprie Spații verzi amenajate, iluminat stradal. -Acces facil către Sibiu și principalele artere din zonă -Avantaje: * Zonă liniștită, aerisită și sigură * Ideal pentru locuință proprie sau investiție * Compartimentare modernă, funcțională * Acces rapid către centrul Sibiului și Promenada Mall ***Fotografiile au caracter informativ și sunt realizate într-un apartament similar din cadrul ansamblului rezidențial. -Predare: Primăvara 2026 Pret : 74118 euro - la stadiul de GRI 82020 euro- la stadiul de CHEIE Sună-ne acum pentru mai multe detalii sau pentru a programa o vizionare!
Citește mai mult Citește mai puțin
Confort 1 Semidecomandat 1 Balcon / Terasă / Logie 1 Parcare

Detalii apartament

ID anunț: XEP4100CM Copiat! 275056927 Copiat!
Actualizat în: 03 Martie 2026
Suprafață construită: 46 mp
Nr. bucătării: 1
Nr. băi: 1
Structură rezistență: Cărămidă
Tip imobil: Bloc de apartamente
Regim înălțime: P+2E

Utilități

Alte spații utile
Debara
Utilități
Curent Apă Canalizare CATV Gaze Telefon
Internet
Cablu
Amenajare străzi
Iluminat stradal Mijloace de transport în comun Asfaltate
Comision
0%

Disponibilitate proprietate:

Imediat

Puncte de interes

Mijloace transport
bus-station
Statia Sibiu Grupa Selimbar
Stații autobuz aprox. 774 m
bus-station
Sibiu-Triaj (Sud)
Stații autobuz aprox. 1674 m
Recreere
cafe
Coffe House
Cafenea aprox. 1889 m
restaurant
Hermania Bistro
Restaurant aprox. 1896 m
bar
Business Cafe
Bar aprox. 1908 m
supermarket
Shopping City Sibiu
Supermarket aprox. 1950 m

Detalii despre preț și costuri

Prețul pe piață

Preț cerut: 74.118 €

Preț min. zonă 76.000 €
Preț max. zonă 135.000 €

i

Proprietate cu prețul cerut în afara intervalului mai multe...

Posibile explicații pentru faptul că prețul proprietății este sub cel minim: imobil cu risc seismic, imobil cu probleme structurale, imobil demolabil, poziționare în altă zonă
Bine de știut: prețul unei proprietăți este influențat și de alte caracteristici, cum ar fi: vechime, localizare, vecinătăți, suprafață, compartimentare, amenajări, dotări, etc.

Costuri cu achiziția

Fără credit
4.894 RON
Credit ipotecar
6.234 RON
Noua casă
518 RON+ taxe notariale

i

Costuri adiționale mai puțin știute la achiziție: taxe notariale, comisioane etc.

Proprietăți recomandate

Detalii de contact

Era Property

Anamaria Vulcu Broker imobiliar

Era Property
PRO

Abonează-te la newsletter să fii primul care primește cele mai noi recomandări de proprietăți și sfaturi de la experți.

CONTACT

Creează alertă

Salvează căutarea ca să primești pe email ultimele anunțuri publicate

Apartamente cu 2 camere de vânzare în Șelimbăr, Județul Sibiu