Apartament cu 2 camere - baie cu geam - 49.05 mp utili

98.500 €

Șelimbăr, Județul Sibiu

Nr. cam.:
2
Sup. utilă:
49,05 mp
Etaj:
2 / 6
An constr.:
2025 (În construcție)
  • • Locație aproximativă

Descriere apartament

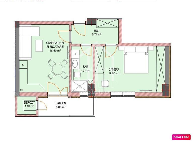
Apartamentul cu 2 camere are o suprafata utila de 49.05 mp si un balcon de 5.88 mp, fiind situat in zona Doamna Stanca. Compartimentare: - hol de acces; - dormitor; - living open space cu bucataria; - baie cu geam; - balcon spatiu pentru depozitare. Avantaje: - bloc nou; - baie cu geam de aerisire; - finisat la cheie; - aproape de Lidl, Kaufland, Shopping City. Iti doresti mai mult decat o simpla locuinta? Noi suntem aici pentru a-ți oferi cele mai bune soluții. Oferim servicii de DESIGN SI AMENAJARI INTERIOARE, PROPERTY MANAGEMENT, REGIM HOTELIER, HOME STAGING, VIRTUAL INVESTMENT, SERVICII DE CURATENIE.
Citește mai mult Citește mai puțin
Confort 1 Semidecomandat 1 Balcon / Terasă / Logie

Detalii apartament

ID anunț: XDQ4102AL Copiat! 275288564 Copiat!
Actualizat în: 16 Martie 2026
Suprafață construită: 58.86 mp
Nr. bucătării: 1
Nr. băi: 1
Structură rezistență: Cărămidă
Tip imobil: Bloc de apartamente
Regim înălțime: P+6E

Utilități

Destinație
Rezidențial
Pereți
Faianță
Podele
Gresie Parchet
Ușă intrare
Metal
Contorizare
Apometre Contor gaz
Utilități
Curent Apă Canalizare CATV Gaze Telefon
Internet
Cablu
Amenajare străzi
Iluminat stradal Mijloace de transport în comun Asfaltate
Comision
standard

Disponibilitate proprietate:

Imediat

Puncte de interes

Mijloace transport
bus-station
Piata Rahova 1
Stații autobuz aprox. 506 m
bus-station
Piata Rahova 2
Stații autobuz aprox. 559 m
bus-station
Piata Rahova 3
Stații autobuz aprox. 584 m
bus-station
Interex
Stații autobuz aprox. 666 m
Școală
school
Scoala Generala Nr. 9
Școli aprox. 703 m
school
Scoala generala nr. 21
Școli aprox. 774 m
kindergarten
Gradinita Nr. 42
Gradinițe aprox. 1078 m
university
Facultatea de Stiinte Agroalimentare
Universități aprox. 1443 m
Recreere
supermarket
Lidl
Supermarket aprox. 344 m
sports-ground
Teren sportiv
Terenuri sport aprox. 596 m
restaurant
Pizzeria Insieme
Restaurant aprox. 607 m
park
Kinderland
Parcuri aprox. 1079 m

Detalii despre preț și costuri

Prețul pe piață

Preț cerut: 98.500 €

Preț min. zonă 76.000 €
Preț max. zonă 135.000 €

52% dintre proprietățile similare ca zonă și nr. camere au prețul cerut mai mic. mai multe...

Bine de știut: prețul unei proprietăți este influențat și de alte caracteristici, cum ar fi: vechime, localizare, vecinătăți, suprafață, compartimentare, amenajări, dotări, etc. mai puțin...

Costuri cu achiziția

Fără credit
6.039 RON
Credit ipotecar
7.570 RON
Noua casă
642 RON+ taxe notariale

i

Costuri adiționale mai puțin știute la achiziție: taxe notariale, comisioane etc.

Proprietăți similare

Apartament cu 2 camere decomandat, mobilat în Șelimbăr
98.500 €
Județul Sibiu, Șelimbăr
2 camere
53 mp
Etaj 1
Apartament cu 3 camere decomandat în Șelimbăr
99.000 € + TVA
Județul Sibiu, Șelimbăr
3 camere
61 mp
Etaj 3
Apartament cu 2 camere decomandat, mobilat în Șelimbăr
102.000 €
Județul Sibiu, Șelimbăr
2 camere
57 mp
Etaj 1 / 17

Detalii de contact

Virtual Imobiliare

Popa Sergiu Manager

Virtual Imobiliare

Abonează-te la newsletter să fii primul care primește cele mai noi recomandări de proprietăți și sfaturi de la experți.

CONTACT

Creează alertă

Salvează căutarea ca să primești pe email ultimele anunțuri publicate

Apartamente cu 2 camere de vânzare în Șelimbăr, Județul Sibiu