Apartament 3 camere - 67,30 mp + balcon de 3,59 mp - zona Selimbar

115.000 €

Șelimbăr, Județul Sibiu

Nr. cam.:
3
Sup. utilă:
67,3 mp
Etaj:
3 / 3
An constr.:
2025 (În construcție)
  • • Locație aproximativă

Descriere apartament

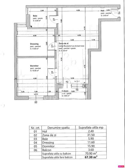
Va propunem spre vanzare un apartament cu 3 camere, cu o suprafata utila de 67,30 mp si balcon de 3,59 mp, amplasat in Selimbar, Zona Pictor Brana. Compartimentare: - hol; - living cu bucatarie + loc de luat masa; - 2 dormitoare; - baie; - balcon. Avantaje: - ansamblu rezidential nou; - la numai cateva minute de Shopping City; - loc de parcare inclus in pret; - baie cu geam de aerisire; - izolatie cu vata bazaltica; - balcon. Apartamentele se pot preda la stadiul de gri avansul minim fiind de 20%. Termenul de predare este primavara 2026. Iti doresti mai mult decat o simpla locuinta? Noi suntem aici pentru a-ți oferi cele mai bune soluții. Oferim servicii de DESIGN SI AMENAJARI INTERIOARE, PROPERTY MANAGEMENT, REGIM HOTELIER, HOME STAGING, VIRTUAL INVESTMENT, SERVICII DE CURATENIE.
Citește mai mult Citește mai puțin
Nedecomandat 1 Balcon / Terasă / Logie 1 Parcare

Detalii apartament

ID anunț: XDQ4102AE Copiat! 275288499 Copiat!
Actualizat în: 16 Martie 2026
Suprafață construită: 80.56 mp
Nr. bucătării: 1
Nr. băi: 1
Structură rezistență: Beton
Tip imobil: Bloc de apartamente
Regim înălțime: P+3E

Utilități

Destinație
Rezidențial
Utilități
Curent Apă Canalizare CATV Gaze Telefon
Internet
Cablu
Amenajare străzi
Iluminat stradal Mijloace de transport în comun Asfaltate
Comision
standard

Disponibilitate proprietate:

Imediat

Puncte de interes

Mijloace transport
bus-station
Sibiu-Triaj (Sud)
Stații autobuz aprox. 375 m
bus-station
Shopping City
Stații autobuz aprox. 914 m
bus-station
XXL
Stații autobuz aprox. 1011 m
bus-station
Mobexpert
Stații autobuz aprox. 1023 m
Școală
school
Scoala Generala Nr. 24
Școli aprox. 1193 m
kindergarten
Gradinita Nr. 14
Gradinițe aprox. 1249 m
school
Liceul Energetic
Școli aprox. 1357 m
school
Scoala generala nr. 21
Școli aprox. 1883 m
Recreere
sports-ground
Teren sportiv
Terenuri sport aprox. 766 m
supermarket
XXL
Supermarket aprox. 908 m
park
Parc
Parcuri aprox. 972 m
restaurant
El Gringo
Restaurant aprox. 1045 m

Detalii despre preț și costuri

Prețul pe piață

Preț cerut: 115.000 €

Preț min. zonă 99.500 €
Preț max. zonă 184.700 €

79% dintre proprietățile similare ca zonă și nr. camere au prețul cerut mai mare. mai multe...

Bine de știut: prețul unei proprietăți este influențat și de alte caracteristici, cum ar fi: vechime, localizare, vecinătăți, suprafață, compartimentare, amenajări, dotări, etc. mai puțin...

Costuri cu achiziția

Fără credit
6.815 RON
Credit ipotecar
8.416 RON
Noua casă
726 RON+ taxe notariale

i

Costuri adiționale mai puțin știute la achiziție: taxe notariale, comisioane etc.

Proprietăți similare

Apartament cu 2 camere semidecomandat în Șelimbăr
113.939 €
Județul Sibiu, Șelimbăr
2 camere
51 mp
Etaj 1
Apartament cu 2 camere decomandat, mobilat în Șelimbăr
110.900 €
Județul Sibiu, Șelimbăr
2 camere
60 mp
Parter
Apartament cu 3 camere decomandat în Șelimbăr
116.000 €
Județul Sibiu, Șelimbăr
3 camere
65,7 mp
Etaj 6

Detalii de contact

Virtual Imobiliare

Popa Sergiu Manager

Virtual Imobiliare

Abonează-te la newsletter să fii primul care primește cele mai noi recomandări de proprietăți și sfaturi de la experți.

CONTACT

Creează alertă

Salvează căutarea ca să primești pe email ultimele anunțuri publicate

Apartamente cu 3 camere de vânzare în Șelimbăr, Județul Sibiu