Apartament 3 camere - 64,20 mp utili si balcon - Loc de parcare

110.000 €

Șelimbăr, Județul Sibiu

Nr. cam.:
3
Sup. utilă:
64,2 mp
Etaj:
1 / 3
An constr.:
2025 (În construcție)
  • • Locație aproximativă

Descriere apartament

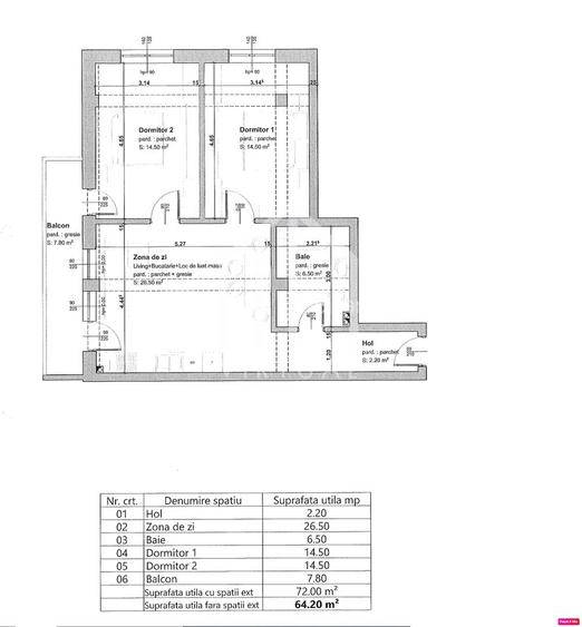
Va propunem spre vanzare un apartament cu 3 camere, cu o suprafata utila de 64,20 mp si balcon de 7,80 mp, amplasat in Selimbar, zona Pictor Brana. Compartimentare: - hol; - living cu bucatarie + loc de luat masa (27,28 mp); - 2 dormitoare; - baie; - balcon. Avantaje: - ansamblu rezidential nou; - la numai cateva minute de Shopping City; - loc de parcare inclus in pret; - centrala termica si incalzire in pardoseala; - izolatie cu vata bazaltica; - balcon. Apartamentele se pot preda la stadiul de gri avansul minim fiind de 20%. Termenul de predare este primavara 2026. Iti doresti mai mult decat o simpla locuinta? Noi suntem aici pentru a-ți oferi cele mai bune soluții. Oferim servicii de DESIGN SI AMENAJARI INTERIOARE, PROPERTY MANAGEMENT, REGIM HOTELIER, HOME STAGING, VIRTUAL INVESTMENT, SERVICII DE CURATENIE.
Citește mai mult Citește mai puțin
Confort 2 Nedecomandat 2 Balcoane / Terase / Logii 1 Parcare

Detalii apartament

ID anunț: XDQ4102AF Copiat! 275288507 Copiat!
Actualizat în: 16 Martie 2026
Suprafață construită: 77.04 mp
Nr. bucătării: 1
Nr. băi: 1
Structură rezistență: Beton
Tip imobil: Bloc de apartamente
Regim înălțime: P+3E

Utilități

Destinație
Rezidențial
Utilități
Curent Apă Canalizare CATV Gaze Telefon
Internet
Cablu
Amenajare străzi
Iluminat stradal Mijloace de transport în comun Asfaltate
Comision
standard

Disponibilitate proprietate:

data_properties.property_availability.Imediat

Puncte de interes

Mijloace transport
bus-station
Sibiu-Triaj (Sud)
Stații autobuz aprox. 210 m
bus-station
Indepententa 2
Stații autobuz aprox. 1117 m
bus-station
CGS
Stații autobuz aprox. 1128 m
bus-station
Irmes 2
Stații autobuz aprox. 1158 m
Școală
school
Scoala Generala Nr. 24
Școli aprox. 1455 m
kindergarten
Gradinita Nr. 14
Gradinițe aprox. 1490 m
school
Liceul Energetic
Școli aprox. 1675 m
Recreere
park
Parc
Parcuri aprox. 1071 m
sports-ground
Teren sportiv
Terenuri sport aprox. 1126 m
supermarket
XXL
Supermarket aprox. 1265 m
restaurant
El Gringo
Restaurant aprox. 1400 m

Detalii despre preț și costuri

Prețul pe piață

Preț cerut: 110.000 €

Preț min. zonă 99.500 €
Preț max. zonă 184.700 €

79% dintre proprietățile similare ca zonă și nr. camere au prețul cerut mai mare. mai multe...

Bine de știut: prețul unei proprietăți este influențat și de alte caracteristici, cum ar fi: vechime, localizare, vecinătăți, suprafață, compartimentare, amenajări, dotări, etc. mai puțin...

Costuri cu achiziția

Fără credit
6.583 RON
Credit ipotecar
8.163 RON
Noua casă
701 RON+ taxe notariale

i

Costuri adiționale mai puțin știute la achiziție: taxe notariale, comisioane etc.

Proprietăți similare

Apartament cu 2 camere semidecomandat în Șelimbăr
99.400 € + TVA
Județul Sibiu, Șelimbăr
2 camere
60,55 mp
Etaj 9
Apartament cu 2 camere decomandat, mobilat în Șelimbăr
111.000 €
Județul Sibiu, Șelimbăr
2 camere
60 mp
Parter / 3
Apartament cu 3 camere semidecomandat în Șelimbăr
115.700 € + TVA
Județul Sibiu, Șelimbăr
3 camere
71,93 mp
Etaj 7 / 10

Detalii de contact

Virtual Imobiliare

Popa Sergiu Manager

Virtual Imobiliare

Abonează-te la newsletter să fii primul care primește cele mai noi recomandări de proprietăți și sfaturi de la experți.

CONTACT

Creează alertă

Salvează căutarea ca să primești pe email ultimele anunțuri publicate

Apartamente cu 3 camere de vânzare în Șelimbăr, Județul Sibiu