Apartament cu 2 camere si boxa depozitare zona Doamna Stanca

117.000 €

Aeroport, Sibiu

Nr. cam.:
2
Sup. utilă:
59 mp
Etaj:
2 / 3
An constr.:
2024 (În construcție)
  • • Comision 0%
  • • Locație aproximativă
  • • Vizionare prin apel video

Descriere apartament

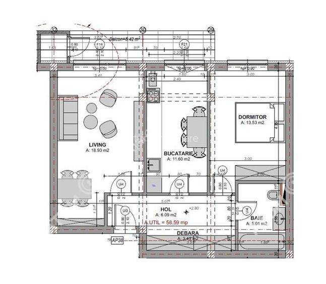
De vanzare apartament complet finisat la cheie de 2 camere decomandate ( bucatarie separata ) cu balcon generos, boxa de depozitare si loc propriu de parcare, pozitionat pe Str. Doamna Stanca din Selimbar. Locuinta detine suprafata totala de 79 mp, este pozitionata la etajul intermediar 2 al unui imobil constructie noua cu doar 3 nivele care pune la dispozitia locatarilor locuri de parcare private de parcare, spatii verzi, acces securizat cu bariera in cadrul complexului. Apartamentul are suprafata utila de 58.59 mp, acesta este compus din camera de zi 18.93 mp, dormitorul 13.53 mp, bucataria separata de 11,60 mp, baia spatioasa de 5.01 mp, hol spatios de 6.09 mp unde se afla si o debara de 3.43 mp unde se poate amenaja zona de primire cu pantofar si cuier cat si pozitionarea unui dressing generos. Separat de suprafata utila apartamentul beneficiaza si de un balcon generos de 8.42 mp in care accesul se face atat din bucatarie cat si din camera zi, balcon unde se afla si o boxa destinata depozitarii. Parcarea se realizeaza pe propriul loc de parcare amenajat in fata imobilului. Apartamentul se preda la stadiul de alb si dispune de urmatoarele dotari si finisaje: -Usa de metal anti-efractie la intrarea in apartament placata cu MDF; -Pereti tencuiti ( tencuiala pe baza de var-ciment ), gletuiti si zugraviti cu lavabila alba in 2 straturi; -Pardoseli amenajate cu sapa autonivelanta semiuscata elicopterizata pregatite pentru parchet-gresie; -Tamplarie PVC marca Sallamander cu 5 camere si 3 foi de sticla cu Low-E, glafuri exterioare de aluminiu si PVC interior; -Centrala proprie pe gaz marca Bosch in condensare si incalzire in pardoseala; -Distribuitor pentru instalatia de incalzire; - Racorduri apa-canal in bucatarie si bai; - Racord gaz metan la bucatarie; -Instalatii electrice trase pe pozitie cu tablou general si sigurante pentru consumatorii de putere; -Instalatii pentru TV si internet trase pe pozitie. - Balcon inchis cu parapet de caramida si sticla cu leduri, finisat si placat cu gresie antiderapanta; Valoarea de achizitie a locuintei este de 117.000 euro, aceasta se poate achizitiona si prin credit bancar. ID intern: 2497.
Citește mai mult Citește mai puțin
Confort 1 Decomandat Nemobilat 1 Balcon / Terasă / Logie Centrală proprie Încălzire prin pardoseală 1 Parcare

Detalii apartament

ID anunț: XC74101KG Copiat! 244306370 Copiat!
Actualizat în: 10 Martie 2026
Suprafață utilă totală: 59 mp
Suprafață construită: 79 mp
Nr. bucătării: 1
Nr. băi: 1
Structură rezistență: Altele
Tip imobil: Bloc de apartamente
Regim înălțime: P+3E

Utilități

Destinație
Rezidențial
Pereți
Vopsea lavabilă
Ușă intrare
Metal
Izolații termice
Exterior
Ferestre cu geam termopan
PVC
Contorizare
Apometre Contor gaz
Utilități
Apă Curent Gaze Canalizare Telefon CATV
Amenajare străzi
Asfaltate Iluminat stradal
Comision
0%

Puncte de interes

Mijloace transport
bus-station
Piata Rahova 1
Stații autobuz aprox. 143 m
bus-station
Piata Rahova 3
Stații autobuz aprox. 237 m
bus-station
Piata Rahova 2
Stații autobuz aprox. 286 m
bus-station
Interex
Stații autobuz aprox. 407 m
Școală
school
Scoala Generala Nr. 9
Școli aprox. 346 m
school
Scoala generala nr. 21
Școli aprox. 503 m
kindergarten
Gradinita Nr. 42
Gradinițe aprox. 717 m
university
Facultatea de Stiinte Agroalimentare
Universități aprox. 1083 m
Recreere
supermarket
Carrefour Express
Supermarket aprox. 138 m
sports-ground
Teren sportiv
Terenuri sport aprox. 483 m
restaurant
Korona
Restaurant aprox. 745 m
park
Parc
Parcuri aprox. 759 m

Detalii despre preț și costuri

Prețul pe piață

Preț cerut: 117.000 €

Preț min. zonă 60.000 €
Preț max. zonă 135.000 €

53% dintre proprietățile similare ca zonă și nr. camere au prețul cerut mai mic. mai multe...

Bine de știut: prețul unei proprietăți este influențat și de alte caracteristici, cum ar fi: vechime, localizare, vecinătăți, suprafață, compartimentare, amenajări, dotări, etc. mai puțin...

Costuri cu achiziția

Fără credit
6.913 RON
Credit ipotecar
8.522 RON
Noua casă
736 RON+ taxe notariale

i

Costuri adiționale mai puțin știute la achiziție: taxe notariale, comisioane etc.

Proprietăți recomandate

Detalii de contact

Atum Imobiliare

Ureche Pavel Director Vanzari

Atum Imobiliare
PRO

Abonează-te la newsletter să fii primul care primește cele mai noi recomandări de proprietăți și sfaturi de la experți.

CONTACT

Creează alertă

Salvează căutarea ca să primești pe email ultimele anunțuri publicate

Apartamente cu 2 camere de vânzare în zona Aeroport, Sibiu