Apartament 2 camere intabulat, logie 14 mp, etaj 1 | DaVinci Homes

112.000 €

Aeroport, Sibiu

Nr. cam.:
2
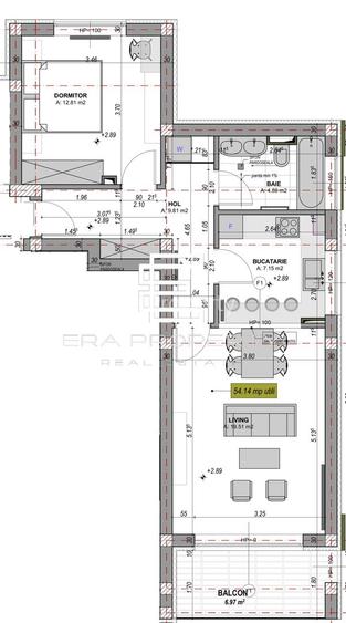
Sup. utilă:
54,14 mp
Etaj:
1 / 2
An constr.:
2023 (Finalizată)
  • • Comision 0%
  • • Locație aproximativă

Descriere apartament

Locuință la cheie, cu bucătărie separată, încălzire în pardoseală și logie sudică generoasă. 𝐂𝐨𝐦𝐢𝐬𝐢𝐨𝐧 𝟎% Vă propunem spre vânzare un apartament intabulat cu 2 camere, situat în cartierul rezidențial DaVinci Homes, în zona de Vest a orașului Sibiu. Apartamentul are o suprafață utilă de 54,12 mp și beneficiază de o logie generoasă de 14,42 mp, închisă cu sticlă securizată și orientată sudic. Locuința este amplasată la etajul 1 din 2 și se predă finisată la cheie, fiind potrivită atât pentru locuire, cât și pentru investiție. 𝐂𝐚𝐫𝐚𝐜𝐭𝐞𝐫𝐢𝐬𝐭𝐢𝐜𝐢 𝐬̦𝐢 𝐝𝐨𝐭𝐚̆𝐫𝐢 Apartament intabulat, disponibil pentru achiziție prin credit sau surse proprii Suprafață utilă de 54,12 mp Logie generoasă de 14,42 mp, cu orientare sudică Etaj 1 din 2, într-un imobil cu regim redus de înălțime Compartimentare practică, cu bucătărie separată Predare la stadiul de finisat la cheie Încălzire în pardoseală Aer condiționat inclus Loc de parcare inclus Logie închisă cu sticlă securizată Izolație cu vată bazaltică Casă a scării finisată cu granit Ansamblul DaVinci Homes oferă un cadru modern de locuire, cu regim redus de înălțime, spații verzi generoase, locuri de joacă, finisaje exterioare cu larice siberian și piatră naturală, precum și 4 căi de acces, care asigură o conectare rapidă către oraș. Apartamentul poate fi achiziționat atât din surse proprii, cât și prin credit bancar. 𝐅𝐨𝐭𝐨𝐠𝐫𝐚𝐟𝐢𝐢𝐥𝐞 𝐬𝐮𝐧𝐭 𝐢𝐧𝐟𝐨𝐫𝐦𝐚𝐭𝐢𝐯𝐞 𝐬̦𝐢 𝐚𝐩𝐚𝐫𝐭̦𝐢𝐧 𝐮𝐧𝐮𝐢 𝐚𝐩𝐚𝐫𝐭𝐚𝐦𝐞𝐧𝐭 𝐬𝐢𝐦𝐢𝐥𝐚𝐫.
Citește mai mult Citește mai puțin
Confort 1 Decomandat 1 Balcon / Terasă / Logie 1 Parcare

Detalii apartament

ID anunț: XEP4100BB Copiat! 274355534 Copiat!
Actualizat în: 09 Mai 2026
Suprafață construită: 64 mp
Nr. bucătării: 1
Nr. băi: 1
Tip imobil: Bloc de apartamente
Tip tranzacție: De vânzare prin agent
Regim înălțime: P+2E
Modalitate de plată: Cash sau Credit

Utilități

Destinație
Rezidențial
Utilități
Curent Apă Canalizare CATV Gaze Telefon
Internet
Cablu
Amenajare străzi
Iluminat stradal Mijloace de transport în comun Asfaltate
Comision
0%

Disponibilitate proprietate:

Imediat

Puncte de interes

Mijloace transport
bus-station
SNR Rulmenti
Stații autobuz aprox. 622 m
bus-station
SC Continental
Stații autobuz aprox. 895 m
bus-station
SC Continental
Stații autobuz aprox. 944 m
airport
Aeroportul International Sibiu
Aeroporturi aprox. 1355 m

Detalii despre preț și costuri

Prețul pe piață

Preț cerut: 112.000 €

Preț min. zonă
Preț max. zonă

63% dintre proprietățile similare ca zonă și nr. camere au prețul cerut mai mic. mai multe...

Bine de știut: prețul unei proprietăți este influențat și de alte caracteristici, cum ar fi: vechime, localizare, vecinătăți, suprafață, compartimentare, amenajări, dotări, etc. mai puțin...

Acces la informații premium după autentificare
Login Gratuit

Costuri cu achiziția

Fără credit
Credit ipotecar
Noua casă

i

Costuri adiționale mai puțin știute la achiziție: taxe notariale, comisioane etc.

Acces la informații premium după autentificare
Login Gratuit

Proprietăți similare

Apartament cu 2 camere decomandat, mobilat în Aeroport
105.000 €
Sibiu, Aeroport
2 camere
56 mp
Etaj 1
Apartament cu 3 camere decomandat, mobilat în Aeroport
106.500 €
Sibiu, Aeroport
3 camere
54 mp
Etaj 1 / 2
Apartament cu 2 camere nedecomandat în Aeroport
106.500 €
Sibiu, Aeroport
2 camere
52,06 mp
Etaj 1 / 2

Detalii de contact

Era Property

Anamaria Vulcu Broker imobiliar

Era Property
PRO

Abonează-te la newsletter să fii primul care primește cele mai noi recomandări de proprietăți și sfaturi de la experți.

CONTACT

Creează alertă

Salvează căutarea ca să primești pe email ultimele anunțuri publicate

Apartamente noi cu 2 camere de vânzare în zona Aeroport, Sibiu