Apartament cu 2 camere la cheie la etajul 1 in Selimbar zona Brana

125.000 €

Aeroport, Sibiu

Nr. cam.:
2
Sup. utilă:
55 mp
Etaj:
1 / 3
An constr.:
2025 (În construcție)
  • • Comision 0%
  • • Locație aproximativă
  • • Vizionare prin apel video

Descriere apartament

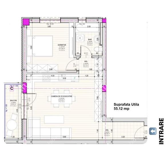
De vanzare in Selimbar zona Pictor Brana apartament complet finisat la cheie cu 2 camere decomandate si balcon, in suprafata totala de 72 mp, situat la etajul intermediar 1 al unui imobil modern constructie 2025 cu doar 3 etaje ce dispune de locuri de parcare private destinate locatarilor, zone verzi, strazi si trotuare amenajate. Suprafata utila a locuintei este de 55.12 mp, acesta este compus din camera de zi cu bucatarie tip open space de 29.29 mp unde poate fi amenajat un dinning pentru mesele in familie, dormitorul de 13.96 mp, baia 5.23 mp dotata cu geam de aerisire si cada si 2 holuri dintre care cel de acces 4.48 mp unde se poate amenaja zona de primire cu pantofar si cuier iar a doilea de 2.16 mp unde poate fi pozitionat un dressing. In pretul de achizitie este inclus si un loc de parcare privat in fata imobilului. Predarea apartamentului se face in decursul lunii Mai 2026, complet finisat la cheie si include dotari precum: -Usa metalica de acces antiefractie placata cu panou MDF; -Centrala termica de apartament marca Vailant Ecotec cu o putere de 24 kW pentru incalzire si 28 kW pentru apa calda cu sistem de incalzire in pardoseala marca Purmo cu termostatare individuala a fiecarei incaperi; -Tamplarie PVC cu 7 camere si geam tripan (3 foi de sticla) marca Kommerling; -Instalatie electrica din cupru montata prin copex cu tablou general si sigurante pentru consumatorii de putere; -Racorduri apă-canal în bucătărie și băi, racord gaz metan la bucătărie, instalații pentru gaz, curent electric și apă, contorizare individuală și contoare montate; -Interfon; Finisajele cu care se preda apartamentul cuprind: -Pereti tencuiti pe baza de var si ciment, gletuiti si zugraviti cu lavabila; -Pardoseli placate cu parchet laminat SPC 10mm in camere si hol; -Pardoseli placata cu gresie in bucatarie si cele doua bai; -Peretii bailor sunt placati cu faianta; -Obiecte sanitare montate; -Usi interioare marca Naturen; -Prize si intrerupatoare marca Schneider; Din punct de vedere al spatiilor comune interioare precum este casa scarii aceasta se va preda placata cu gresie antiderapanta, balustrazi din teava rectangulara, plafoniere cu senzor si zugraveli in vopsea lavabila alba iar spatiile comune exterioare se predau complet amenajate si includ caile de acces din interiorul complexului, trotuare, toate acestea fiind pavate si zone verzi decorative amenajate cu gazon si arbusti decorativi. Valoarea de achizitie este de 125.000 euro cu TVA 21% inclus si se poate achizitiona si prin credit bancar cu avans de 15% din suma. ID intern: 3246.
Citește mai mult Citește mai puțin
Confort 1 Decomandat Nemobilat 1 Balcon / Terasă / Logie Centrală proprie Încălzire prin pardoseală 1 Parcare

Detalii apartament

ID anunț: XC7410243 Copiat! 274649537 Copiat!
Actualizat în: 26 Martie 2026
Suprafață utilă totală: 55 mp
Suprafață construită: 72 mp
Nr. bucătării: 1
Nr. băi: 1
Structură rezistență: Altele
Tip imobil: Bloc de apartamente
Regim înălțime: P+3E

Utilități

Destinație
Rezidențial
Pereți
Faianță Vopsea lavabilă
Podele
Parchet Gresie
Ușă intrare
Metal
Izolații termice
Exterior
Ferestre cu geam termopan
PVC
Contorizare
Apometre Contor gaz
Utilități
Apă Curent Gaze Canalizare Telefon CATV
Amenajare străzi
Asfaltate Iluminat stradal
Comision
0%

Puncte de interes

Mijloace transport
bus-station
Sibiu-Triaj (Sud)
Stații autobuz aprox. 603 m
bus-station
Piata V. Aaron 1
Stații autobuz aprox. 687 m
bus-station
Piata V. Aaron 2
Stații autobuz aprox. 711 m
bus-station
XXL
Stații autobuz aprox. 747 m
Școală
school
Scoala Generala Nr. 24
Școli aprox. 785 m
kindergarten
Gradinita Nr. 14
Gradinițe aprox. 846 m
school
Liceul Energetic
Școli aprox. 968 m
kindergarten
Gradinita Kristine
Gradinițe aprox. 1774 m
Recreere
sports-ground
Teren sportiv
Terenuri sport aprox. 558 m
supermarket
XXL
Supermarket aprox. 633 m
park
Parc
Parcuri aprox. 694 m
bar
Narcisa
Bar aprox. 722 m

Detalii despre preț și costuri

Prețul pe piață

Preț cerut: 125.000 €

Preț min. zonă 60.000 €
Preț max. zonă 135.000 €

81% dintre proprietățile similare ca zonă și nr. camere au prețul cerut mai mic. mai multe...

Bine de știut: prețul unei proprietăți este influențat și de alte caracteristici, cum ar fi: vechime, localizare, vecinătăți, suprafață, compartimentare, amenajări, dotări, etc. mai puțin...

Costuri cu achiziția

Fără credit
7.197 RON
Credit ipotecar
8.841 RON
Noua casă
777 RON+ taxe notariale

i

Costuri adiționale mai puțin știute la achiziție: taxe notariale, comisioane etc.

Proprietăți recomandate

Detalii de contact

Atum Imobiliare

Ureche Pavel Director Vanzari

Atum Imobiliare
PRO

Abonează-te la newsletter să fii primul care primește cele mai noi recomandări de proprietăți și sfaturi de la experți.

CONTACT

Creează alertă

Salvează căutarea ca să primești pe email ultimele anunțuri publicate

Apartamente cu 2 camere de vânzare în zona Aeroport, Sibiu